Helle 3-Zimmer-Wohnung mit großem Balkon!

Kaufpreis 480.000 €
Zimmer 3
04416 Markkleeberg
Größe 81 m2

Objektdaten

Veröffentlicht am: 27. März 2025
Energieausweis: Liegt bei der Besichtigung vor

Objektbeschreibung

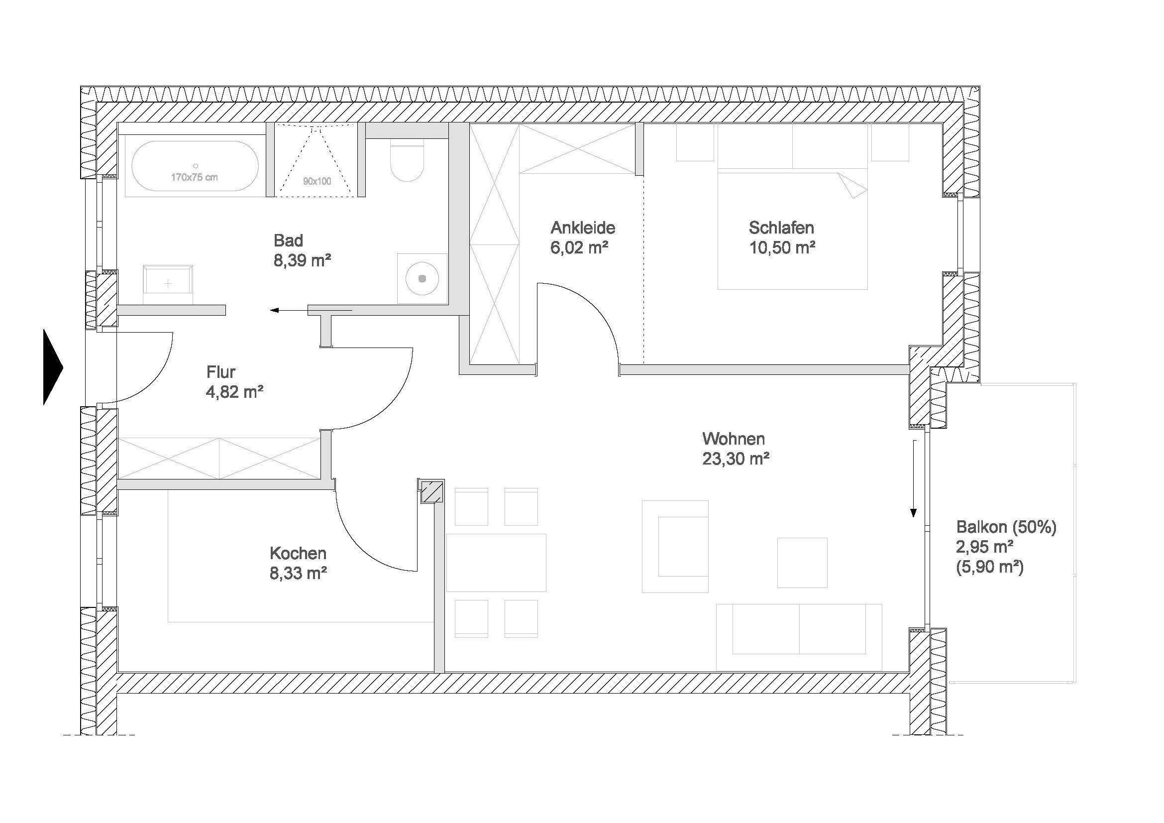
In zentraler Lage von Markkleeberg entsteht ein exklusives Wohnprojekt, das modernen Komfort und eine perfekte Nahversorgung vereint. Diese 3-Zimmer-Wohnung im 1. Obergeschoss bietet auf ca. 81,39 m² Wohnfläche eine attraktive und durchdachte Raumaufteilung.Das Highlight dieser Wohnung ist der ca. 6 m² große Balkon, der zusätzlichen privaten Außenraum bietet. Der Balkon lädt zum Entspannen ein und erweitert den Wohnbereich um einen attraktiven Freiraum, der bei schönem Wetter zu einem echten Rückzugsort wird - und das alles mit einem wunderschönen Blick in die ruhige Umgebung des „Hemminger Bogen“.Die Wohnung überzeugt durch eine moderne, barrierefreie Ausstattung, die hohen Wohnkomfort garantiert. Besonders hervorzuheben ist die helle und freundliche Atmosphäre, die durch die großen Fensterflächen entsteht.Das Gebäude ist durch seine Lage und durchdachte Architektur bestens an den täglichen Bedarf angepasst. Im Erdgeschoss befindet sich ein Aldi-Markt, der über die Koburger Straße zugänglich ist und Ihnen somit den Einkauf direkt vor der Haustür ermöglicht. Trotz der zentralen Lage wohnen Sie ruhig und zurückgezogen, da der Zugang zu den Wohnungen über die „Hemminger Bogen“-Seite des Gebäudes erfolgt, fernab von Einzelhandelsbereichen.Alle Wohnungen in diesem Neubauprojekt sind barrierefrei und bequem über einen Aufzug erreichbar. Weitere Annehmlichkeiten wie Abstellräume und Garagen im Erdgeschoss bieten zusätzlichen Stauraum und komfortable Parkmöglichkeiten direkt vor dem Gebäude.Mit der Fertigstellung des Aldi-Marktes im November 2025 und der geplanten Übergabe der Wohnungen im 2. Quartal 2026 entsteht hier ein echtes Zuhause in zentraler und zugleich ruhiger Lage. Nutzen Sie die Möglichkeit, diese wunderschöne Wohnung nach Ihren individuellen Wünschen anzupassen und freuen Sie sich auf eine hohe Lebensqualität in Markkleeberg!
zu den Kontaktinfosjetzt kostenlosen Suchagenten aktivieren
Nach oben scrollen