Objektdaten
Objektbeschreibung
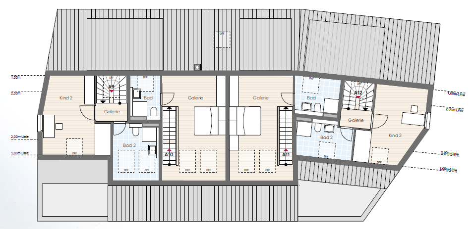
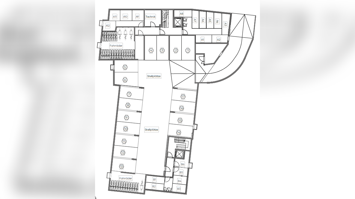
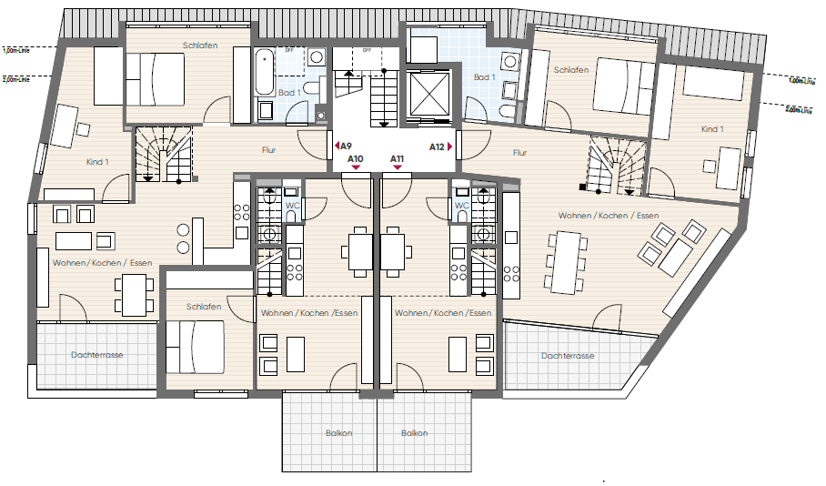
Objektbeschreibung Das gesamte Bauvorhaben und Neubauprojekt KW 55 Effizenzhaus A+besteht aus einem Mehrfamilienhaus A ,das an der Kindlebildstrasse 13 liegt mit 12 Wohneinheiten, und einem Hinterhaus B mit 6 Wohneinheiten.Sowohl bei Haus A wie bei Haus B werden die Balkone alle nach Süd-Westen ausgerichtet sein.Die Informationen zur Bauausführung der beiden Mehrfamilienhäuser ,finden sie in den Anlagen unter Baubeschreibung als PDF. Raumaufteilung Alle Wohnungen können noch vor Baubegin in den Grundrissen umgestaltet werden, sofern es die Statik erlaubt. Siehe Expose/Grundrisse in den Anlagen.Ähnliche Angebote
So funktioniert es
- Alle neuen Anzeigen matchen wir kostenlos mit Deinen Suchparametern.
- Passende Angebote senden wir Dir in einer E-Mail pro Tag.
- Du kannst auch verschiedene Suchen anlegen und Dich jederzeit abmelden. Mehr dazu




