Objektdaten
Objektbeschreibung
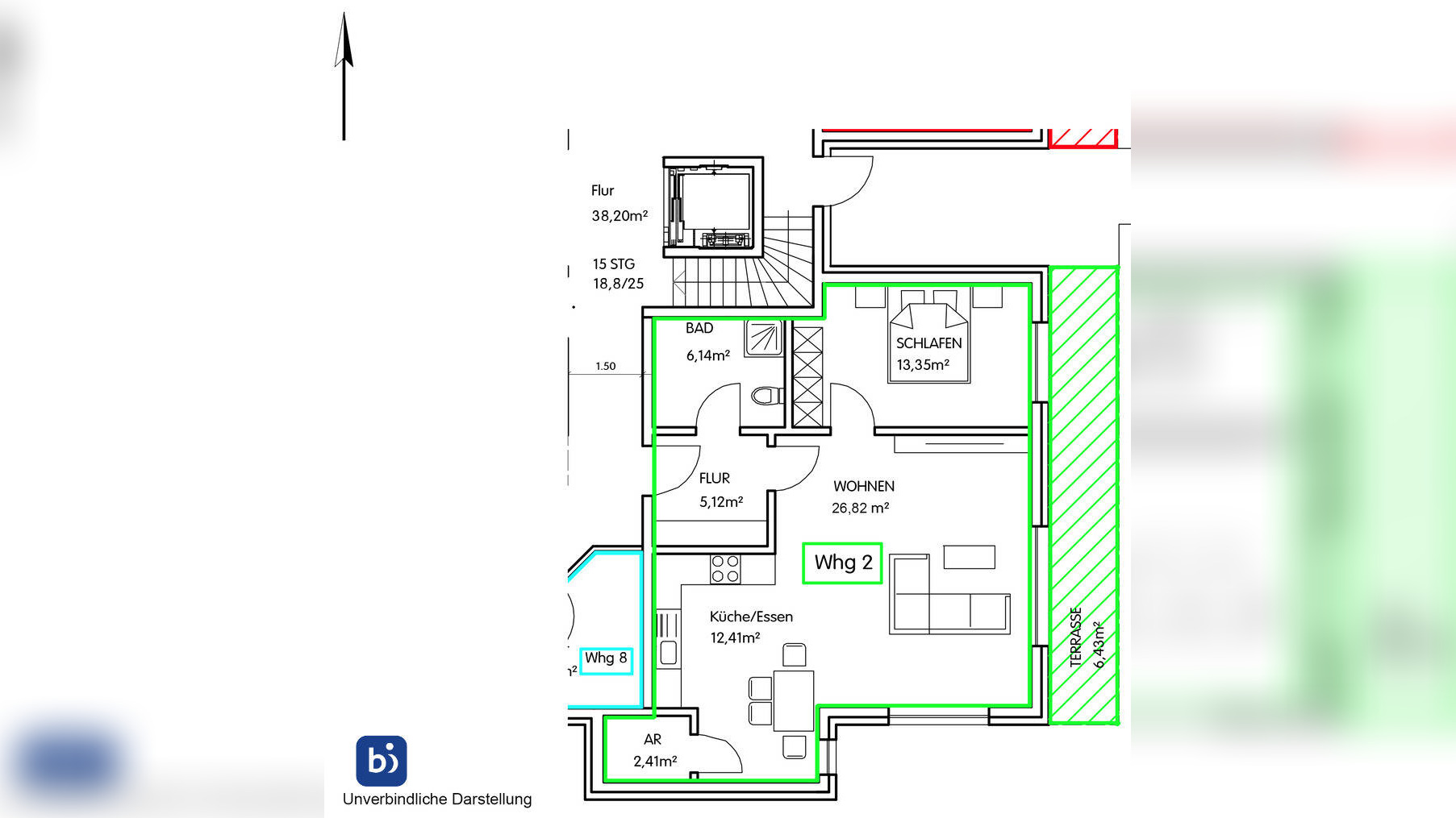
Diese geräumige 2-Zimmer-Wohnung im Gartengeschoss bietet eine Wohnfläche von 72,68 m² und überzeugt durch einen gut durchdachten Grundriss. Vom großzügigen Wohn- und Essbereich sowie vom Schlafzimmer aus gelangen Sie direkt auf die zur Wohnung gehörende Terrasse. Die offene Küche ist ideal in den Essbereich integriert und schafft so ein modernes Wohnambiente.Ausstattung:.Hochwertiges Massivparkett Eiche in den Wohnräumen.Ultraflache Dusche, modernes Badezimmer mit WC, Waschtisch und Waschmaschinenanschluss.Fußbodenheizung mit individuell einstellbaren Raumthermostaten.Moderne zentrale Heizungsanlage als Luft- / Wasser-Wärmepumpe mit Solaranlage zur Brauchwassererwärmung.Energiesparende Bauweise nach KfW-55 Standard - Fördersumme von bis zu 5.000 € möglich.Überdachter Fahrradraum im AußenbereichWICHTIG: Der jetzige Eigentümer möchte noch ca. ein Jahr in der Wohnung als Mieter übernommen werden!Lage:Die Wohnung befindet sich in einer ruhigen und dennoch zentralen Wohnlage mit guter Anbindung an das öffentliche Verkehrsnetz und nahegelegenen Einkaufsmöglichkeiten.Kontakt:Haben wir Ihr Interesse geweckt? Gerne steht Ihnen unsere Immobilienspezialistin Frau Sonja Pikul zur Verfügung. Wir freuen uns auf Ihren Anruf!Weitere interessante Angebote finden Sie auf unserer Website: www.bi-bodenseeimmo.deÄhnliche Angebote
So funktioniert es
- Alle neuen Anzeigen matchen wir kostenlos mit Deinen Suchparametern.
- Passende Angebote senden wir Dir in einer E-Mail pro Tag.
- Du kannst auch verschiedene Suchen anlegen und Dich jederzeit abmelden. Mehr dazu




