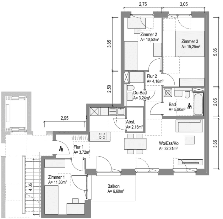
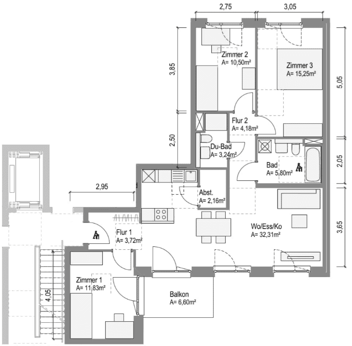
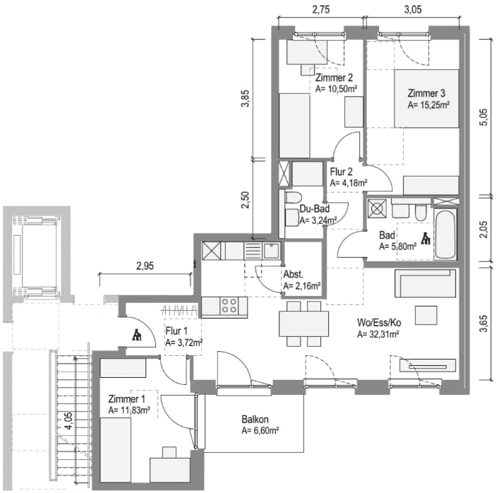
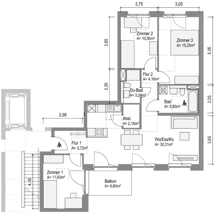
Objektdaten
Objektbeschreibung
Diese Wohnung können Sie nur mit einen Wohnberechtigungsschein Stufe III besichtigen und anmieten. Weitere Informationen erhalten Sie von der Stadt Bamberg.Benötigtes Bruttoeinkommen pro Jahr als Anhaltspunkt:2 Personen + 1 Kind: 66.159,00 € - 82.801,00 €2 Personen + 2 Kinder: 80.587,00 € - 102.569,00 €2 Personen + 3 Kinder: 95.016,00 € - 122.516,00 €Ähnliche Angebote
So funktioniert es
- Alle neuen Anzeigen matchen wir kostenlos mit Deinen Suchparametern.
- Passende Angebote senden wir Dir in einer E-Mail pro Tag.
- Du kannst auch verschiedene Suchen anlegen und Dich jederzeit abmelden. Mehr dazu





