Objektdaten
Objektbeschreibung
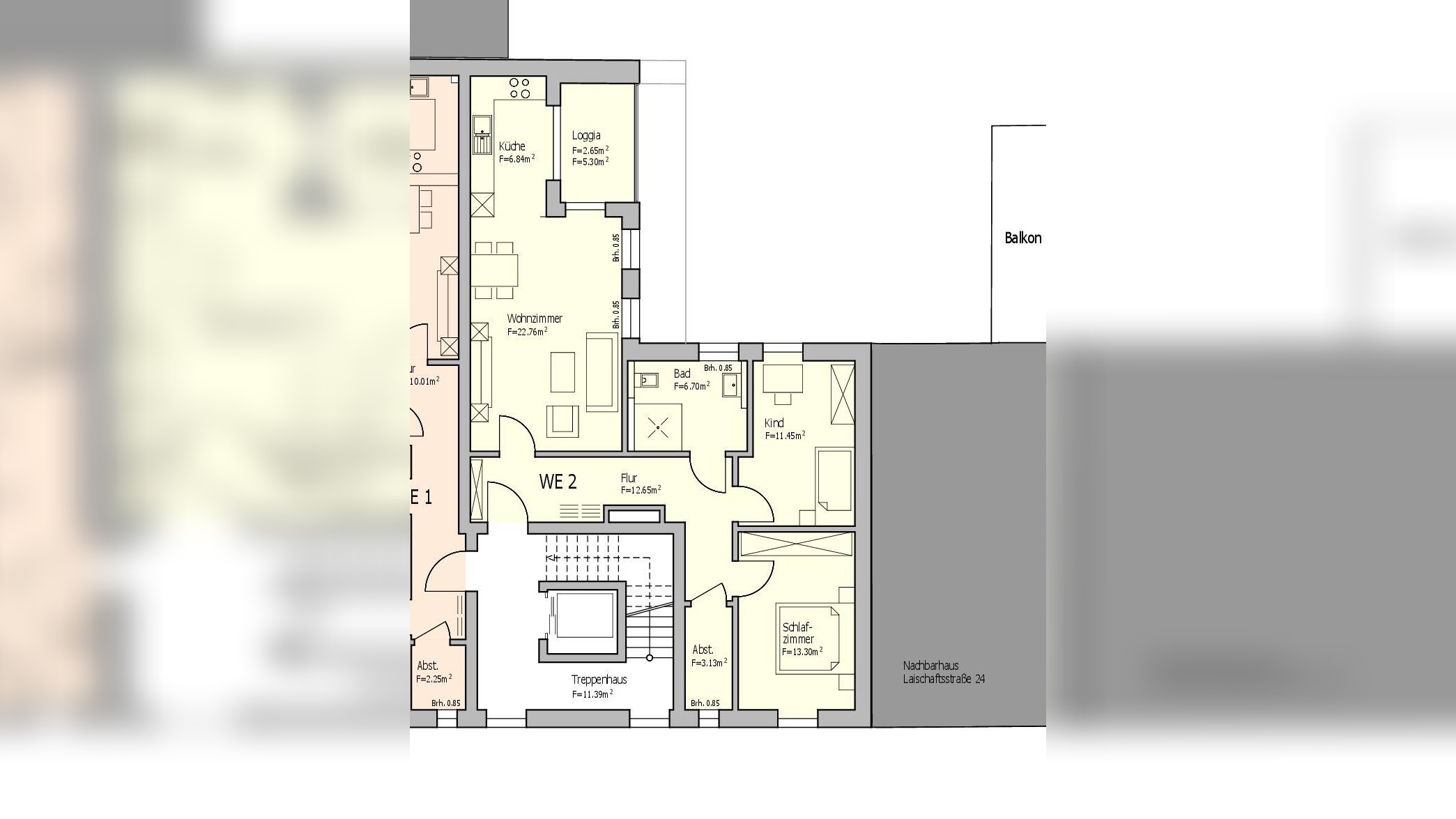
Die Neubauwohnung im 1. Obergeschoss vereint urbanen Komfort mit ruhigem Wohnen im beliebten Stadtteil Vordere Wüste. Auf ca. 79 m² Wohnfläche erwartet Sie ein durchdachter Grundriss mit drei Zimmern, darunter zwei Schlafzimmer sowie ein großzügiger, offen gestalteter Wohn- und Essbereich mit integrierter Küche - ideal für modernes Wohnen mit Stil.Der sonnige Balkon mit Blick in den grünen Innenhof lädt zum Verweilen ein. Ein Fahrstuhl sorgt für barrierearmen Zugang und zusätzlichen Komfort.Die Eigentumswohnungsanlage entsteht als energieeffizientes Haus im KfW-55-Standard auf einem Grundstück mit einer Größe von ca. 271 m². Die Wohnflächen der einzelnen Einheiten liegen zwischen ca. 73 und ca. 118 m², jeweils verteilt auf drei Zimmer in den Obergeschossen sowie vier Zimmer im Penthouse.Zu ebener Erde erschließt sich die Garage mit insgesamt sechs Stellplätzen, einem Fahrradraum für die Hausgemeinschft sowie einen Raum für die Mülltonnen. Die Haustechnik und je ein zu den Wohnungen zugeordneter Kellerraum befinden sich im Untergeschoss.Ähnliche Angebote
So funktioniert es
- Alle neuen Anzeigen matchen wir kostenlos mit Deinen Suchparametern.
- Passende Angebote senden wir Dir in einer E-Mail pro Tag.
- Du kannst auch verschiedene Suchen anlegen und Dich jederzeit abmelden. Mehr dazu




