Kaufpreis 379.000 €
Zimmer 4
Größe 128 m²
48599 Gronau (Westf.)
Objektdaten
Veröffentlicht am: 11. Juni 2025
Energieausweis: Liegt bei der Besichtigung vor
Danke! Bitte bestätige Deine E-Mail-Adresse – wir haben Dir soeben eine Mail geschickt.
Es gab ein Problem beim Absenden. Bitte versuche es erneut.
Bitte bestätige Deine E-Mail-Adresse, um Updates zu erhalten.
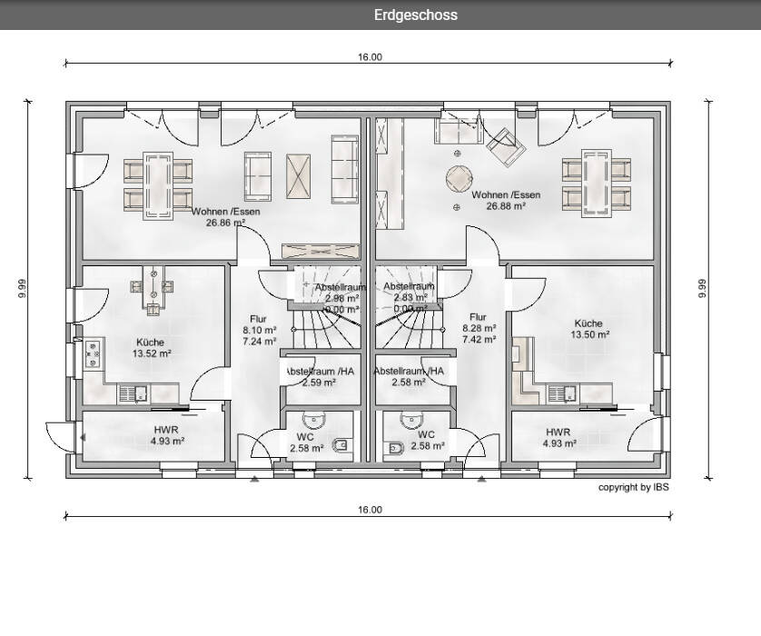
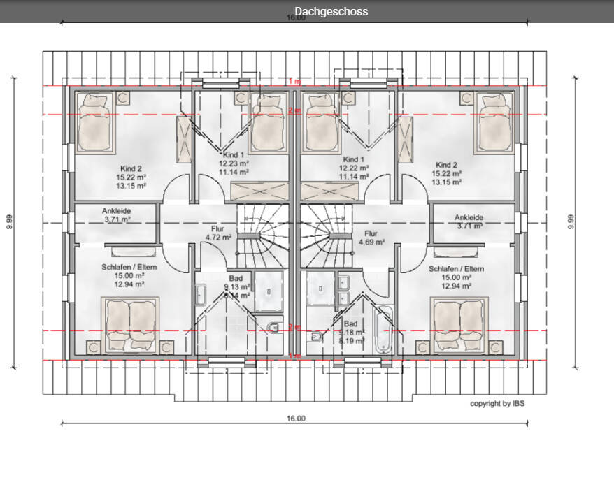
Objektbeschreibung
Diese projektierte Doppelhaushälfte wird individuell auf Ihrem eigenen Grundstück realisiert - mit Liebe zum Detail, cleverer Raumaufteilung und der Möglichkeit, Ihre Ideen mit einfließen zu lassen.Ob als Lebensmittelpunkt für Familien oder Rückzugsort mit Platz zum Entfalten - hier entsteht Ihr ganz persönliches Zuhause.Der helle Wohn- und Essbereich mit Zugang zur Terrasse ist das Herzstück des Hauses und lädt zum Zusammensein, Spielen oder Entspannen ein.Die Küche ist räumlich abgesetzt und lässt sich optimal nach Ihren Vorstellungen gestalten.Ergänzt wird das Erdgeschoss durch ein Gäste-WC, einen Hauswirtschaftsraum sowie zwei praktische Abstellräume.Im oberen Bereich warten zwei gemütliche Kinderzimmer, ein modernes Tageslichtbad und ein großzügiges Elternschlafzimmer mit angrenzender Ankleide auf Sie.Der ausgebaute Spitzboden bietet zusätzliche Fläche für Büro, Spielzimmer oder Hobbyraum - ganz wie es zu Ihrem Leben passt.Hier wohnen Sie nicht einfach - Sie gestalten aktiv mit. Und genau das macht den Unterschied.
So funktioniert es
- Alle neuen Anzeigen matchen wir kostenlos mit Deinen Suchparametern.
- Passende Angebote senden wir Dir in einer E-Mail pro Tag.
- Du kannst auch verschiedene Suchen anlegen und Dich jederzeit abmelden. Mehr dazu
Wir haben soeben eine E-Mail mit Deinem Suchauftrag an Dich geschickt. – Klicke in dieser Mail auf den Bestätigungslink und schon geht's los. Prüfe ggf. auch Deinen Spamordner.
Es gab ein Problem beim Absenden Deiner E-Mail-Adresse. Bitte versuche es erneut.
WARNUNG: Bitte bestätige Deine E-Mail-Adresse, um regelmäßige Updates zu erhalten.