3-Zimmer-Neubauwohnung mit Terrasse, Gartenanteil & zwei TG-Stellplätzen im Zentrum von Bad Zw’ahn

Kaufpreis 551.000 €
Zimmer 3
Größe 93 m²
26160 Bad Zwischenahn

Objektdaten

Veröffentlicht am: 23. Juni 2025
Frei ab: 1. Juli 2025
Baujahr: 2025
Energieausweis: Liegt bei der Besichtigung vor
Neu

Über ähnliche Angebote direkt informiert werden

  • Objektbeschreibung

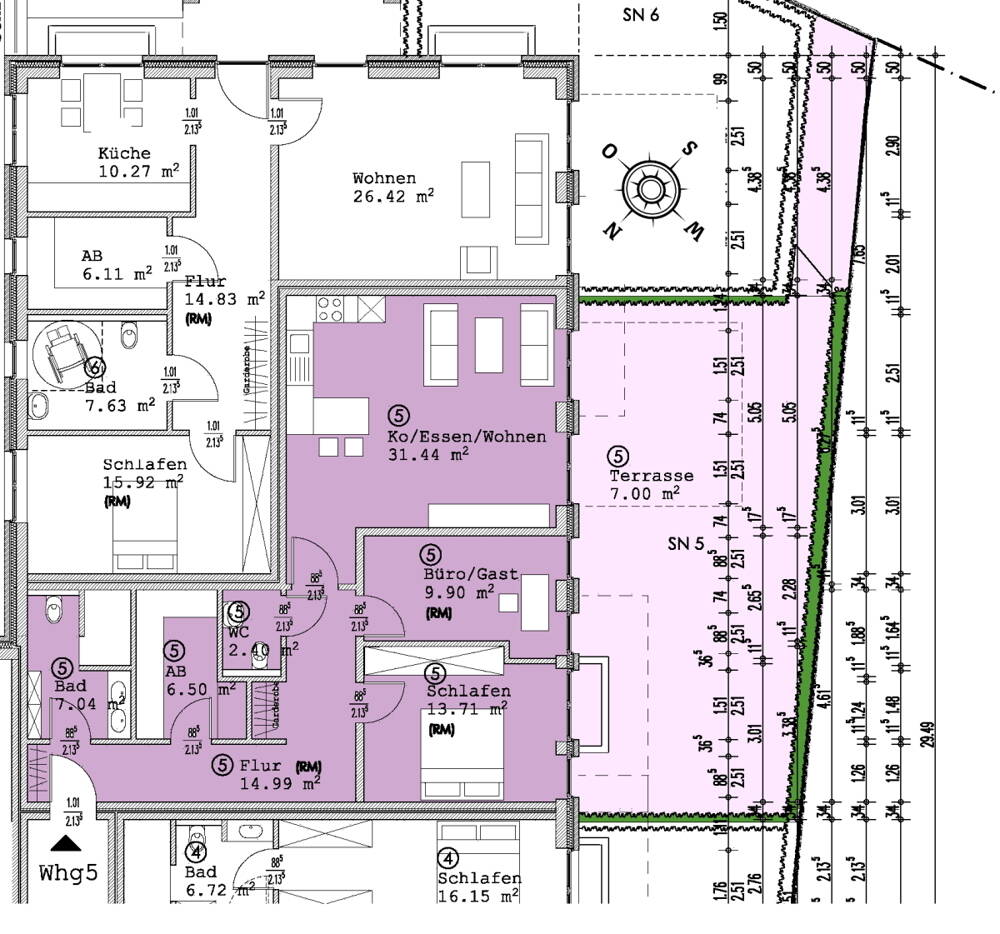
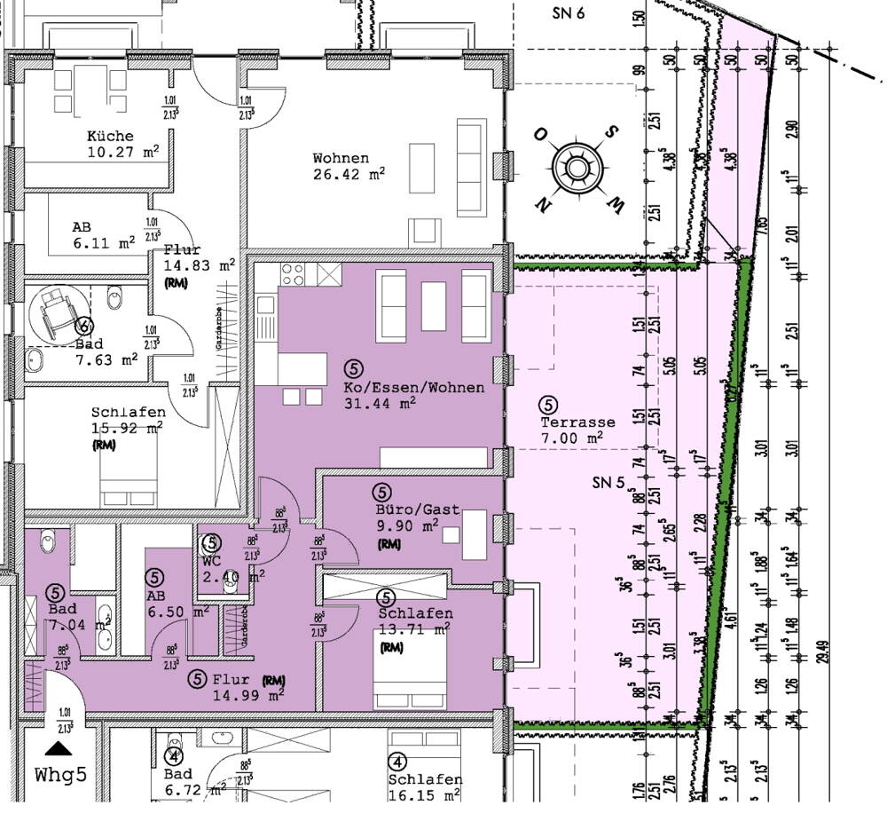
    ** Beispielfotos der Wohnung Nr. 19 können Sie aus dem Exposé entnehmen. **In diesem aufwendigen Neubauprojekt in begehrter, zentraler Lage unseres Kur- und Ferienortes Bad Zwischenahn entstehen 20 moderne Eigentumswohnungen im Erd-, Ober- und Dachgeschoss sowie eine großflächige Gewerbeeinheit im Erdgeschoss. Das Wohnungsangebot umfasst Einheiten mit zwei Zimmern ab einer Wohnfläche von ca. 50 m² bis hin zu sehr großzügigen Wohnungen mit vier Zimmern und Wohnflächen bis ca. 115 m². Allen Wohnungen sind ein oder zwei Pkw-Stellplätze entweder im Außenbereich nahe des teils eigenen Außenzuganges oder in der Tiefgarage zugeteilt. Die Wohnungen im Erdgeschoss verfügen über teilweise überdachte Terrassen; die OG- und DG-Wohnungen über einen oder mehrere Balkone. Außerdem sind den Dachgeschosswohnungen (teilweise mit Galerie) Abstellbereiche im Spitzboden zugeordnet.

    Ähnliche Angebote

    So funktioniert es

    • Alle neuen Anzeigen matchen wir kostenlos mit Deinen Suchparametern.
    • Passende Angebote senden wir Dir in einer E-Mail pro Tag.
    • Du kannst auch verschiedene Suchen anlegen und Dich jederzeit abmelden. Mehr dazu
    Nach oben scrollen