Projektion MFH – 7 WE (Planung inkl. Grundstück 2.850 qm) in attraktiver Lage von Heinsberg

Kaufpreis 450.000 €
Größe 633 m²
52525 Heinsberg

Objektdaten

Veröffentlicht am: 26. Juni 2025
Energieausweis: Liegt bei der Besichtigung vor
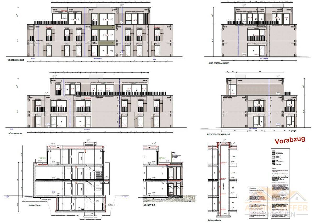
  • Objektbeschreibung

    Hiermit bieten wir Ihnen als Investor/ Projektentwickler ein interessantes Paket, bestehend aus:Projektion/ Konzeption, genehmigungsfähige Planung (Architektenleistung) und Grundstück in Top-Lage!Das zugehörige, attraktive, wohnwirtschaftlich nutzbare Grundstück mit einer Gesamtfläche von ca. 2.850 m² befindet sich in beliebter Ortsrandlage von Heinsberg.Das landschaftlich reizvoll gelegene Wohngebiet ist umgeben von Feldern, Wiesen und Gewässern und ermöglichst es Ihnen und Ihren zukünftigen Mietern das Zentrum der Kreisstadt Heinsberg in wenigen Autominuten und auf bequeme Weise in kurzer Zeit auch mit dem Fahrrad zu erreichen.Die Ruhe und Schönheit der Umgebung, sowie die gute Verkehrsanbietung stehen für die Attraktivität dieses hervorragenden Standortes, der Ihnen auch perspektivisch überdurchschnittliche Mieterträge sichert.Hier bietet sich Ihnen als Investor die seltene Gelegenheit eine den Zeitgeist erfüllende Symbiose des modernen Wohnens von heute und Morgen zu schaffen.Für das von uns angebotene Grundstück mit einer schräg verlaufenden Front von ca. 39 m, einer mittleren Breite von ca. 35 m und einer mittleren Tiefe von 78 m, liegt eine abgeschlossene Projektion für ein intelligent geplantes Mehrfamilienhaus mit sieben Wohneinheiten vor.Das Grundstück ist bereits erschlossen. Erschließungsbeiträge sind somit nicht mehr zu entrichten.
    Nach oben scrollen