Objektdaten
Objektbeschreibung
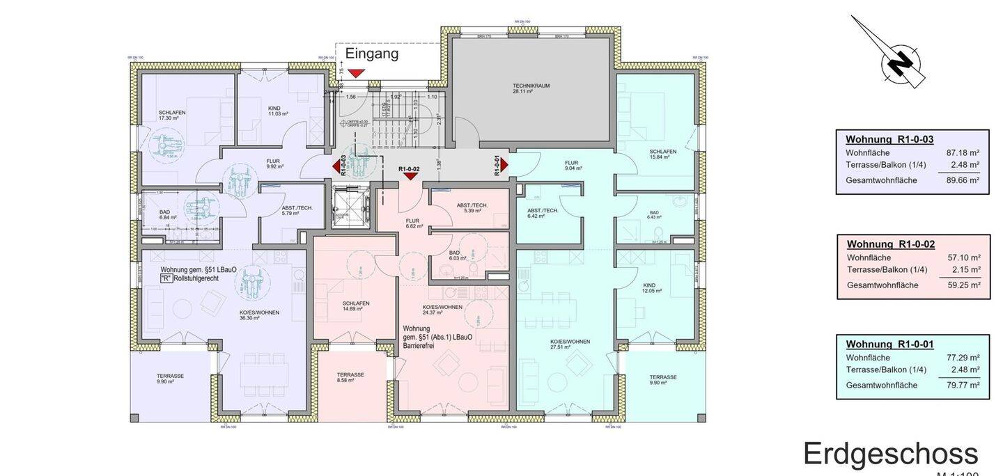
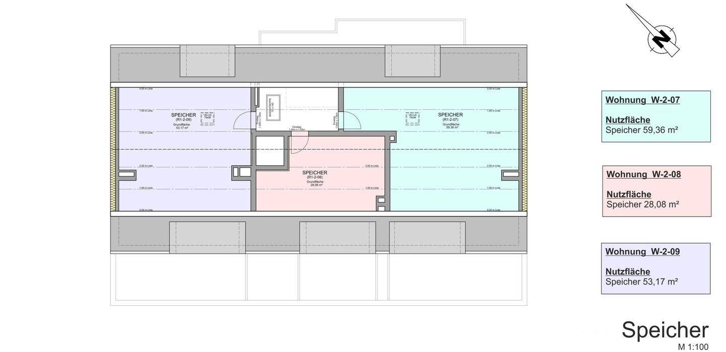
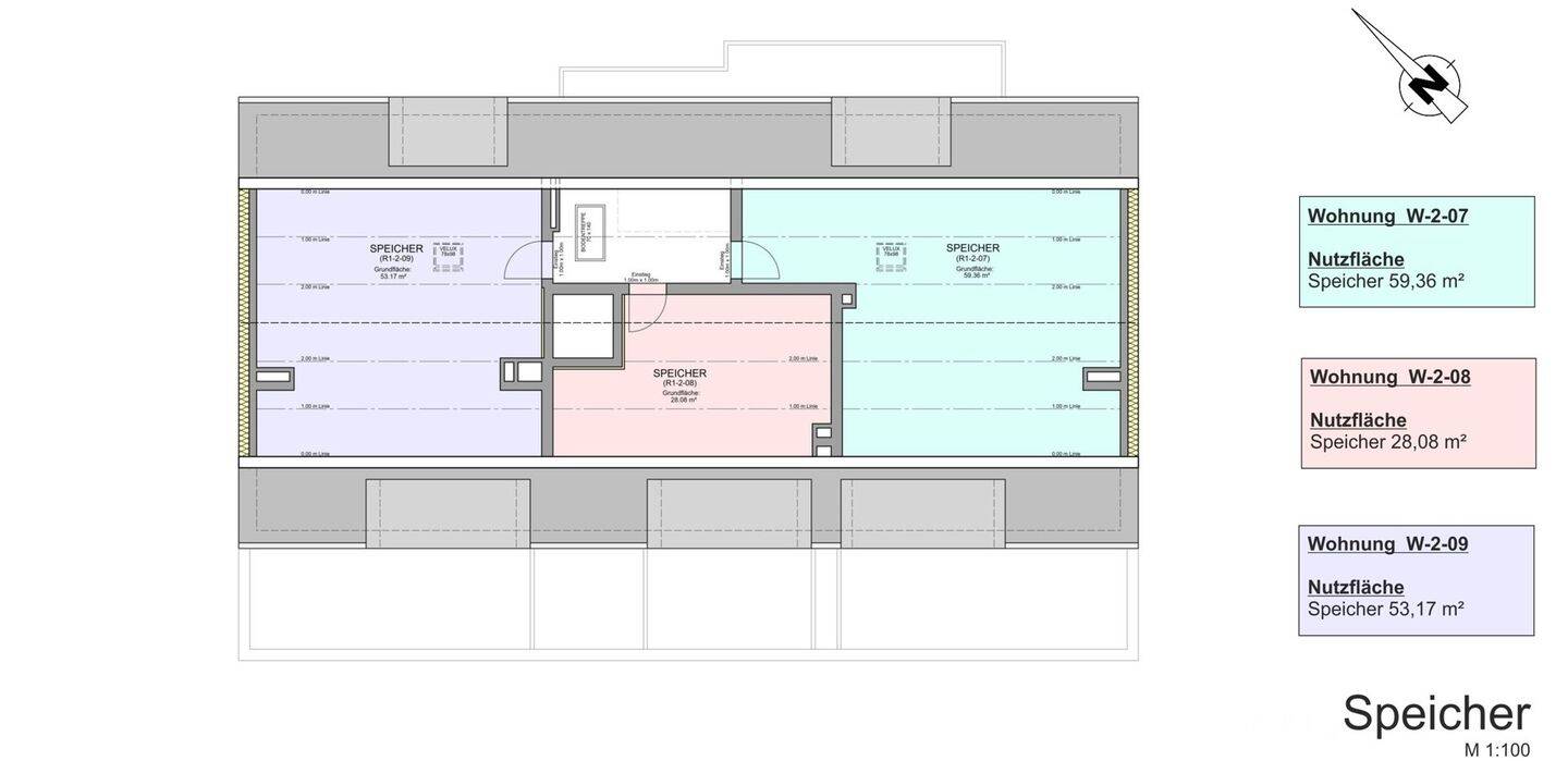
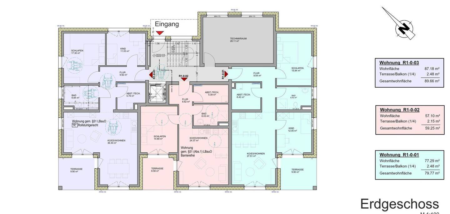
Neubau & Erstbezug: Ihre Traumwohnung in Bitburg/Masholder erwartet Sie!In Masholder entsteht dieses gemütliche Mehrfamilienhaus mit insgesamt 9 Wohneinheiten.Dank der Luftwasser/Wärmepumpe profitieren Sie nicht nur von umweltfreundlichem Heizen, sondern auch von deutlich reduzierten Heizkosten - ein spürbarer Kostenvorteil für Sie.Die Wohnungen sind über einen Aufzug komfortabel zu erreichen, zudem verfügen sie alle über einen Balkon bzw. Terrasse.Raumaufteilung:Über den Dielenbereich gelangen Sie in die beiden Schlafzimmer. Unmittelbar neben dem Elternschlafzimmer befindet sich ein großzügiges Badezimmer mit begehbarer Dusche.Der große Abstellraum befindet sich in unmittelbarer Nähe zur offenen Einbauküche.Der Wohn/Essbereich bietet direkten Zugang zur Terrasse, perfekt für die abendlichen Sonnenstrahlen genießen zu können!Über folgenden Link gelangen Sie zu unseren Immobilienangeboten:https://www.eifel-haus.de/de/immobilienangebote/alle-immobilienangeboteSo funktioniert es
- Alle neuen Anzeigen matchen wir kostenlos mit Deinen Suchparametern.
- Passende Angebote senden wir Dir in einer E-Mail pro Tag.
- Du kannst auch verschiedene Suchen anlegen und Dich jederzeit abmelden. Mehr dazu




