Objektdaten
Objektbeschreibung
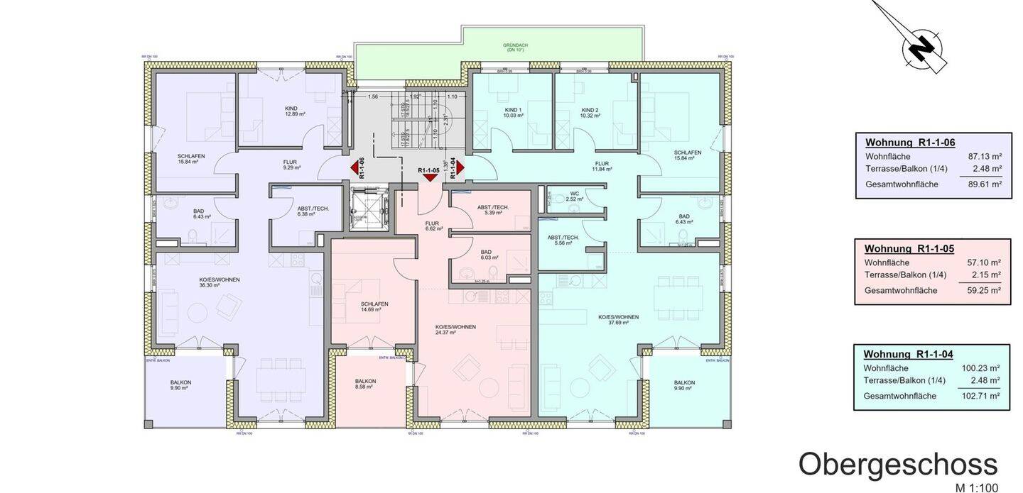
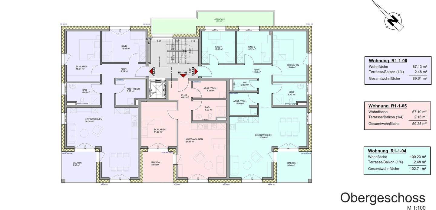
Neubau & Erstbezug: Ihre Traumwohnung in Bitburg/Masholder erwartet Sie!In Masholder entsteht dieses gemütliche Mehrfamilienhaus mit insgesamt 9 Wohneinheiten.Dank der Luftwasser/Wärmepumpe profitieren Sie nicht nur von umweltfreundlichem Heizen, sondern auch von deutlich reduzierten Heizkosten - ein spürbarer Kostenvorteil für Sie.Die Wohnungen sind über einen Aufzug komfortabel zu erreichen, zudem verfügen sie alle über einen Balkon bzw. Terrasse.Raumaufteilung:Über den Dielenbereich gelangen Sie in alle 3 Schlafzimmer. Unmittelbar neben den Schlafzimmern befindet sich ein großzügiges Badezimmer mit begehbarer Dusche, sowie das Gäste WC. Der direkte Zugang über den Wohn/Essbereich mit offener Einbauküche zur Terrasse rundet das Wohnkonzept perfekt ab.Über folgenden Link gelangen Sie zu unseren Immobilienangeboten:https://www.eifel-haus.de/de/immobilienangebote/alle-immobilienangeboteSo funktioniert es
- Alle neuen Anzeigen matchen wir kostenlos mit Deinen Suchparametern.
- Passende Angebote senden wir Dir in einer E-Mail pro Tag.
- Du kannst auch verschiedene Suchen anlegen und Dich jederzeit abmelden. Mehr dazu

