Objektdaten
Objektbeschreibung
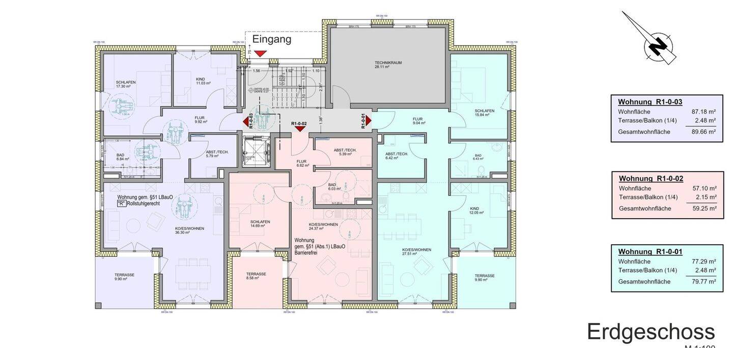
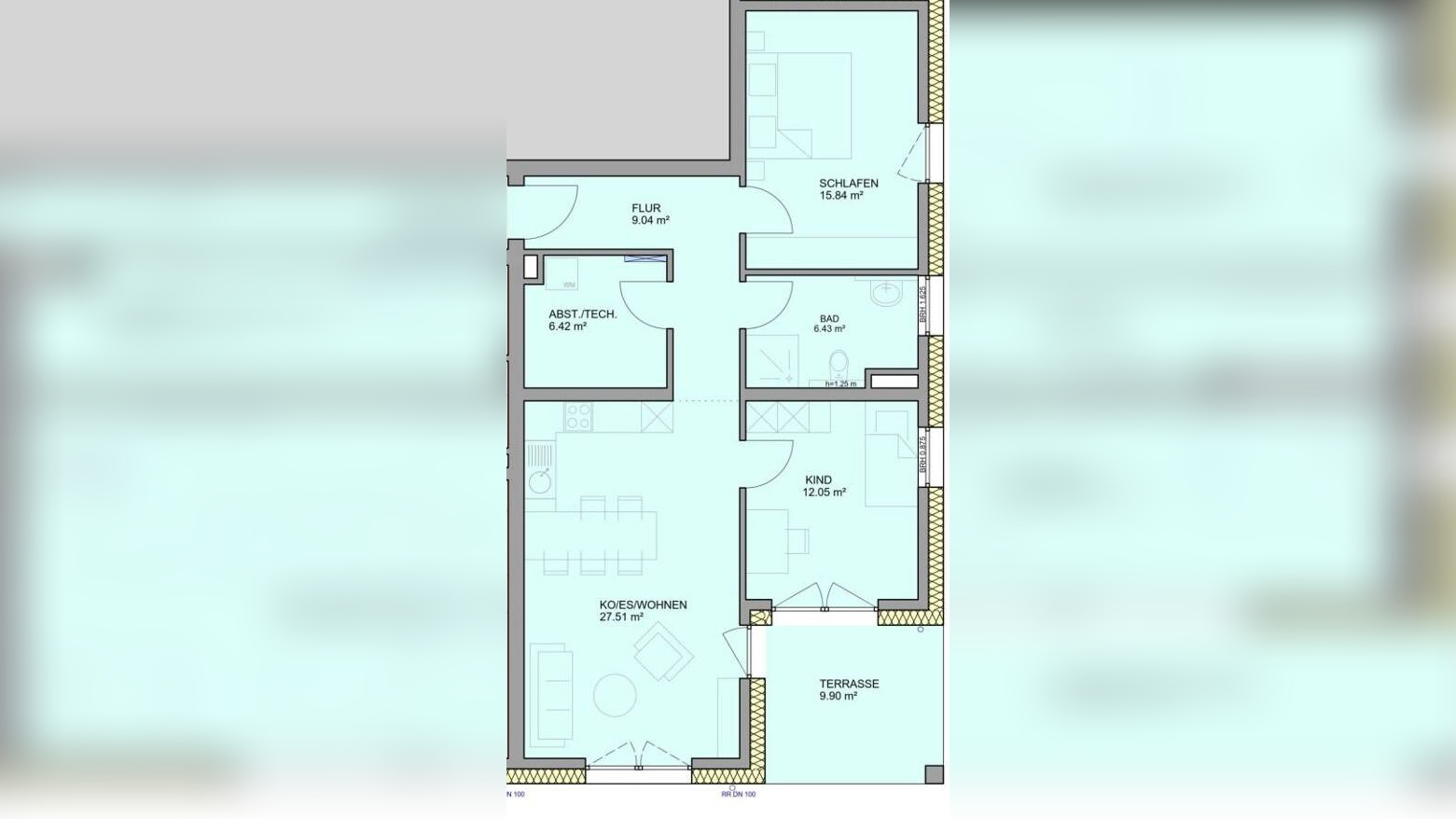
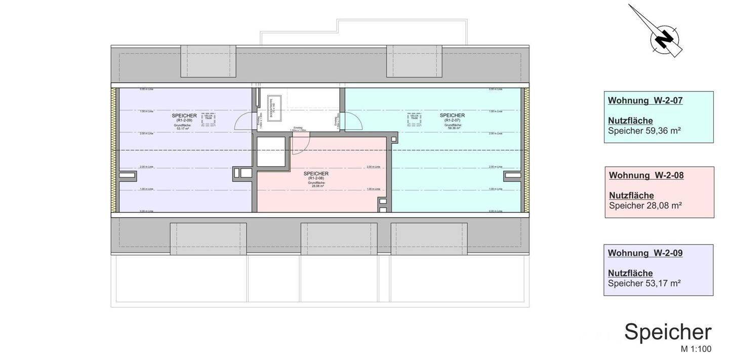
Neubau & Erstbezug: Ihre Traumwohnung in Bitburg/Masholder erwartet Sie!Dank der Luftwasser/Wärmepumpe profitieren Sie nicht nur von umweltfreundlichem Heizen, sondern auch von deutlich reduzierten Heizkosten - ein spürbarer Kostenvorteil für Sie.In Masholder entsteht dieses gemütliche Mehrfamilienhaus mit insgesamt 9 Wohneinheiten.Die Wohnungen sind über einen Aufzug komfortable zu erreichen, zudem verfügen sie alle über einen Balkon bzw. Terrasse.Raumaufteilung:Über den Dielenbereich gelangen Sie in das erste der beiden Schlafzimmer. Unmittelbar neben dem Schlafzimmer befindet sich ein großzügiges Badezimmer mit begehbarer Dusche. Das Gäste bzw. Kinderzimmer befindet sich direkt daneben. Der direkte Zugang über den Wohn/Essbereich mit offener Einbauküche zur Terrasse rundet das Wohnkonzept perfekt ab.Über folgenden Link gelangen Sie zu unseren Immobilienangeboten:https://www.eifel-haus.de/de/immobilienangebote/alle-immobilienangeboteSo funktioniert es
- Alle neuen Anzeigen matchen wir kostenlos mit Deinen Suchparametern.
- Passende Angebote senden wir Dir in einer E-Mail pro Tag.
- Du kannst auch verschiedene Suchen anlegen und Dich jederzeit abmelden. Mehr dazu




