Objektdaten
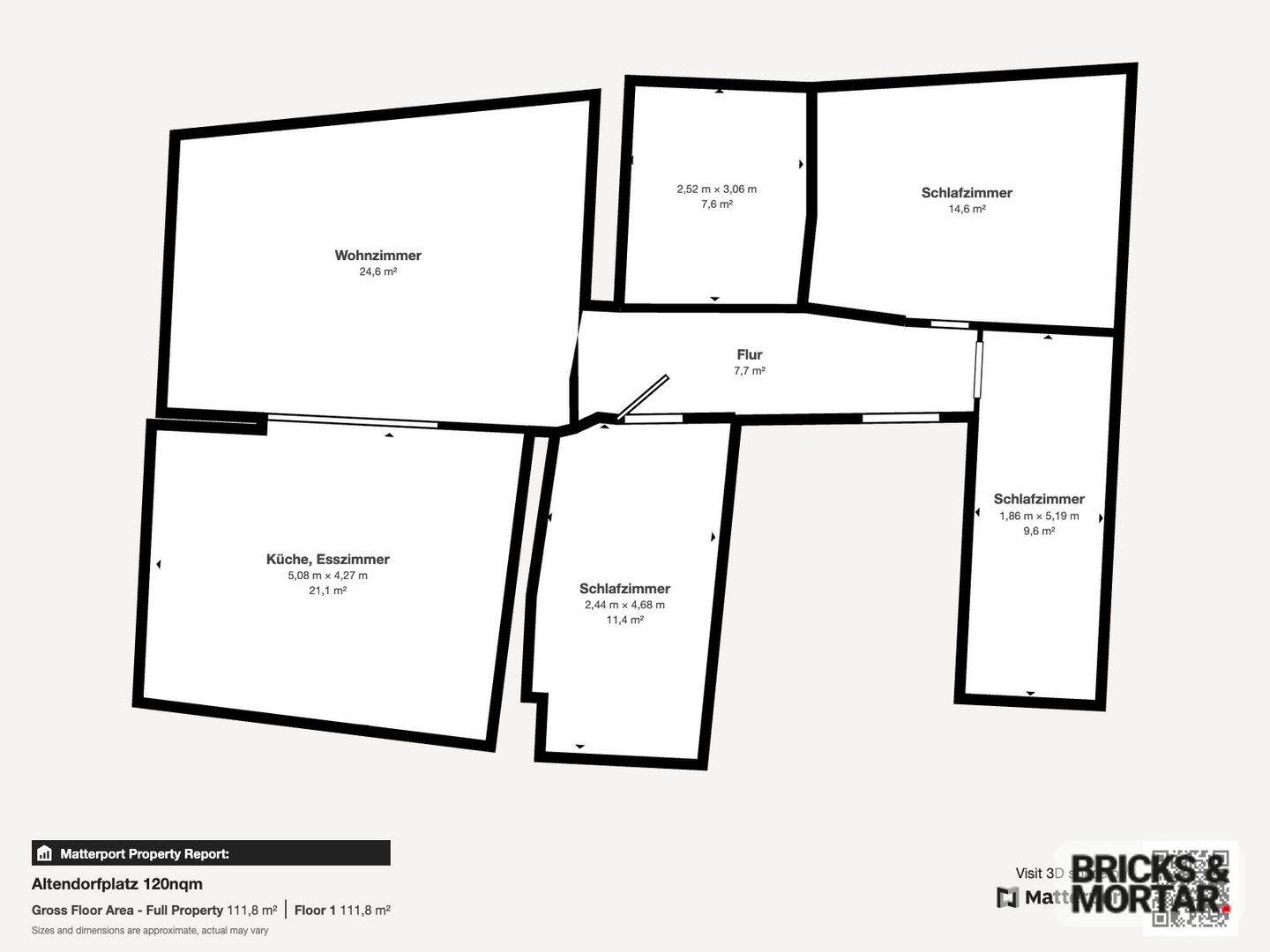
Objektbeschreibung
Sie möchten mehr über dieses Objekt erfahren?Fordern Sie jetzt das Exposé an - kostenlos und unverbindlich. Es enthält detaillierte Angaben zur Immobilie, Grundrisspläne, Energieausweis sowie weitere aussagekräftige Fotos.




