Objektdaten
Objektbeschreibung
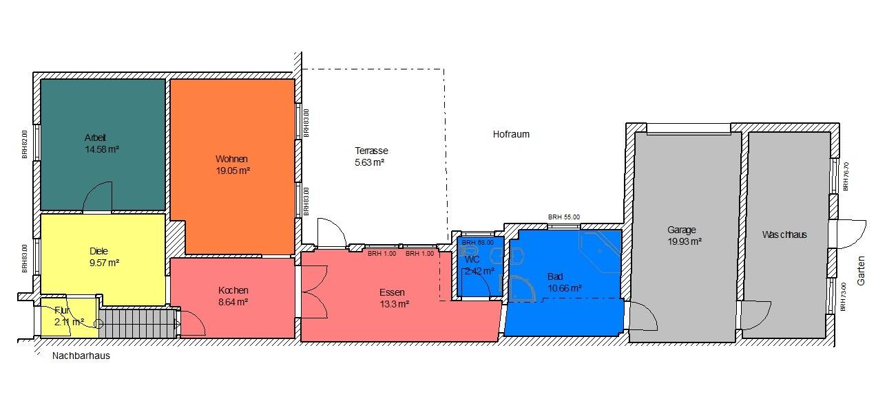
Der erste Eindruck: ... das Haus ist klein! Aber es bietet dennoch sehr viel Platz durch den Anbau. Insgesamt gibt es 6 Zimmer.Obwohl alles im Haus funktioniert, sodass man auch relativ schnell einziehen könnte, empfiehlt es sich zu renovieren bzw. zu modernisieren.Es gibt einen kleinen abgeschlossen Hof mit einer angrenzenden Terrasse [überdacht] zum Wohnbereich. Dann gibt es noch eine Garage mit einem elektrischen Tor, ein Waschhaus, einen Garten mit Poolanlage [sanierungsbedürftig] und Freisitz.Ähnliche Angebote
So funktioniert es
- Alle neuen Anzeigen matchen wir kostenlos mit Deinen Suchparametern.
- Passende Angebote senden wir Dir in einer E-Mail pro Tag.
- Du kannst auch verschiedene Suchen anlegen und Dich jederzeit abmelden. Mehr dazu




