Denkmalgeschützte Villa mit 5 gepflegten Wohnungen und großem Gartengrundstück in Baden-Baden

Kaufpreis 1.320.000 €
Zimmer 14
76532 Baden-Baden
Größe 399 m2

Objektdaten

Veröffentlicht am: 16. September 2025
Energieausweis: Liegt bei der Besichtigung vor

Objektbeschreibung

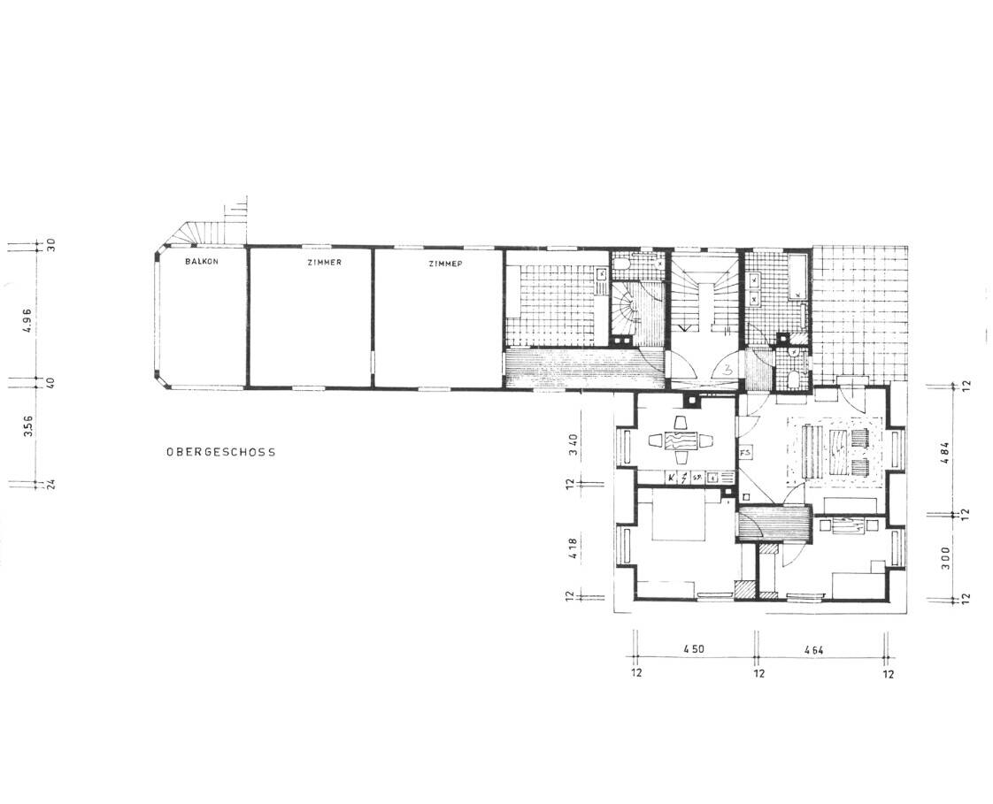
Ruhig gelegene denkmalgeschützte Villa mit 5 Wohneinheiten auf insgesamt 399 m² Wohnfläche und Außenstellplätzen in der Baden-Badener Weststadt.Erstmalig erbaut in 1913 auf einem Grundstück mit 2.330 m² und fortlaufend modernisiert eignet sich das herrschaftliche Gebäude gleichermaßen als Kapitalanlage oder zu entwickelndes repräsentatives Bürogebäude.Bestehend aus jeweils 2 Wohnungen im Erdgeschoss mit Gartenanteil.2 Wohnungen im 1.Obergeschoss mit großzügigen Balkonen/ Dachterrasse.1 Wohnung im Dachgeschoss.In 2008 wurde das Dachgeschoss weiter ausgebaut und renoviert: Einbau von Küchen, Fenster mit Kunststoff-Isolierverglasung, Elektrik und Bäder wurden teilsaniert. Solaranlage auf dem Dach. Voll unterkellert. Die Beheizung erfolgt mit einer Ölzentralheizung aus dem Jahr 2010 zusätzlich sind teilweise offene Kaminöfen in den Wohnzimmern vorhanden.Wenn wir Ihr Interesse geweckt haben, dann kontaktieren Sie uns bitte.Gerne lassen wir Ihnen ein ausführliches Exposé zukommen.Hinweis: Für die Planung von Besichtigungsterminen, bitten wir vorab um eine (vorläufige) Finanzierungsbestätigung oder einen Kapitalnachweis.
zu den Kontaktinfosjetzt kostenlosen Suchagenten aktivieren
Nach oben scrollen