Objektdaten
Objektbeschreibung
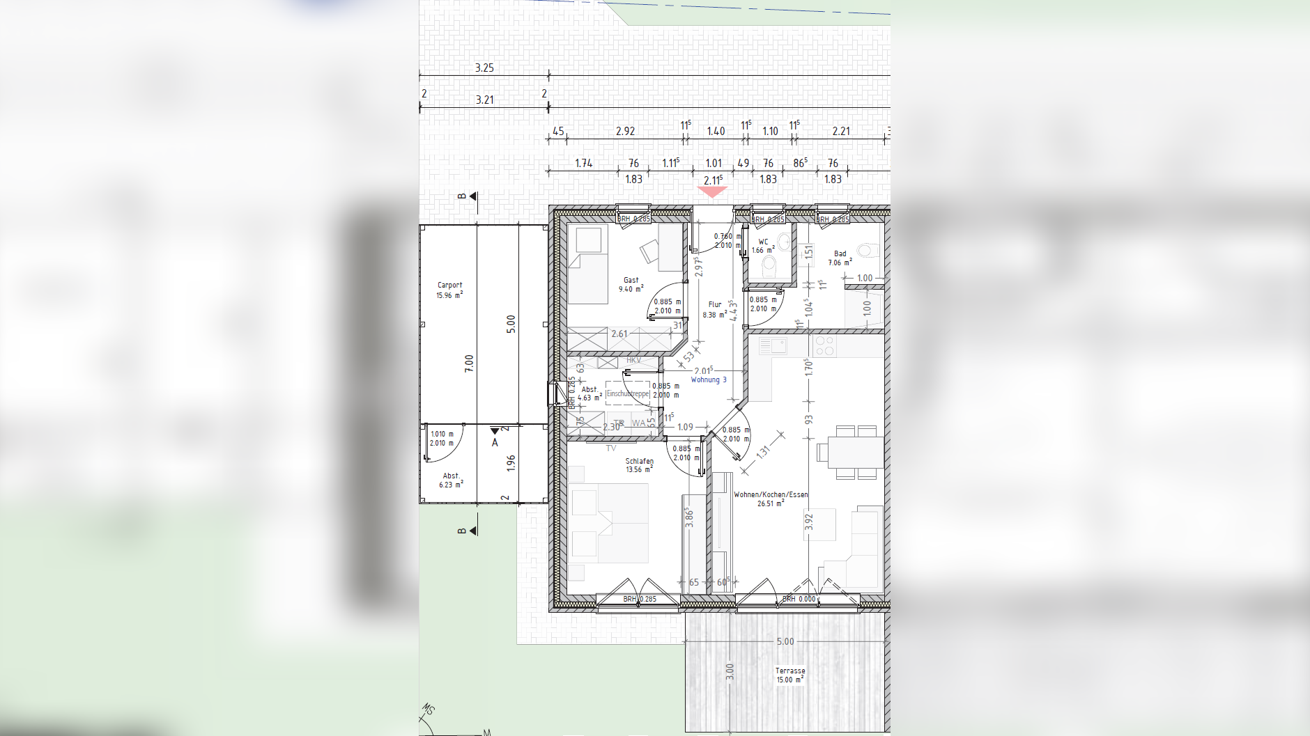
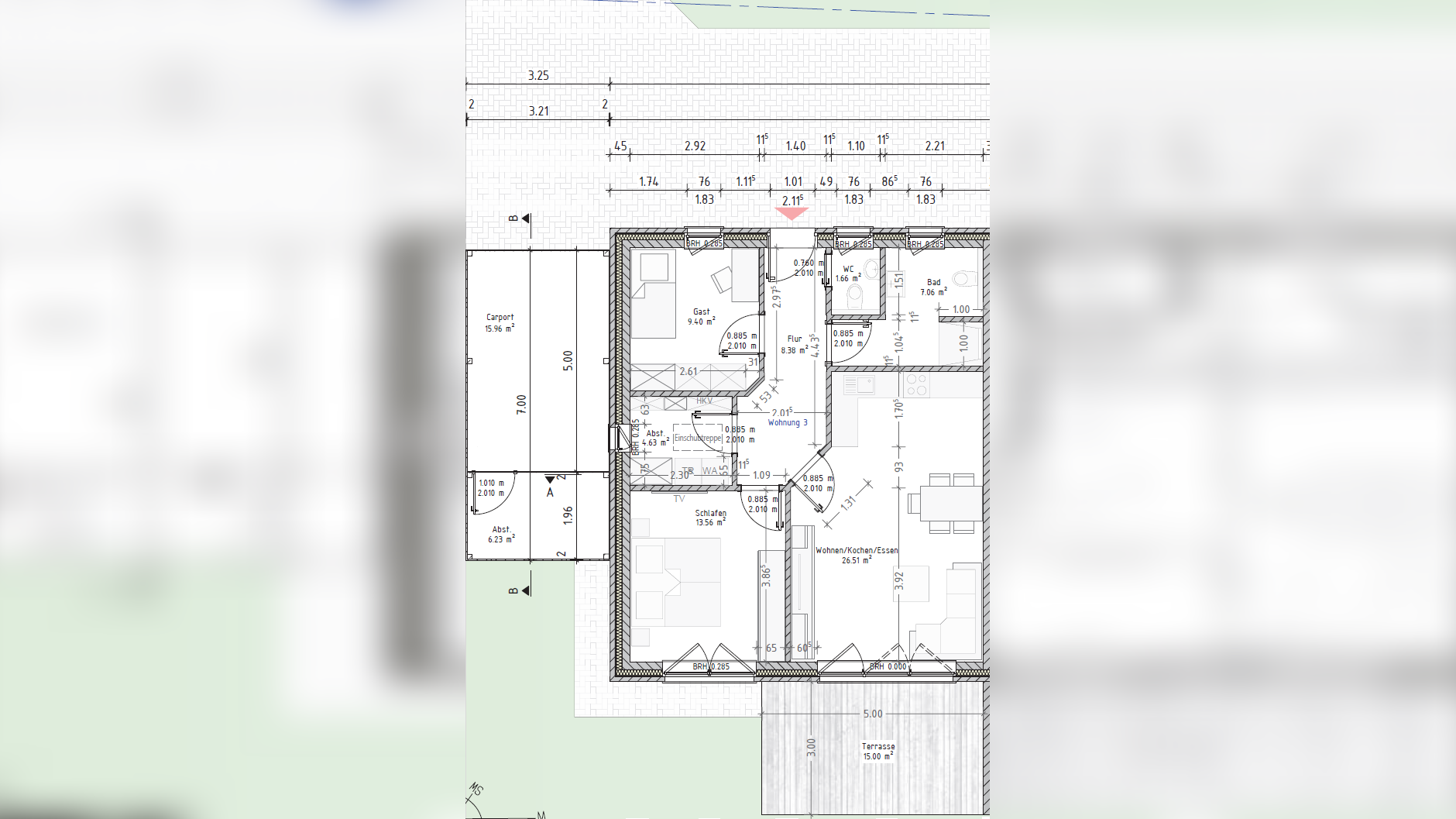
Objekt Auf einem großzügigen Grundstück im Neubaugebiet Am Mittelweg wird ein barrierefreies Bungalow-Doppelhaus erbaut. Das seniorengerechte Doppelhaus wird in hochwertiger Bauweise mit bestem Schallschutz und optimaler Wärmedämmung errichtet. Helle, lichtdurchflutete Räume mit großen bodentiefen Fenstern verleihen den Wohnräumen eine besonders behagliche Atmosphäre. Für maximalen Komfort sorgt die moderne Fußbodenheizung mit Raumthermostaten in allen Räumen. Eine Sanitärausstattung mit namenhaften Sanitärobjekten und einer ebenerdig gefliesten Dusche rundet das Objekt ab. Der Doppelbungalow wird schlüsselfertig fertiggestellt und mit exklusiven Materialien wie hochwertigen Fliesenn/ Vynil und modernen weißen Innentüren ausgestattet.Für jede Haushälfte wird ein Carport mit Geräteraum errichtet. Die Außen- bzw. Gartenanlage wird pflegeleicht angelegt. Raumaufteilung Jede Haushälfte verfügt über 85 m² Wohnfläche sowie einen Carport mit Geräteraum. Im Erdgeschoss befinden sich ein Schlafzimmer, ein Gäste-/Kinderzimmer, ein Gäste-WC, ein Bad mit ebenerdiger Dusche und eine großzügige Wohnraumküche mit einem Zugang zur Terrasse. Das Bad und Gäste-WC sind bis 1,20 m mit hellen hochwertigen Fliesen verfliest. Ein geräumiger Hauswirtschaftsraum bietet Ihnen reichlich Abstellfläche sowie die notwendigen Anschlüsse für die Waschmaschine und Trockner. Zusätzlich hat der Hauswirtschaftsraum eine Einschubtreppe zum Dachboden, der bietet Ihnen zusätzliche Abstellfläche und viel Stauraum.So funktioniert es
- Alle neuen Anzeigen matchen wir kostenlos mit Deinen Suchparametern.
- Passende Angebote senden wir Dir in einer E-Mail pro Tag.
- Du kannst auch verschiedene Suchen anlegen und Dich jederzeit abmelden. Mehr dazu




