Ihr persönliches Einfamilienhaus in Fulda – inkl. Technik, Material, Bodenplatte und Grundstück!

Kaufpreis 307.000 €
Zimmer 3
36037 Fulda
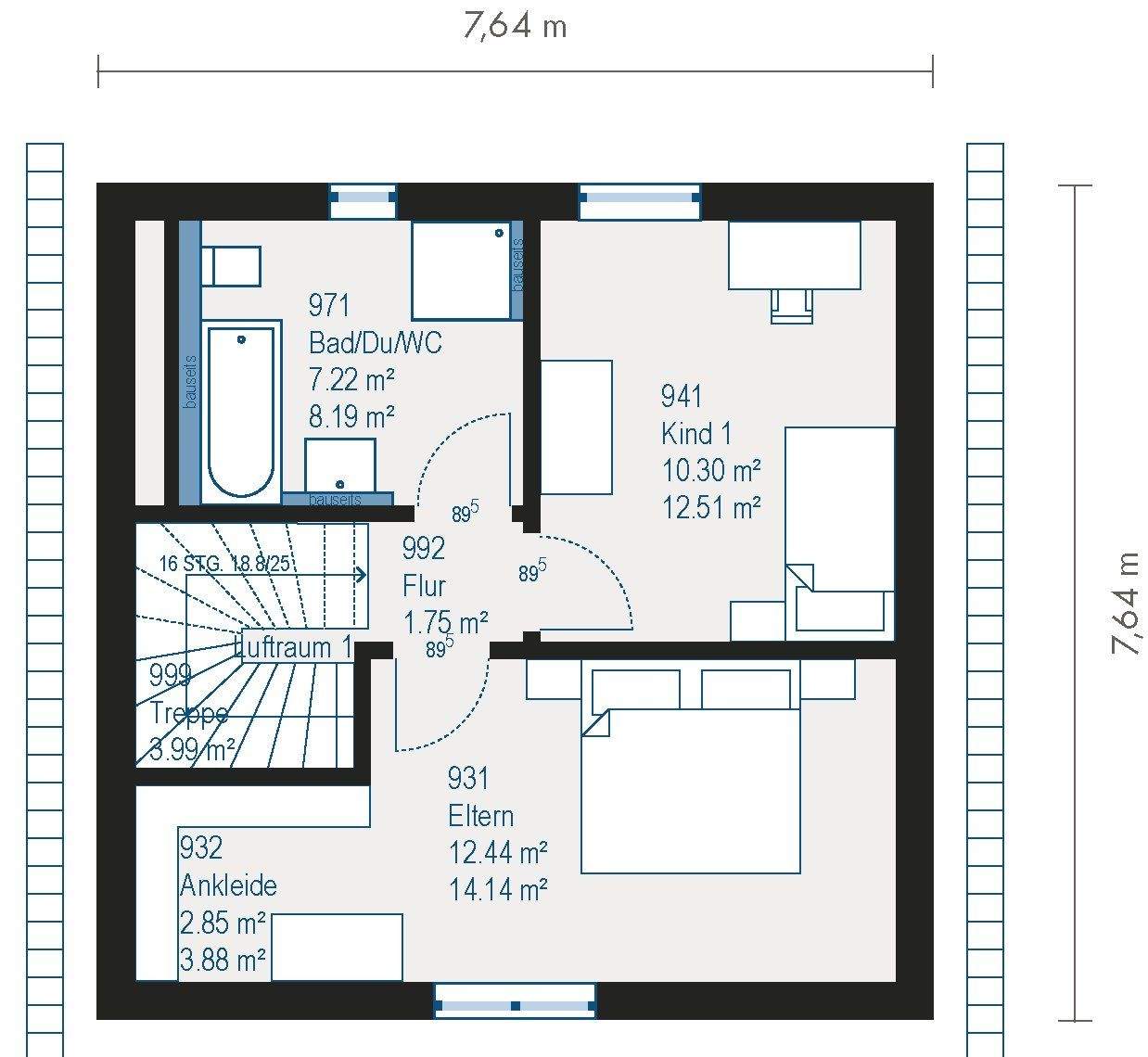
Größe 91 m2

Objektdaten

Veröffentlicht am: 7. Oktober 2025
Energieausweis: Liegt bei der Besichtigung vor

Objektbeschreibung

Willkommen in Ihrem zukünftigen Zuhause! Dieses charmante Einfamilienhaus wird nach Ihren individuellen Wünschen und Vorstellungen projektiert. Mit einer Wohnfläche von 91,07 m² und 3 Zimmern, verteilt auf 2 Etagen, bietet es Ihnen ausreichend Platz für eine kleine Familie oder ein Paar, das viel Raum für persönliche Gestaltung schätzt. Die optimal durchdachte Raumaufteilung umfasst zwei Schlafzimmer und ein luxuriöses Badezimmer mit Dusche, Wanne und Fenster - ein Ort der Entspannung und des Wohlfühlens. Dank der Möglichkeit, das Haus nach Ihren Vorstellungen zu gestalten, können Sie die Innenräume ganz nach Ihrem Geschmack einrichten und ausstatten. Die Verwendung von hochwertigen Materialien und die Beachtung der neuesten Bau- und Energiestandards garantieren Ihnen ein behagliches und energieeffizientes Zuhause.
zu den Kontaktinfosjetzt kostenlosen Suchagenten aktivieren
Nach oben scrollen