!!Willkommen in Ihrem neuen Zuhause – stilvoll, flexibel und zukunftsorientiet!!

Kaufpreis 1.108.000 €
Zimmer 11
67117 Limburgerhof
Größe 294 m2

Objektdaten

Veröffentlicht am: 7. Oktober 2025
Energieausweis: Liegt bei der Besichtigung vor

Objektbeschreibung

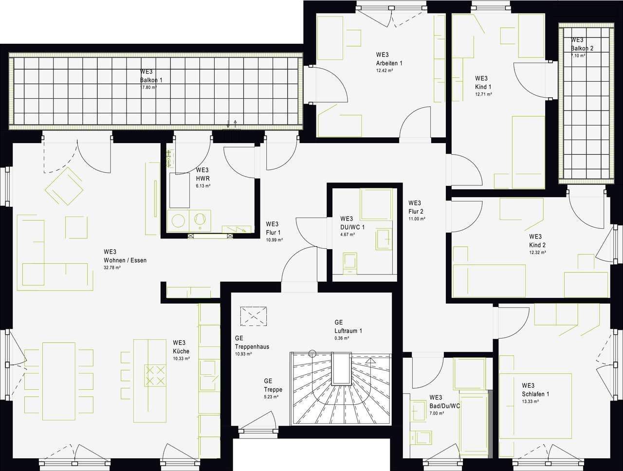
Das Mehrgenerationenhaus UnitStyle 35.31 W mit exklusivem Walmdach vereint modernes Design mit maximaler Gestaltungsfreiheit. Es bietet ideale Voraussetzungen für ein harmonisches Miteinander von bis zu drei Parteien - perfekt für große Familien, mehrere Generationen oder Wohnen und Arbeiten unter einem Dach.Das Highlight: eine luxuriöse Penthousewohnung, die mit Großzügigkeit und Wohnkomfort begeistert. Ergänzt wird das Konzept durch eine Vielzahl individueller Ausbauoptionen - vom lichtdurchfluteten Wintergarten über charmante Erkerlösungen bis hin zur praktischen Doppelgarage. Hier gestalten Sie Ihr Zuhause ganz nach Ihren Vorstellungen.Die flexible Grundrissplanung eröffnet Ihnen unzählige Möglichkeiten, das Haus sowohl funktional als auch optisch an Ihre Wünsche anzupassen. So entsteht ein einzigartiges Wohnkonzept, das nicht nur heute, sondern auch in Zukunft begeistert.
zu den Kontaktinfosjetzt kostenlosen Suchagenten aktivieren
Nach oben scrollen