Kaufpreis 229.000 €
Zimmer 3
Größe 70 m²
18609 Binz
Objektdaten
Veröffentlicht am: 7. Oktober 2025
Baujahr: 1993
Energieausweis: Liegt bei der Besichtigung vor
Danke! Bitte bestätige Deine E-Mail-Adresse – wir haben Dir soeben eine Mail geschickt.
Es gab ein Problem beim Absenden. Bitte versuche es erneut.
Bitte bestätige Deine E-Mail-Adresse, um Updates zu erhalten.
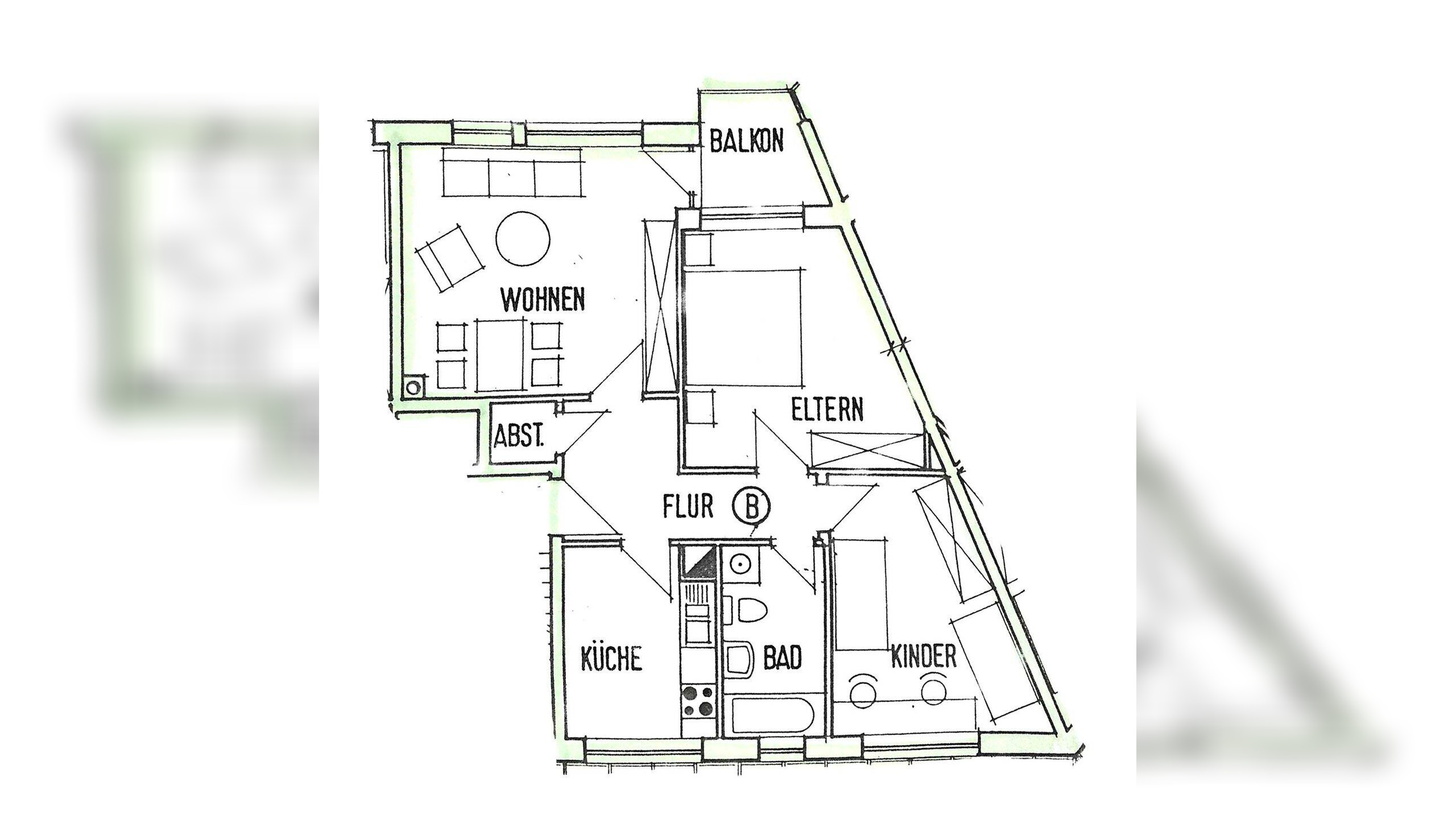
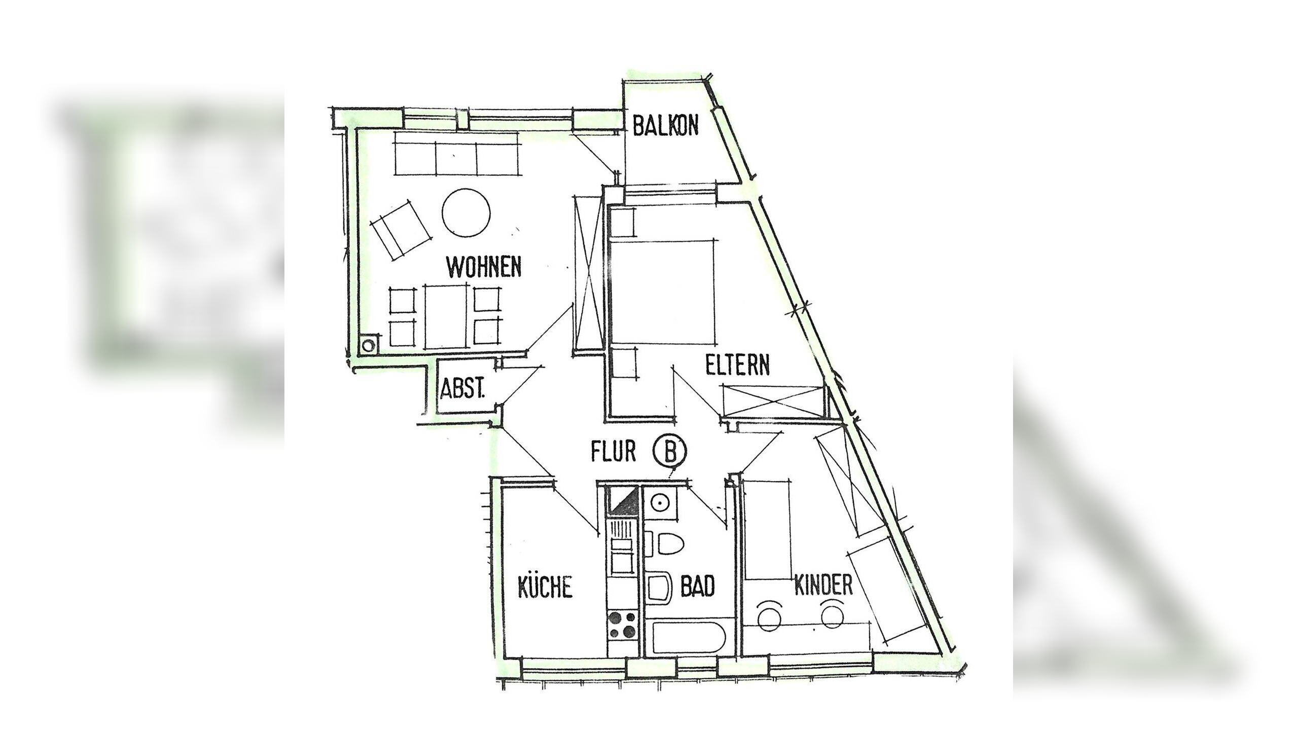
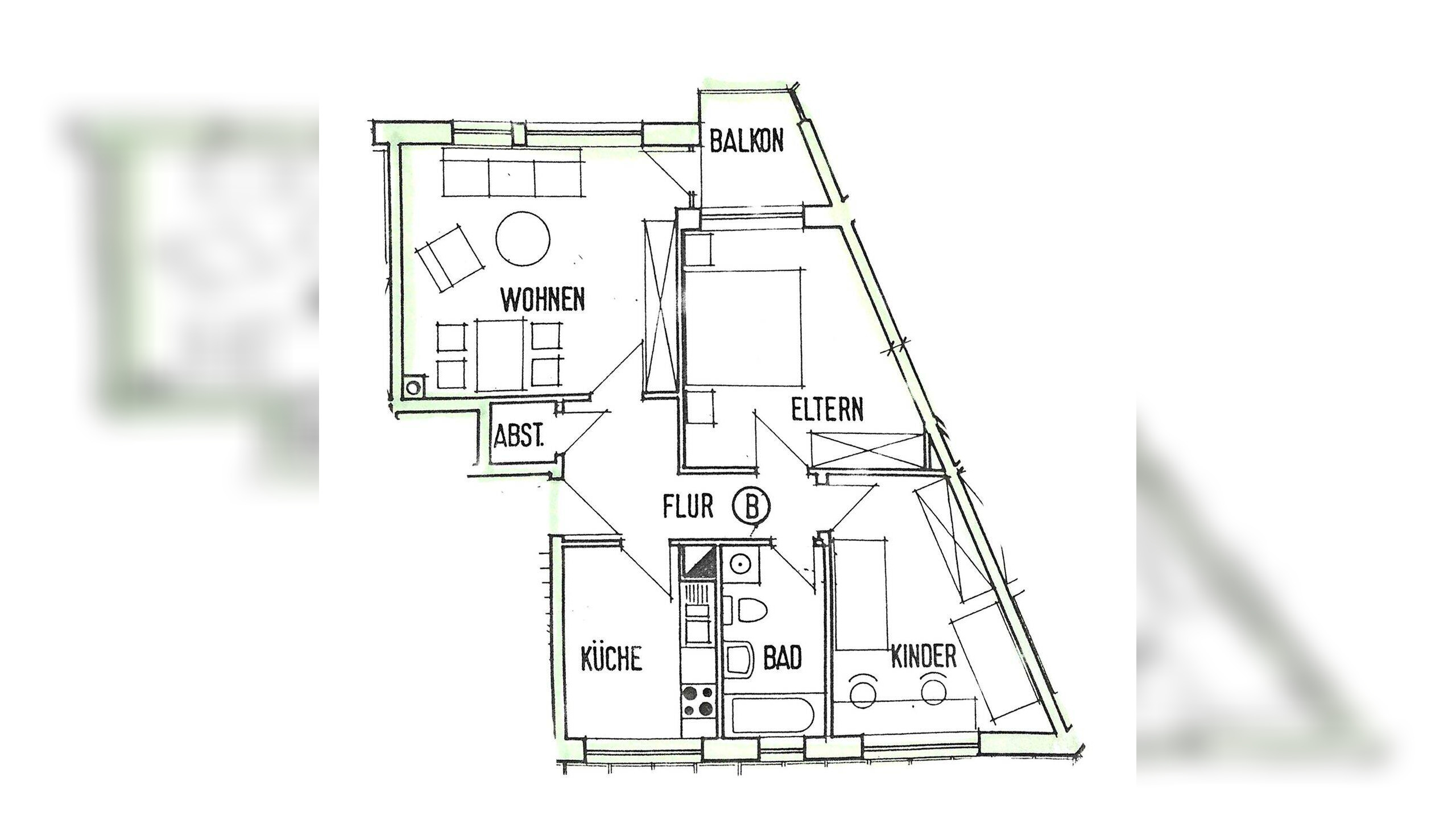
Objektbeschreibung
Ihr neues Zuhause in Strandnähe – Wohnen, wo andere Urlaub machen!Diese charmante Eigentumswohnung überzeugt durch ihre attraktive Lage im beliebten Ostseebad. Der feinsandige Strand ist nur ca. 300 m entfernt und auch der lebendige Ortskern lässt sich in wenigen Minuten fußläufig erreichen. Sowohl der Bahnhof als auch der zentrale Bussbahnhof liegen nur wenige Schritte von der Wohnung entfernt. Einkaufsmöglichkeiten, ein Bäcker sowie ein Allgemeinmediziner, eine Apotheke und ein Friseur befinden sich direkt im Haus bzw. in unmittelbarer Umgebung – bequemer lässt sich der Alltag kaum gestalten.Die Wohnung selbst empfängt Sie mit einem lichtdurchfluteten Wohnambiente. Der sonnige Südbalkon, zugänglich sowohl vom Wohn- als auch vom Schlafzimmer, lädt zu entspannten Stunden an der frischen Ostseeluft ein. Das großzügige Tageslichtbad verfügt über eine Badewanne und bietet somit zusätzlichen Komfort. Ein PKW-Stellplatz hinter dem Haus gehört ebenso zur Wohnung wie eine separate Abstellkammer im Dachgeschoss. Nach einer entspannten Fahrradtour entlang der Küste können Sie Ihr Rad sicher im eigenen Fahrradabstellraum unterbringen. Diese Wohnung vereint eine erstklassige Lage mit praktischen Ausstattungsmerkmalen und ist somit ideal als Haupt- oder Zweitwohnsitz geeignet, aber auch als Kapitalanlage. Mit Rujana steht Ihnen auf Wunsch nach dem Kauf eine professionelle Agentur für die komplette Betreuung zur Verfügung.
So funktioniert es
- Alle neuen Anzeigen matchen wir kostenlos mit Deinen Suchparametern.
- Passende Angebote senden wir Dir in einer E-Mail pro Tag.
- Du kannst auch verschiedene Suchen anlegen und Dich jederzeit abmelden. Mehr dazu
Wir haben soeben eine E-Mail mit Deinem Suchauftrag an Dich geschickt. – Klicke in dieser Mail auf den Bestätigungslink und schon geht's los. Prüfe ggf. auch Deinen Spamordner.
Es gab ein Problem beim Absenden Deiner E-Mail-Adresse. Bitte versuche es erneut.
WARNUNG: Bitte bestätige Deine E-Mail-Adresse, um regelmäßige Updates zu erhalten.