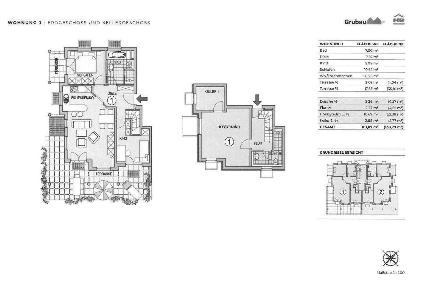
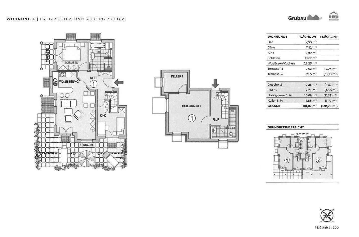
FBC – Residenz Fasanenweg – Exklusive 4-Zimmer-Gartenwohnung mit Lift in schöner Naturlage – Whg. Nr. 1

Kaufpreis 809.000 €
Zimmer 4
82140 Olching
Größe 101 m2

Objektdaten

Veröffentlicht am: 11. Oktober 2025
Energieausweis: Liegt bei der Besichtigung vor

Objektbeschreibung

Objektbeschreibung Die ansprechende Garten-Souterrain-Wohnung befindet sich in einem kleinen Mehrfamilienhaus (6 Wohnungen) am Fasanenweg 5 in Olching. Die Wohnung besticht durch eine perfekte Grundrissaufteilung. Über die Diele/Flur erreichen Sie den wunderschön, geschnittenen Wohn-Essbereich mit offener Küche geplant. Den Wohnbereich begehen Sie über die schöne Süd-West-Terrasse mit kleinen Garten. Das Schlafzimmer und das Kinderzimmer (ebenso mit Terrassen-Zugang) sind ideal ebenso über die Diele erreichbar und von dieser gelangen Sie über eine Treppe zu Hobbyraum / und Duschbad. Die Wohnung ist ideal für 2-4 Personen, bestens geeignet (mit Liftanlage im Haus). Raumaufteilung Die Ausstattung dieser Wohnung wird mit hochwertigem Designböden (Fliesen u. Vinyl) und Fussbodenheizung in allen Wohnräumen (im Untergeschoss/ Hobby-Bad-Flur) erfolgen.Sie können direkt mit den Handwerkern Ihre individuellen Wünsche realisieren und haben durch die umfangreiche Baubeschreibung (erhalten Sie bei weiterem Interesse) schon eine ideale und sehr gute Grundausstattung.
zu den Kontaktinfosjetzt kostenlosen Suchagenten aktivieren
Nach oben scrollen