Kaufpreis 18.000 €
Zimmer 2
06463 Falkenstein/Harz
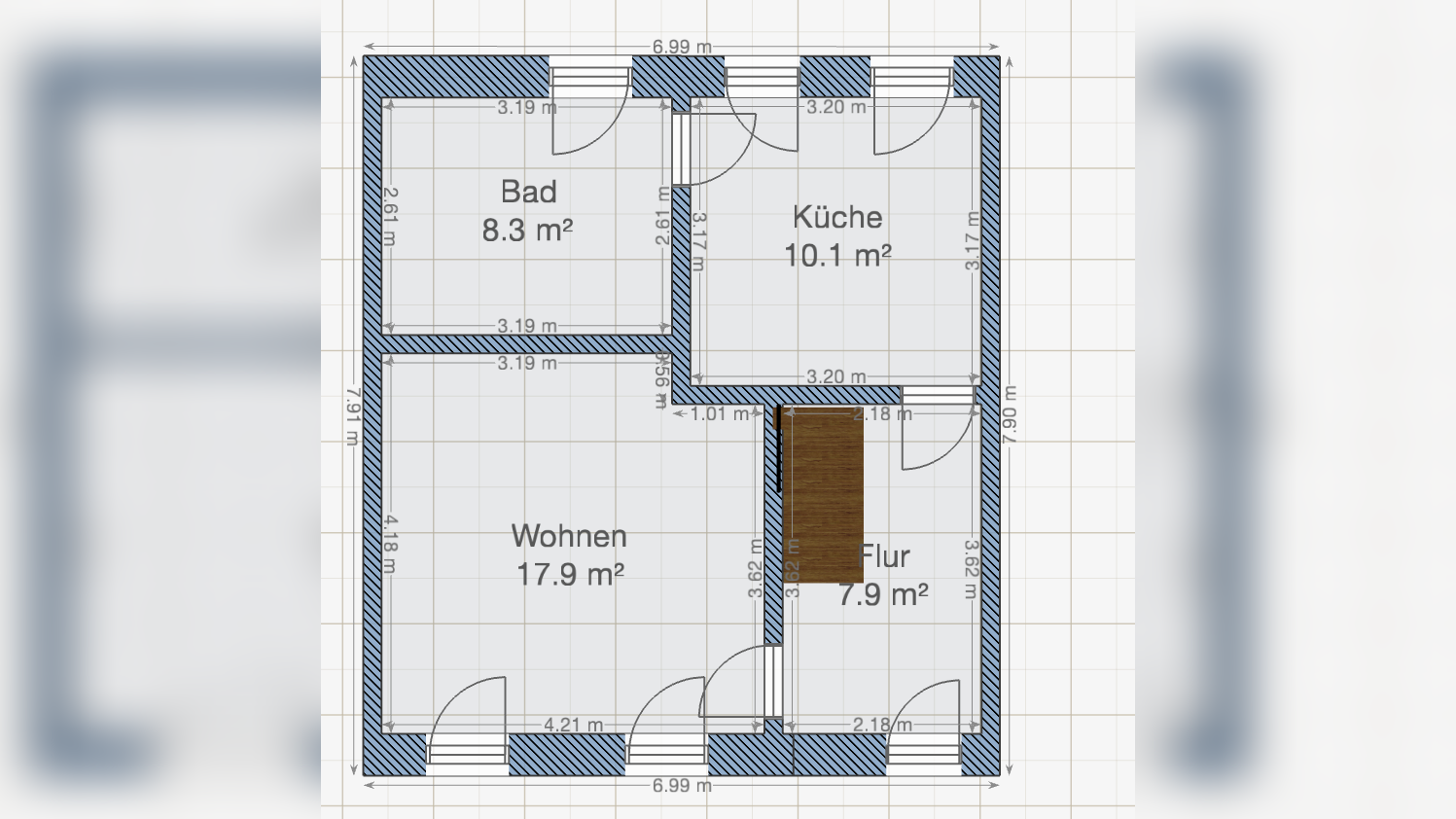
Größe 60 m2
Objektdaten
Veröffentlicht am: 23. Oktober 2025
Energieausweis: Liegt bei der Besichtigung vor
Danke! Bitte bestätige Deine E-Mail-Adresse – wir haben Dir soeben eine Mail geschickt.
Es gab ein Problem beim Absenden. Bitte versuche es erneut.
Bitte bestätige Deine E-Mail-Adresse, um Updates zu erhalten.
Objektbeschreibung
In ruhiger Wohnlage von Reinstedt befindet sich dieses charmante Reihenendhaus aus ca. 1900, das mit seinem klassischen Baustil und den charakteristisch starken Außenwänden überzeugt. Auf einer Wohnfläche von etwa 60 m² und einem Grundstück von 353 m² bietet das Objekt eine solide Basis für kreative Modernisierungsideen und individuellen Wohnraum nach eigenen Vorstellungen.Das Haus ist voll erschlossen und verfügt über Wasser-, Abwasser- und Stromanschluss. Die Elektrik wurde nach VDE-Richtlinien erneuert, sodass hier bereits wichtige Bereiche auf einem neueren Stand sind. Beheizt wurde zuletzt über Öl-Einzelöfen. Das Dach ist alt, jedoch noch dicht, und der Keller präsentiert sich trocken. Insgesamt befindet sich die Immobilie in einem stark verwohntem Zustand und bedarf einer umfassenden Renovierung, ebenso wie die Außenanlagen.Auf dem Grundstück befinden sich eine Garage sowie zwei Nebenräume, von denen eines separat vom Garten aus begehbar ist - ideal für Werkstatt, Lagerfläche oder Hobbyzwecke.Dieses Haus eignet sich hervorragend für Käufer, die den Charme älterer Gebäude schätzen und ein Objekt mit Potential suchen, das durch handwerkliches Geschick zu einem gemütlichen Zuhause werden kann.
So funktioniert es
- Alle neuen Anzeigen matchen wir kostenlos mit Deinen Suchparametern.
- Passende Angebote senden wir Dir in einer E-Mail pro Tag.
- Du kannst auch verschiedene Suchen anlegen und Dich jederzeit abmelden. Mehr dazu
Wir haben soeben eine E-Mail mit Deinem Suchauftrag an Dich geschickt. – Klicke in dieser Mail auf den Bestätigungslink und schon geht's los. Prüfe ggf. auch Deinen Spamordner.
Es gab ein Problem beim Absenden Deiner E-Mail-Adresse. Bitte versuche es erneut.
WARNUNG: Bitte bestätige Deine E-Mail-Adresse, um regelmäßige Updates zu erhalten.