Kaufpreis 475.000 €
Zimmer 2
82194 Gröbenzell
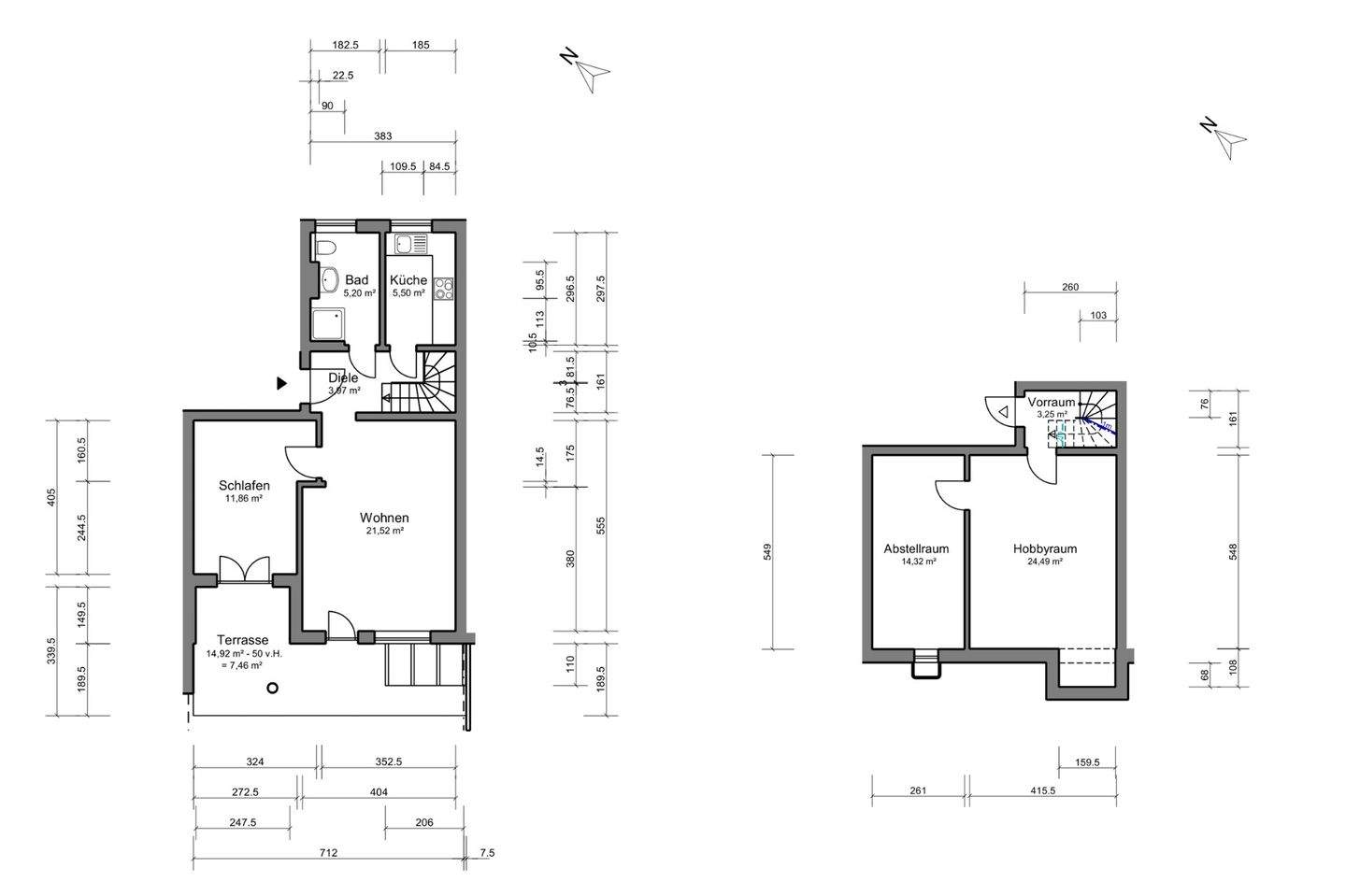
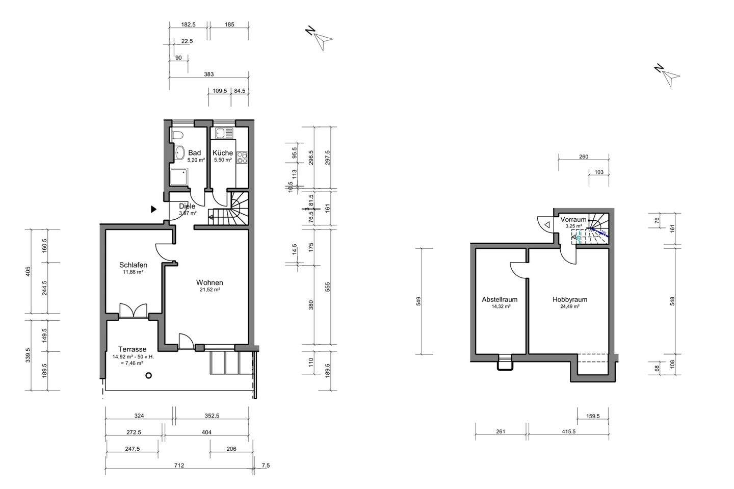
Größe 68 m2
Objektdaten
Veröffentlicht am: 27. Oktober 2025
Baujahr: 2000
Energieausweis: Liegt bei der Besichtigung vor
Danke! Bitte bestätige Deine E-Mail-Adresse – wir haben Dir soeben eine Mail geschickt.
Es gab ein Problem beim Absenden. Bitte versuche es erneut.
Bitte bestätige Deine E-Mail-Adresse, um Updates zu erhalten.
Objektbeschreibung
WINDISCH IMMOBILIEN präsentiert Ihnen eine charmante 2-Zimmer-Gartenwohnung mit einer Wohnfläche von ca. 68 m² mit einem vielseitig nutzbaren Hobbyraum im Untergeschoss - ideal für Homeoffice, Fitness oder Gäste. Die Immobilie befindet sich in einem gepflegten Mehrfamilienhaus mit nur 4 Parteien in ruhiger, familienfreundlicher Lage von Gröbenzell.Die Wohnung liegt im Erdgeschoss und überzeugt durch ihre helle, einladende Atmosphäre. Der offene Wohn- und Essbereich mit angrenzender Küche bietet viel Platz zum Wohlfühlen und geselligen Beisammensein. Vom Wohnzimmer aus gelangen Sie direkt auf die sonnige Südwest-Terrasse mit Blick ins Grüne - perfekt für entspannte Stunden im Freien.Das Schlafzimmer bietet ausreichend Platz für ein Doppelbett und Kleiderschrank, während das Tageslichtbad mit Dusche und Waschmaschinenanschluss ausgestattet ist. Ein praktischer Flur verbindet alle Räume und schafft ein angenehmes Wohngefühl.Im Untergeschoss stehen Ihnen ein großzügiger Hobbyraum sowie ein separater Kellerraum zur Verfügung - zusätzlicher Stauraum und flexible Nutzungsmöglichkeiten inklusive.Eine Einzelgarage vor dem Haus sorgt für komfortables Parken.FAZIT:Diese gepflegte 2-Zimmer-Wohnung mit Garten besticht durch ihre ruhige Lage, den durchdachten Grundriss und den großzügigen Hobbyraum im Untergeschoss. Sie eignet sich ideal für Singles, Paare oder kleine Familien, die Wert auf ein helles, freundliches Zuhause mit Wohlfühlfaktor legen.
So funktioniert es
- Alle neuen Anzeigen matchen wir kostenlos mit Deinen Suchparametern.
- Passende Angebote senden wir Dir in einer E-Mail pro Tag.
- Du kannst auch verschiedene Suchen anlegen und Dich jederzeit abmelden. Mehr dazu
Wir haben soeben eine E-Mail mit Deinem Suchauftrag an Dich geschickt. – Klicke in dieser Mail auf den Bestätigungslink und schon geht's los. Prüfe ggf. auch Deinen Spamordner.
Es gab ein Problem beim Absenden Deiner E-Mail-Adresse. Bitte versuche es erneut.
WARNUNG: Bitte bestätige Deine E-Mail-Adresse, um regelmäßige Updates zu erhalten.