Kaufpreis 525.000 €
Zimmer 7
66663 Merzig
Größe 190 m2
Objektdaten
Veröffentlicht am: 11. November 2025
Baujahr: 2005
Energieausweis: Liegt bei der Besichtigung vor
Danke! Bitte bestätige Deine E-Mail-Adresse – wir haben Dir soeben eine Mail geschickt.
Es gab ein Problem beim Absenden. Bitte versuche es erneut.
Bitte bestätige Deine E-Mail-Adresse, um Updates zu erhalten.
Objektbeschreibung
Die linksseitig angebaute Doppelhaushälfte ist in einem verkehrsberuhigten Bereich am Anfang einer Seitenstraße in Merzig - Ortsteil Brotdorf gelegen.
Die Grundschule Brotdorf ist fußläufig in 10 Minuten erreicht. Kindergärten und weiterführende Schulen, sowie auch Ärzte und Geschäfte des täglichen Lebens sind maximal 20 Minuten entfernt. Mit dem Auto hat man sowohl die Kreisstadt Merzig für alltägliche Erledigungen und Shopping, als auch den Losheimer Stausee zur Erholung oder für Events in ca. 12 Minuten erreicht. Der Baumwipfelpfad an der Saarschleife in Mettlach ist ebenfalls gerade einmal 25 Minuten entfernt. Ein abwechslungsreiches Angebot an Freizeit- und Erholungsmöglichkeiten liegt damit praktisch vor der Tür.
Ebenso gibt es in unmittelbarer Nähe eine Bushaltestelle, sodass man auch mit dem ÖPNV in maximal 15 Minuten in Losheim oder Merzig ist. Die Anschlussstelle A8 ist 15 Autominuten entfernt, sodass die Lage auch für Pendler z.B. nach Luxemburg wie gemacht ist.
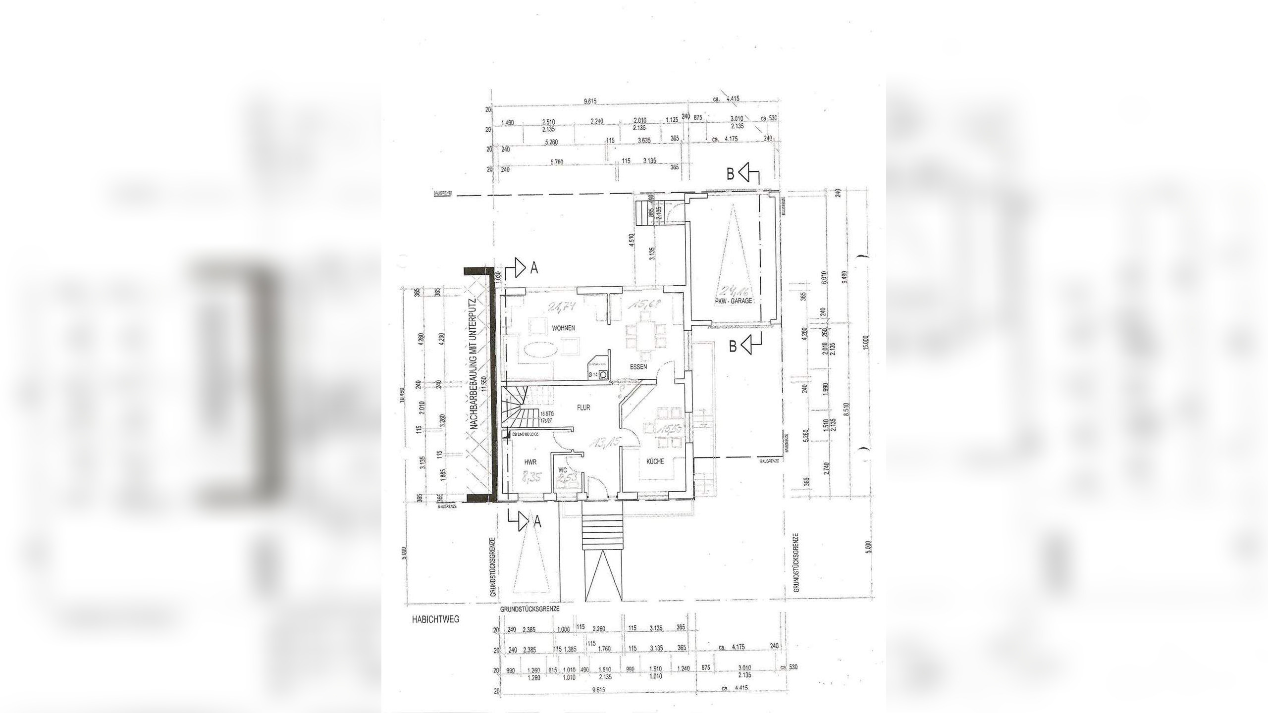
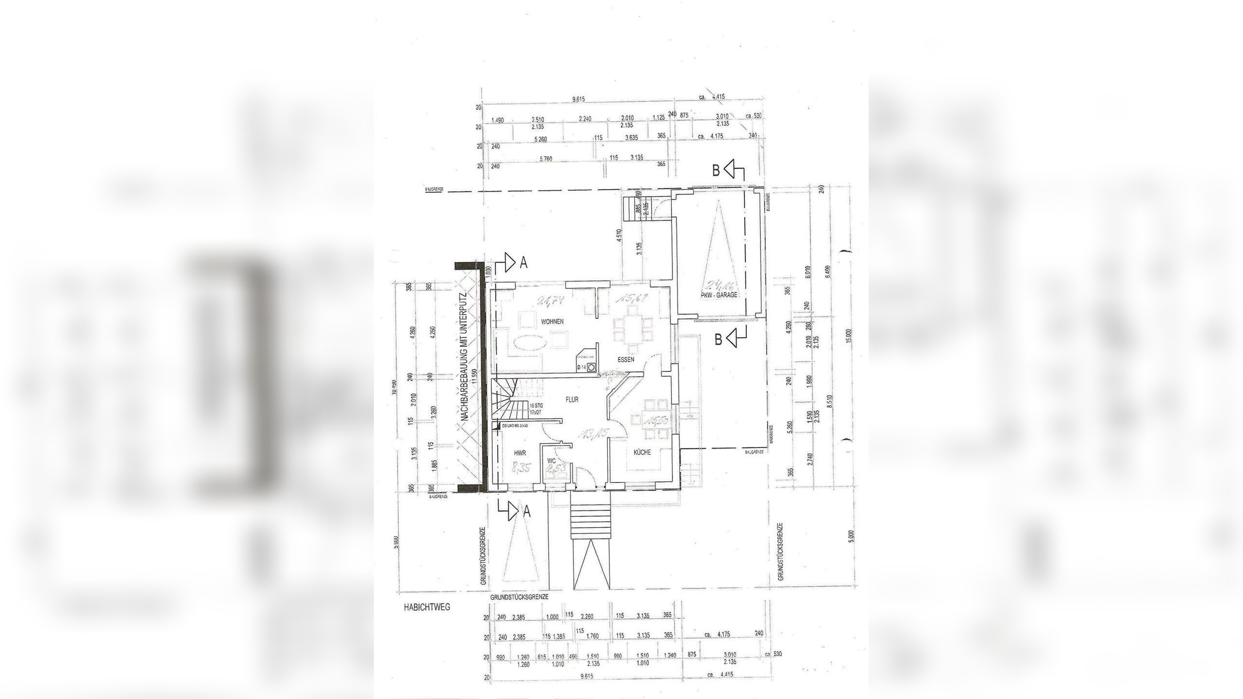
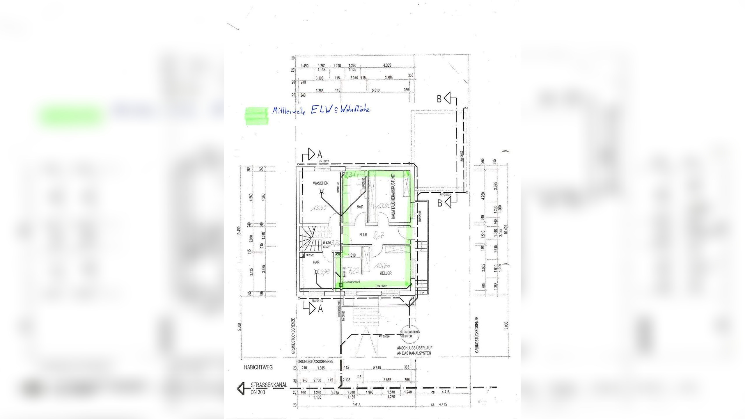
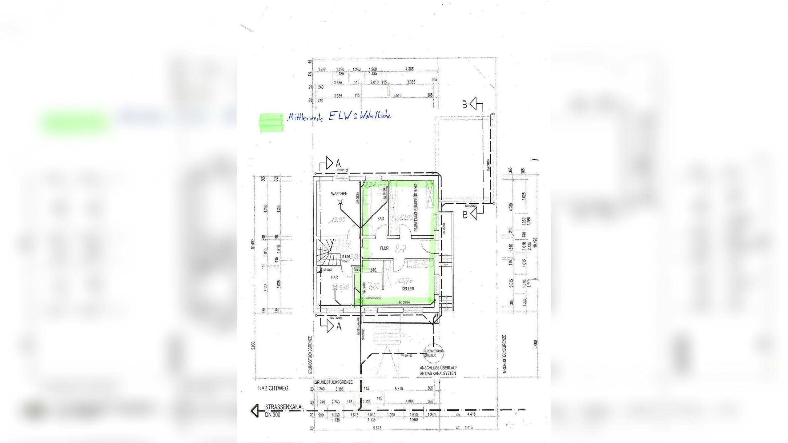
Die Doppelhaushälfte teilt sich in eine große Wohnung über 2 Etage und eine kleine Einliegerwohnung auf. Die Wohnungen verfügen über 2 getrennte Eingänge. Beide Einheiten sind derzeit vermietet.
Die Aufteilung stellt sich wie folgt dar:
Einliegerwohnung - KG:
- Eingangsbereich
- offener Wohn-/Essbereich mit Einbauküche und Theke
- Badezimmer mit Dusche / Badewanne und Fenster (Waschmaschinenanschluss befindet sich im Badezimmer)
-Schlafzimmer
große Wohnung:
KG:
- Kellerraum mit Zählern und Hauptanschlüssen
- Wasch- und Trockenraum
EG:
- Gäste-Bad mit WC und Dusche
- Hauswirtschaftsraum
- Küche mit Einbauküche mit Granitarbeitsplatte - offener Bereich
- Wohn- / Esszimmer mit Zugang zur Terrasse mit Garten
DG:
- 2 Kinderzimmer - eins mit separatem Ankleideraum
- 1 Elternschlafzimmer
- großes Badezimmer mit Schneckendusche
- Dachboden kann als Abstellfläche genutzt werden
Die Doppelhaushälfte wurde 2005 erbaut und mit einem Unilindach als auch Silikonputz im Außenbereich ausgestattet. Die verbauten Fenster verfügen bereits über 3-fach Verglasung.
Bei Bedarf und je nach Fahrzeuggröße können 2 Autos in der Garage untergebracht werden. Weitere Stellplätze in der Einfahrt sowie vorm Haus sind vorhanden.
Im Erdgeschoss sowie im Badezimmer im Obergeschoss ist Fußbodenheizung installiert. In der Küche wurden im Wand- und Bodenbereich Granitfliesen verlegt. Der gesamten oberen Etage verleiht das vorhandene Sichtgebälk einen besonderen Charme.
Die Terrasse sowie der dazugehörige Garten eignet sich ideal für Feiern mit Familie und Freunden oder gemütliche Abende zu zweit.
So funktioniert es
- Alle neuen Anzeigen matchen wir kostenlos mit Deinen Suchparametern.
- Passende Angebote senden wir Dir in einer E-Mail pro Tag.
- Du kannst auch verschiedene Suchen anlegen und Dich jederzeit abmelden. Mehr dazu
Wir haben soeben eine E-Mail mit Deinem Suchauftrag an Dich geschickt. – Klicke in dieser Mail auf den Bestätigungslink und schon geht's los. Prüfe ggf. auch Deinen Spamordner.
Es gab ein Problem beim Absenden Deiner E-Mail-Adresse. Bitte versuche es erneut.
WARNUNG: Bitte bestätige Deine E-Mail-Adresse, um regelmäßige Updates zu erhalten.