Objektdaten
Objektbeschreibung
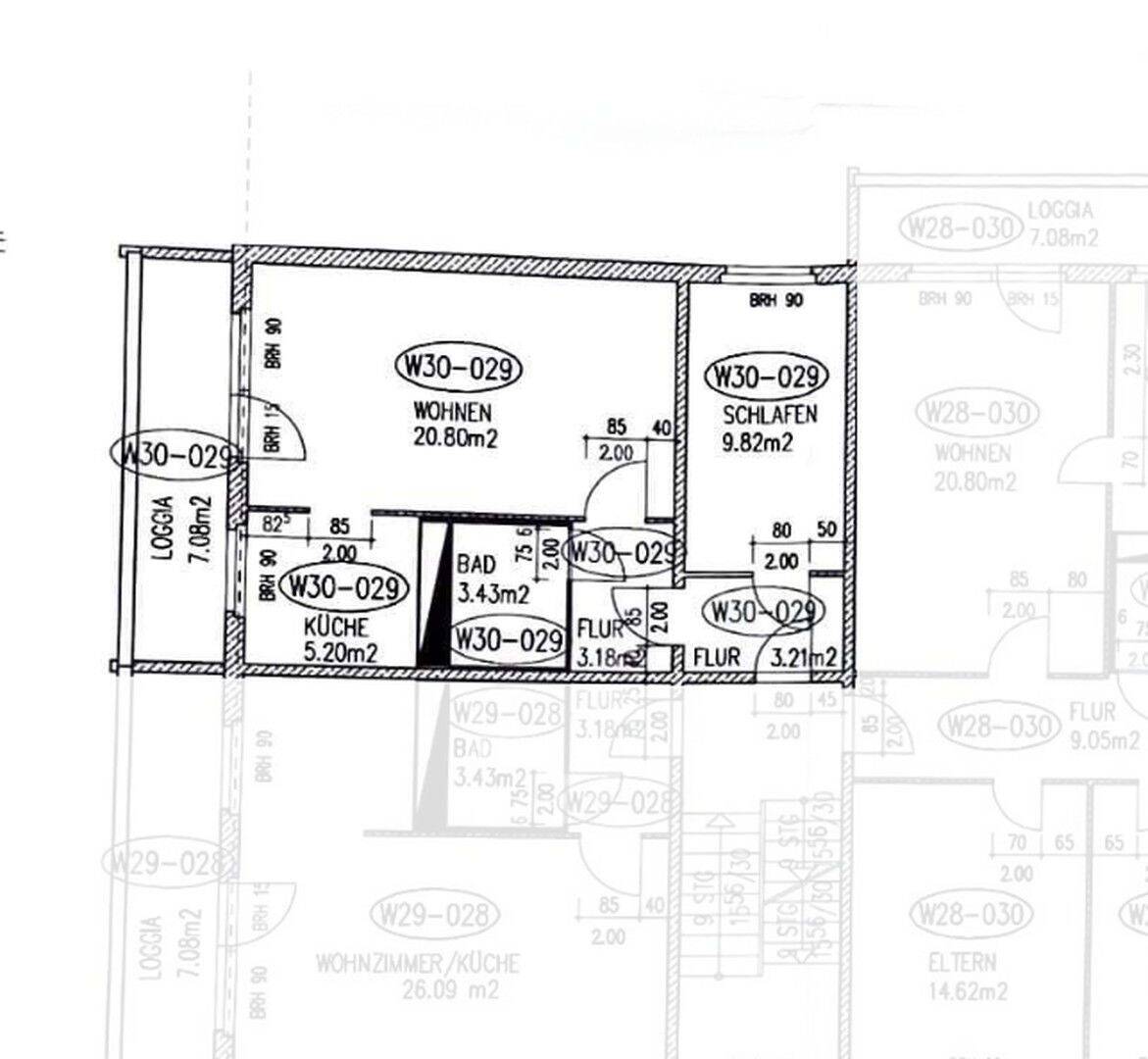
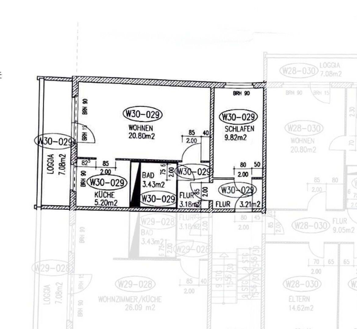
Die 2-Zimmer-Wohnung im 3. Obergeschoss des gepflegten Mehrfamilienhauses Nordring 99b in Görlitz bietet auf ca. 49,1 m² Wohnfläche viel Helligkeit - perfekt für Singles, Berufspendler oder Studenten. Helle Fensterfronten lassen viel Tageslicht in alle Räume und sorgen für eine angenehme und einladende Atmosphäre.Ähnliche Angebote
So funktioniert es
- Alle neuen Anzeigen matchen wir kostenlos mit Deinen Suchparametern.
- Passende Angebote senden wir Dir in einer E-Mail pro Tag.
- Du kannst auch verschiedene Suchen anlegen und Dich jederzeit abmelden. Mehr dazu





