Objektdaten
Objektbeschreibung
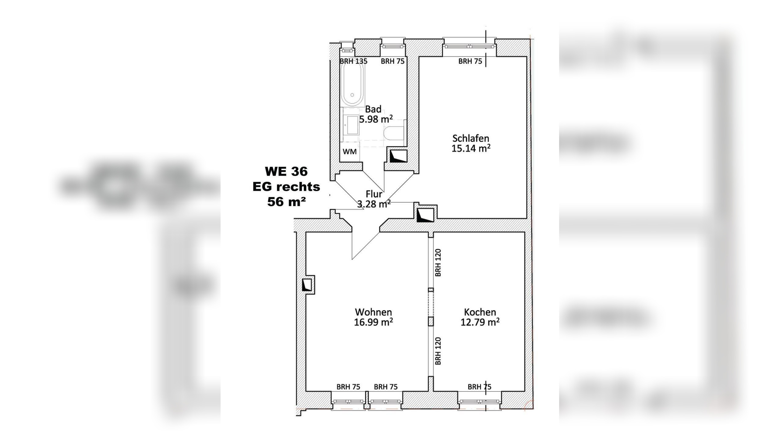
Das Objekt verfügt über einen grünen Innenhof und ein familienfreundliches Umfeld. Das Haus umfasst 11 Wohneinheiten mit 4 Volletagen.Ähnliche Angebote
So funktioniert es
- Alle neuen Anzeigen matchen wir kostenlos mit Deinen Suchparametern.
- Passende Angebote senden wir Dir in einer E-Mail pro Tag.
- Du kannst auch verschiedene Suchen anlegen und Dich jederzeit abmelden. Mehr dazu





