Objektdaten
Objektbeschreibung
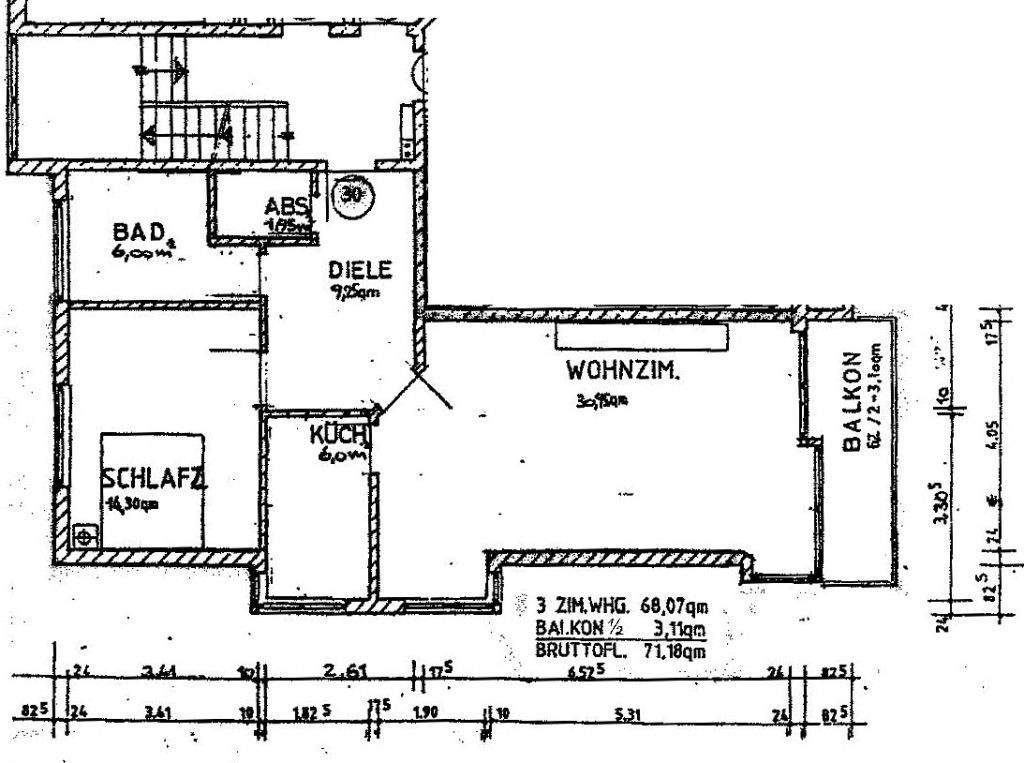
Kurzbeschreibung München - Sendling Objekt Willkommen in dieser stilvollen 3-Zimmer-Wohnung, die auf ca. 75,68 m² ein komfortables und modernes Zuhause bietet. Perfekt geeignet für Singles, Paare oder kleine Familien, überzeugt die Wohnung durch eine durchdachte Raumgestaltung und eine hochwertige Ausstattung.Der großzügige Wohn-/Essbereich mit offener Küche ist der Mittelpunkt der Wohnung. Dank der großen Fensterflächen genießen Sie hier viel Tageslicht und eine freundliche, helle Atmosphäre. Das Highlight der Wohnung ist der Westbalkon - perfekt für gesellige Abende im Freien.Das Schlafzimmer bietet ausreichend Platz für Ihre persönliche Wohlfühloase und garantiert erholsame Nächte. Ein weiteres Zimmer eignet sich hervorragend als Kinderzimmer oder Arbeitsbereich.Die beiden Badezimmer sind mit einer bodengleichen Dusche ausgestattet und bieten durch zusätzliche Anschlüsse für Waschmaschine und Trockner höchsten Komfort. Abgerundet wird das Angebot durch einen Tiefgaragen-Stellplatz sowie ein Kellerabteil, das zusätzlichen Stauraum bietet.Bei den Objektbildern handelt es sich um Visualisierungen, die eine anschauliche Darstellung der geplanten Konzepte oder des vorgesehenen Zustands bieten.Ähnliche Angebote
So funktioniert es
- Alle neuen Anzeigen matchen wir kostenlos mit Deinen Suchparametern.
- Passende Angebote senden wir Dir in einer E-Mail pro Tag.
- Du kannst auch verschiedene Suchen anlegen und Dich jederzeit abmelden. Mehr dazu




