Kaufpreis 1.457.000 €
Zimmer 6
82541 Münsing
Größe 191 m2
Objektdaten
Veröffentlicht am: 23. November 2025
Energieausweis: Liegt bei der Besichtigung vor
Danke! Bitte bestätige Deine E-Mail-Adresse – wir haben Dir soeben eine Mail geschickt.
Es gab ein Problem beim Absenden. Bitte versuche es erneut.
Bitte bestätige Deine E-Mail-Adresse, um Updates zu erhalten.
Objektbeschreibung
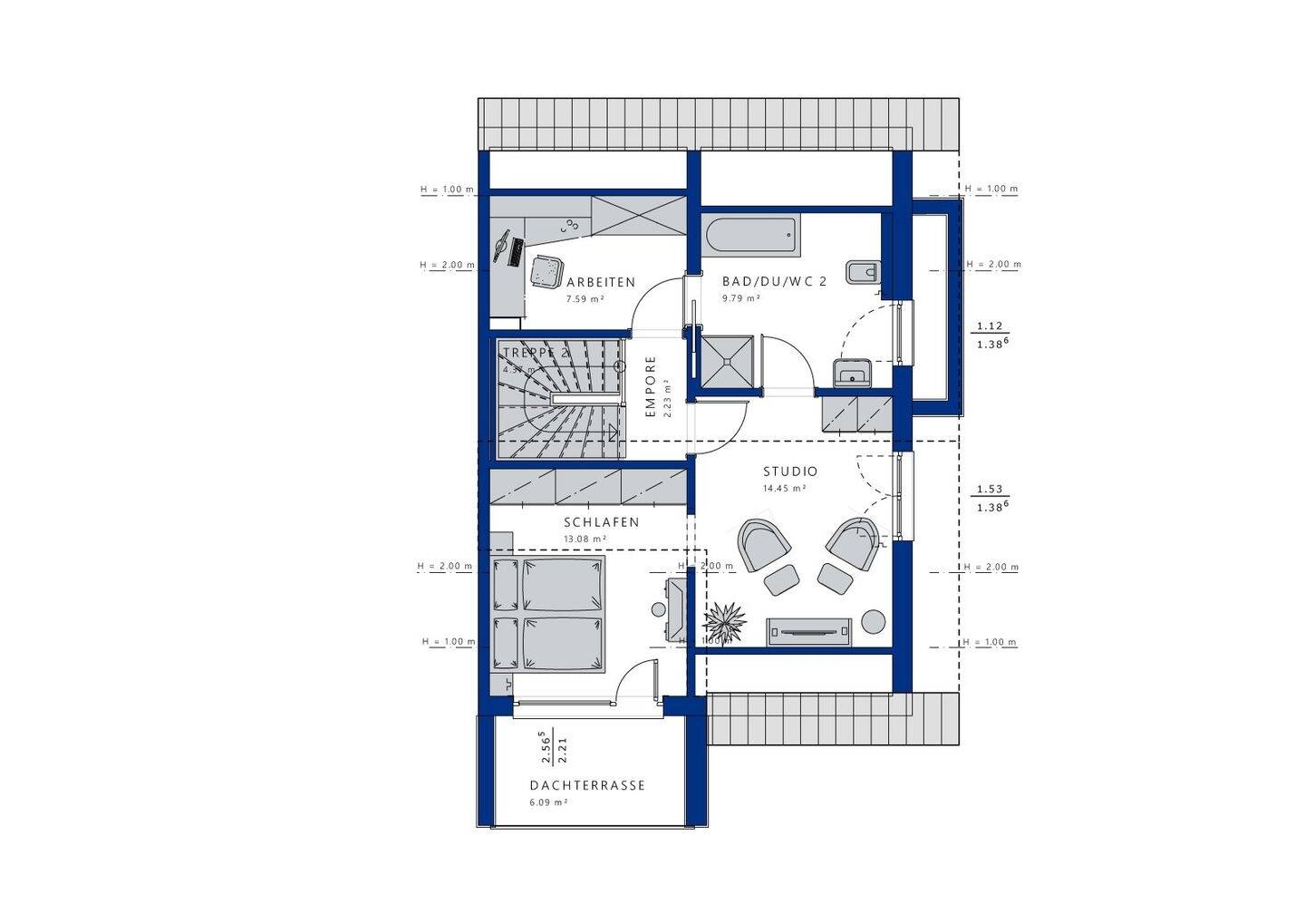
Sehr großes Gr. mit viel Naturfläche mit int. Niveauunterschied. DHH kann auch umgeplant werden. Dass auch auf kleineren Grundstücken große Wohnträume verwirklicht werden können, beweist dieses Doppelhaus. Der Basisbaukörper kommt mit einer Grundfläche von gerade einmal 10 m x 7,40 m aus, bietet im Innern aber eine großzügige Wohnwelt auf drei Ebenen. Für willkommene Platzgewinne sorgen die verschiedenen Architektur-Bauteile: Auf der Eingangsseite schließt sich ein zweigeschossiger Erker mit Flachdach an. Auf der Gartenseite wird das Fertighaus von einem ebenfalls zweigeschossigen Wintergarten-Erker mit Balkon erweitert, über dem ein Zwerchgiebel thront. Sein Flachdach bildet einen spannenden Kontrast zum klassischen Satteldach. In den Winkel zwischen Erker und Haupthaus schmiegt sich ein zweiter Balkon. So hat jede Ebene ihren eigenen Freisitz. Ergänzt wird das Architektur-Konzept von formschönen Fensterpartien, die im Innern ein luftig-leichtes Ambiente schaffen. Betreten wird das Haus über einen Windfang mit angrenzendem Gäste-WC. Über einen offenen Durchgang gelangt man in einen Flur, der zu den weitläufigen Gemeinschaftsräumen führt. Sehr praktisch: Die Küche besitzt einen eigenen Zugang zum Flur. Dadurch lassen sich Wochenendeinkäufe auf direktem Weg zu den Küchenschränken bringen. Als funktionaler Raumteiler und gleichzeitig als Blickfang könnte eine moderne Kochinsel mit Theke fungieren. Der Freiraum vor den bodentiefen Fenstern ist wie geschaffen für einen langen Esstisch, der nicht nur zum gemeinsamen Essen, sondern auch zu geselligen Spieleabenden einlädt. Der Wintergarten-Erker bietet sich für einen Relaxsessel an, von dem man den Blick über die Terrasse und den angrenzenden Garten schweifen lassen kann. Komplettiert wird das Raumprogramm auf der unteren Ebene durch eine kleine Abstellkammer und einen Technikraum. Eine Etage höher befindet sich das Reich der Kinder. Die drei Schlafzimmer eröffnen einen großen Gestaltungsfreiraum: Für jedes Alter lässt sich die passende Wohlfühlumgebung schaffen. Ein Bad mit Wanne und Dusche macht das Wohnglück perfekt. Das Dachgeschoss ist den Eltern vorbehalten. Die Fläche teilen sich ein helles Schlafzimmer, ein flexibel nutzbares Studio, ein Wellnessbad und ein Arbeitszimmer.
So funktioniert es
- Alle neuen Anzeigen matchen wir kostenlos mit Deinen Suchparametern.
- Passende Angebote senden wir Dir in einer E-Mail pro Tag.
- Du kannst auch verschiedene Suchen anlegen und Dich jederzeit abmelden. Mehr dazu
Wir haben soeben eine E-Mail mit Deinem Suchauftrag an Dich geschickt. – Klicke in dieser Mail auf den Bestätigungslink und schon geht's los. Prüfe ggf. auch Deinen Spamordner.
Es gab ein Problem beim Absenden Deiner E-Mail-Adresse. Bitte versuche es erneut.
WARNUNG: Bitte bestätige Deine E-Mail-Adresse, um regelmäßige Updates zu erhalten.