Objektdaten
Objektbeschreibung
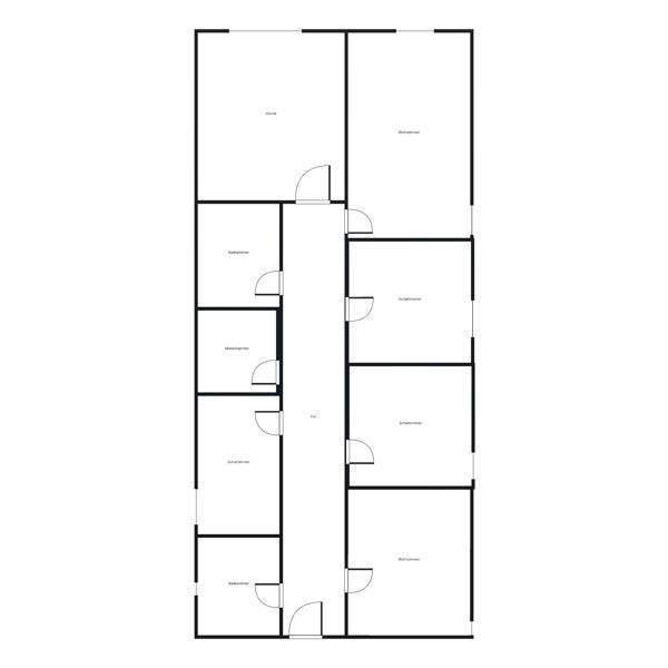
Diese exklusive, hochwertig sanierte Altbauwohnung bietet Ihnen auf großzügigen 165 Quadratmetern ein einzigartiges Wohnerlebnis im Herzen von München. Die Wohnung befindet sich im 1. Stockwerk eines stilvollen Altbaus und vereint klassischen Charme mit modernem Komfort. Mit einem Mietpreis von 5.900 € warm pro Monat bietet diese voll möblierte Wohnung eine perfekte Mischung aus Eleganz und Funktionalität. Ausstattung: Zimmer: 5 Zimmer, darunter 2 Schlafzimmer, ein Büro, ein geräumiges Wohnzimmer und ein separates Esszimmer Bäder: 2 moderne Bäder, ausgestattet mit hochwertigen Armaturen und stilvollen Fliesen Küche: Eine moderne Einbauküche mit Gasherd und Induktionsfeld, die keine Wünsche offen lässt. Ideal für Hobbyköche und Liebhaber guter Küche Balkon: Ein einladender Balkon, perfekt für entspannte Stunden an der frischen Luft Erker: Ein Highlight der Wohnung ist die gemütliche Sitzecke im Erker, die sich ideal für entspannte Lesestunden eignet Flur: Ein breiter Flur, der elegant gestaltet und mit ausreichend Stauraum ausgestattet ist Abstellraum: Praktischer Abstellraum, der zusätzlichen Stauraum bietet Design: Die gesamte Wohnung besticht durch ihr stilvolles Design, das mit hochwertigen Möbeln und geschmackvollen Details überzeugt Böden: Edles Fischgrätparkett, das die hohen Decken und die Altbau- Atmosphäre perfekt ergänzt Die Wohnung wird voll möbliert vermietet und ist sofort bezugsfertig. Sie ist ideal für anspruchsvolle Mieter, die Wert auf Stil, Komfort und eine zentrale Lage legen. Diese Wohnung ist ein echtes Schmuckstück und bietet Ihnen ein luxuriöses Wohnerlebnis im Herzen von München. Vereinbaren Sie noch heute einen Besichtigungstermin und überzeugen Sie sich selbst von diesem außergewöhnlichen Angebot. Balkon, Fahrstuhl, Vollbad, Einbauküche, Gäste-WC, Parkett, Fliesen Bemerkungen: - Komplett saniert - offener Wohn- Essbereich - Voll möbliert - Hohe Decken - Bestlage Ruhiges Haus Balkon 5.900€ WarmEnergieausweis nicht vorhanden
Makleranfragen nicht erwünscht. Nach § 7 UWG sind unaufgeforderte Kontaktaufnahmen durch Makler ohne ausdrückliche Einwilligung des Empfängers verboten!
ohne-makler (OM) ist weder Anbieter noch Vermittler der Immobilie. OM betreibt eine Plattform für Immobilieneigentümer, die unter anderem die gleichzeitige Veröffentlichung einzelner Inserate auf mehreren Immobilienportalen ermöglicht. Die Inhalte dieser Inserate werden ausschließlich von Dritten verantwortet. Für die Richtigkeit, Vollständigkeit oder Rechtmäßigkeit der Angaben übernimmt OM keine Haftung. Hinweise auf mögliche Rechtsverstöße können jederzeit gemeldet werden und werden nach Prüfung umgehend bearbeitet.
Ähnliche Angebote
So funktioniert es
- Alle neuen Anzeigen matchen wir kostenlos mit Deinen Suchparametern.
- Passende Angebote senden wir Dir in einer E-Mail pro Tag.
- Du kannst auch verschiedene Suchen anlegen und Dich jederzeit abmelden. Mehr dazu





