Objektdaten
Objektbeschreibung
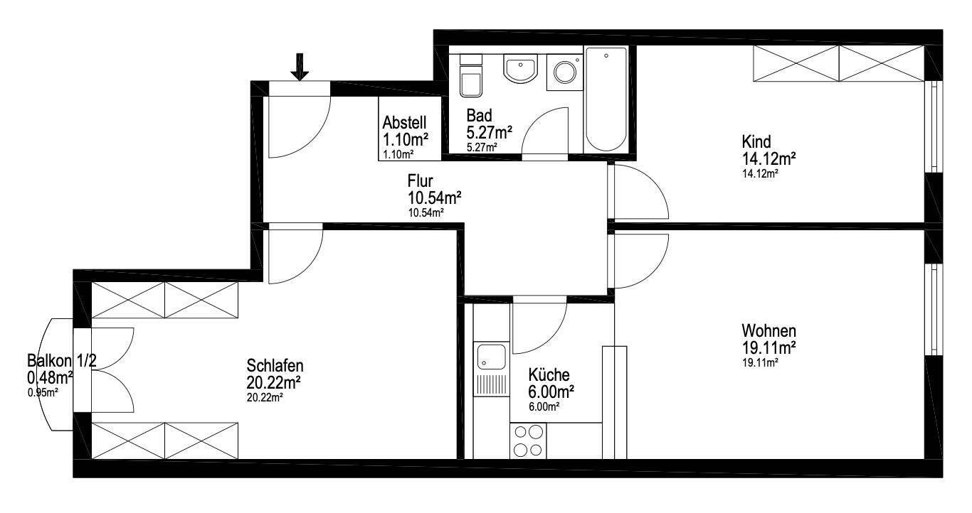
Willkommen in Ihrem neuen Zuhause - einem Rückzugsort im Herzen von Germering. Diese großzügig geschnittene 3-Zimmer-Wohnung vereint urbanen Komfort mit einer warmen, behaglichen Wohnatmosphäre und bietet damit den idealen Rahmen für anspruchsvolles Wohnen in bester Lage.Bereits beim Betreten spüren Sie die besondere Qualität der Räumlichkeiten: Die optimale Ausrichtung lässt viel Tageslicht einfließen und schafft ein offenes, freundliches Ambiente. Neuwertige Bodenbeläge unterstreichen den modernen Charakter der Wohnung und verleihen jedem Raum ein angenehmes Wohngefühl. Der kleine Balkon eröffnet einen Blick in den geschützten Innenhof und bietet Ihnen einen stillen Ort des Rückzugs mitten in der Stadt. Ob eine Tasse Kaffee am Morgen oder ein Glas Wein am Abend - hier genießen Sie Momente der Entspannung in privater Atmosphäre.Diese Wohnung kombiniert funktionale Großzügigkeit mit zeitloser Eleganz und erweist sich sowohl für Eigennutzer als auch für Kapitalanleger als überaus reizvolle Option.Ähnliche Angebote
So funktioniert es
- Alle neuen Anzeigen matchen wir kostenlos mit Deinen Suchparametern.
- Passende Angebote senden wir Dir in einer E-Mail pro Tag.
- Du kannst auch verschiedene Suchen anlegen und Dich jederzeit abmelden. Mehr dazu




