Objektdaten
Objektbeschreibung
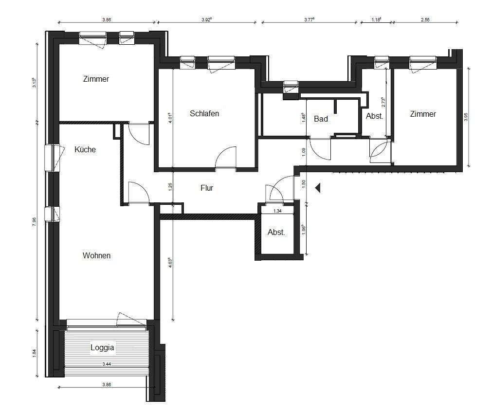
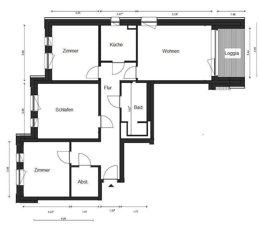
In unserem neuen Wohnquartier „Brecht-Park“ im nördlichen Zentrum von Evershagen gelegen, bieten wir ab Februar 2026 ein modernes Wohnen an. Die 3-Zimmer-Wohnung mit Vollbad und Fenster, Südterrasse sowie einer Fußbodenheizung bieten Ihnen ein gemütliches Zuhause mit modernem Komfort. Hier wohnen Sie zentral im Stadtteil Evershagen; Einkaufs- und Freizeiteinrichtungen sowie medizinische Versorgung sind ohne großen Aufwand zu erreichen. Die Hausreinigung übernimmt ein Reinigungsservice für Sie, bei freien Kapazitäten kann ein PKW-Stellplatz angemietet werden.Ähnliche Angebote
So funktioniert es
- Alle neuen Anzeigen matchen wir kostenlos mit Deinen Suchparametern.
- Passende Angebote senden wir Dir in einer E-Mail pro Tag.
- Du kannst auch verschiedene Suchen anlegen und Dich jederzeit abmelden. Mehr dazu





