Kaufpreis 79.000 €
Zimmer 3
26382 Wilhelmshaven
Größe 77 m2
Objektdaten
Veröffentlicht am: 4. Dezember 2025
Energieausweis: Liegt bei der Besichtigung vor
Danke! Bitte bestätige Deine E-Mail-Adresse – wir haben Dir soeben eine Mail geschickt.
Es gab ein Problem beim Absenden. Bitte versuche es erneut.
Bitte bestätige Deine E-Mail-Adresse, um Updates zu erhalten.
Objektbeschreibung
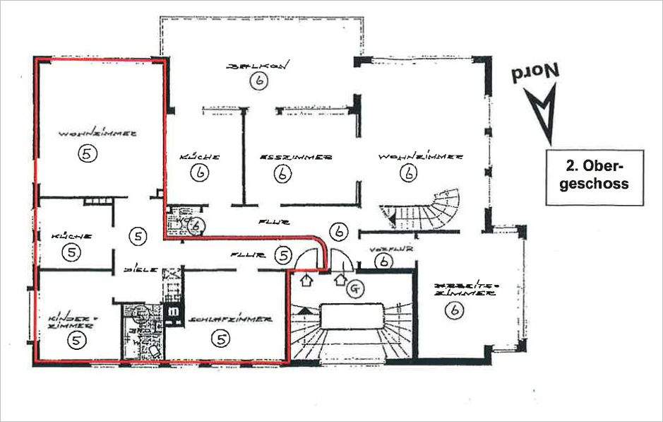
Bei der angebotenen Immobilie handelt es sich um eine Eigentumswohnung in einem gepflegten Wohn- und Geschäftshaus mit 2 Büros und 3 Wohnungen, verteilt auf Erdgeschoss und zwei Obergeschosse. Die Gemeinschaftsflächen umfassen eine Abstellmöglichkeit für Fahrräder sowie einen Wasch- und Trockenraum. Die Einheiten im Haus sind überwiegend eigengenutzt, teilweise langjährig vermietet. Entsprechend gepflegt erscheint das Objekt. Am Gebäude erfolgten in der Vergangenheit bedarfsweise umfassendere Teilsanierungen und Erneuerungen des Innenausbaus - schwerpunktmäßig um 1993. In diesem Zuge sind auch Balkone und Außenanlagen erneuert worden. Zuletzt wurde 2016 eine neue Gas-Zentralheizung installiert und jüngst der Treppenaufgang neu gefliest.Die hier angebotene Wohnung befindet sich im 2. Obergeschoss. Der Grundriss besticht durch gute Raumaufteilung mit viel Tageslicht. Die Wohnfläche beträgt ca. 77 m² - verteilt auf einen Flur mit kleinem praktischen Einbauschrank und anschließender Diele, Tageslicht-Bad mit Badewanne, Küche mit Fenster, einem großen Wohnzimmer und zwei weiteren Wohnräumen, die sich je nach Bedarf als Schlafzimmer und Kinder-, Gäste- oder Arbeitszimmer herrichten lassen. Der Wohnung zugeordnet ist ein Abstellraum im Dachgeschoss. Eine Waschmaschine mit eigenem Anschluss kann im Wasch- und Trockenraum des Hauses aufgestellt werden.Die Wohnung bietet sich für Eigennutzung wie auch Vermietung an.
So funktioniert es
- Alle neuen Anzeigen matchen wir kostenlos mit Deinen Suchparametern.
- Passende Angebote senden wir Dir in einer E-Mail pro Tag.
- Du kannst auch verschiedene Suchen anlegen und Dich jederzeit abmelden. Mehr dazu
Wir haben soeben eine E-Mail mit Deinem Suchauftrag an Dich geschickt. – Klicke in dieser Mail auf den Bestätigungslink und schon geht's los. Prüfe ggf. auch Deinen Spamordner.
Es gab ein Problem beim Absenden Deiner E-Mail-Adresse. Bitte versuche es erneut.
WARNUNG: Bitte bestätige Deine E-Mail-Adresse, um regelmäßige Updates zu erhalten.