Ihr maßgeschneidertes Einfamilienhaus in Titisee-Neustadt – Wohnen mit Komfort und Stil!

Kaufpreis 552.500 €
Zimmer 4
79822 Titisee-Neustadt
Größe 151 m2

Objektdaten

Veröffentlicht am: 6. Dezember 2025
Energieausweis: Liegt bei der Besichtigung vor
Neu

Über ähnliche Angebote direkt informiert werden

  • Objektbeschreibung

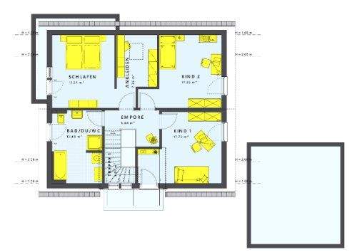
    Erfüllen Sie sich den Traum vom eigenen Zuhause mit diesem projektierten Einfamilienhaus in malerischer Lage von Titisee-Neustadt. Mit 4 Zimmern und einer großzügigen Wohnfläche von 151 m² auf einem 565 m² großen Grundstück bietet dieses Haus ausreichend Platz für die ganze Familie. Das durchdachte Konzept umfasst zwei Etagen, die sich perfekt nach Ihren Wünschen gestalten lassen. Die intelligenten Raumanordnungen und die Möglichkeit zur individuellen Anpassung garantieren Ihnen ein Wohnerlebnis, das auf Ihre Bedürfnisse abgestimmt ist. Der helle und einladende Wohnbereich bildet das Herzstück des Hauses und lädt zum Verweilen ein. Die Ausstattung umfasst drei Schlafzimmer, ein Badezimmer mit Dusche, Wanne und Fenster sowie ein zusätzliches Gäste-WC - ideal für Familien oder Gäste.Die Abbildungen zeigen zum Teil Sonderausstattungen. Für die Richtigkeit und Vollständigkeit kann keine Gewähr bzw. Haftung übernommen werden.

    Ähnliche Angebote

    So funktioniert es

    • Alle neuen Anzeigen matchen wir kostenlos mit Deinen Suchparametern.
    • Passende Angebote senden wir Dir in einer E-Mail pro Tag.
    • Du kannst auch verschiedene Suchen anlegen und Dich jederzeit abmelden. Mehr dazu
    Nach oben scrollen