Objektdaten
Objektbeschreibung
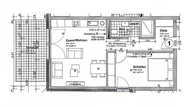
Diese charmante Etagenwohnung in Ichenhausen bietet alles, was das Herz begehrt. Mit einer Wohnfläche von 50 Quadratmetern bietet sie genügend Platz für ein gemütliches Zuhause. Die Wohnung besteht aus zwei Zimmern, einem Badezimmer mit Badewanne und hat zusätzlich einen Abstellraum sowie einen Keller, der als Stauraum oder für andere Zwecke genutzt werden kann. Ein besonderer Komfort bietet der Personenaufzug, der das Leben in dieser Etagenwohnung noch bequemer macht.Die Wohnung kann ab dem 1. Januar 2026 bezogen werden, was sie zu einer attraktiven Option für alle macht, die bald ein neues Zuhause suchen. Vereinbaren Sie gerne einen Besichtigungstermin mit uns, um sich selbst von dieser Wohnung zu überzeugen.Wir bitten um Verständnis, dass wir ausschließlich schriftliche Anfragen berücksichtigen.Wir freuen uns auf Ihre Kontaktaufnahme!So funktioniert es
- Alle neuen Anzeigen matchen wir kostenlos mit Deinen Suchparametern.
- Passende Angebote senden wir Dir in einer E-Mail pro Tag.
- Du kannst auch verschiedene Suchen anlegen und Dich jederzeit abmelden. Mehr dazu





