Objektdaten
Objektbeschreibung
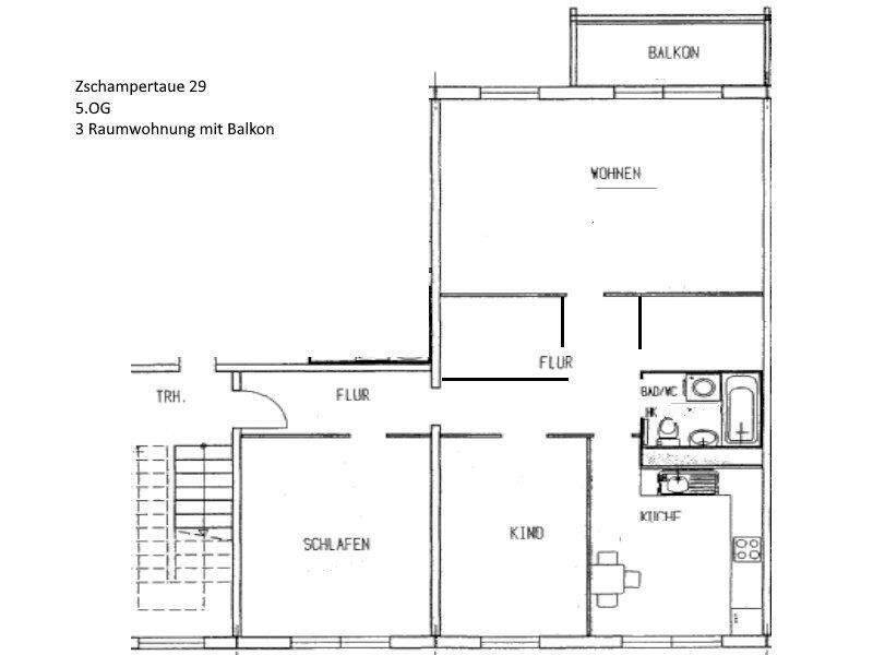
Die hier angebotene Wohnung ist Teil des Neubauensembles "Schumann's Gärten". Die "Schumann's Gärten" verbinden Zentralität mit moderner Architektur und hohem Wohnkomfort. Ob Singles, Paare, Familien, Best-Ager oder Studenten: Das Gebäudeensemble bestehend aus sieben Häusern und insgesamt 160 Wohnungen mit 1 bis 5 Zimmern zwischen 31 und 150 m², hat für jedermann etwas zu bieten. Bei der Ausführung der Wohnungen wurde auf durchdachte Grundrisse und hohe Qualität geachtet. Jede Wohnung verfügt über eine eigene Terrasse, Loggia oder einen Balkon. Treppen laufen muss hier nur wer das möchte. Alle anderen können bequem über den Aufzug von der Wohnetage bis ins Untergeschoss fahren. Dort ist auch unter anderem für jede Wohnung ein Kellerraum vorzufinden.Die 3-Zimmer-Wohnung verfügt über einen großzügigen Wohn- und Essbereich mit offener Küche (inkl. EBK), zwei Schlafzimmer, zwei Bädern (eines davon mit Waschmaschinenanschluss), einen Flur sowie eine Terrasse.Ähnliche Angebote
So funktioniert es
- Alle neuen Anzeigen matchen wir kostenlos mit Deinen Suchparametern.
- Passende Angebote senden wir Dir in einer E-Mail pro Tag.
- Du kannst auch verschiedene Suchen anlegen und Dich jederzeit abmelden. Mehr dazu





