Kaufpreis 572.100 €
Zimmer 3
56076 Koblenz
Größe 116 m2
Objektdaten
Veröffentlicht am: 10. Dezember 2025
Baujahr: 2025
Energieausweis: Liegt bei der Besichtigung vor
Danke! Bitte bestätige Deine E-Mail-Adresse – wir haben Dir soeben eine Mail geschickt.
Es gab ein Problem beim Absenden. Bitte versuche es erneut.
Bitte bestätige Deine E-Mail-Adresse, um Updates zu erhalten.
Objektbeschreibung
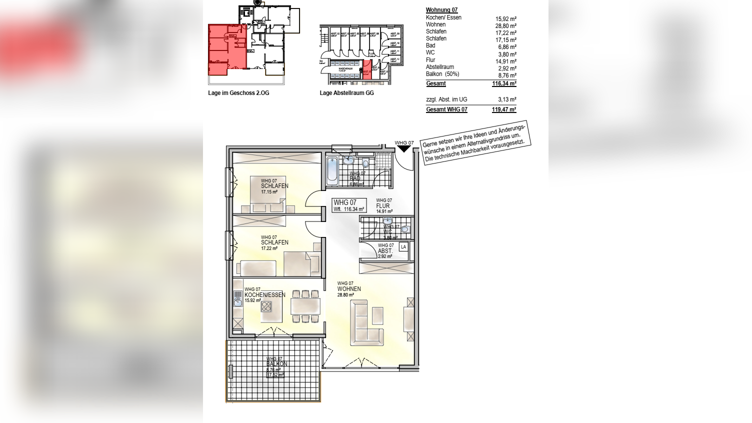
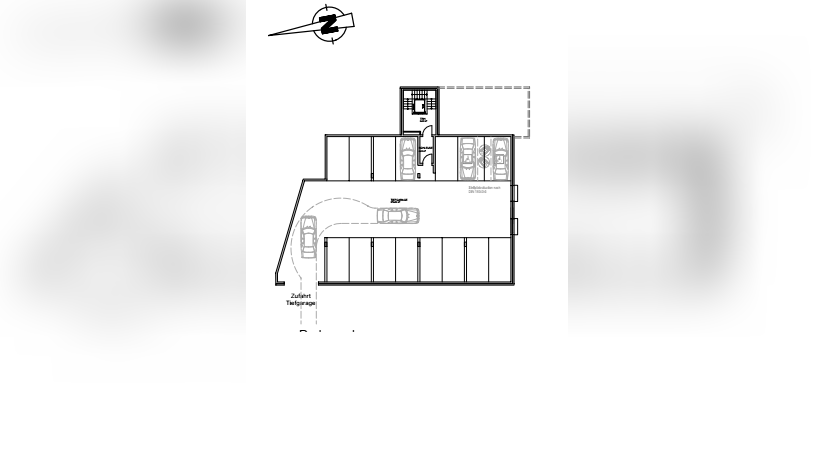
Moderne helle altersgerechte Wohnung mit moderner Technik im KFW 40 Energiesparhaus im attraktiven Wohngebiet im Grünen "Horchheiner Höhe" mit guter Verkehrsanbindung nach Koblenz. Hohe Steuervorteile durch Neubauabschreibungen für Vermieter möglich !Schöne helle sonnige Wohnung in gefragter ruhiger Lage am Ende einer Sackgasse - angrenzend an schöne Waldflächen. Energiesparendes Bauen mit KFW 40 Förderung und hohen Steuervorteilen für Vermieter. Altengerechtes schönes Wohnen mit moderner kostengünstiger Heiztechnik in gefragter Lage im Koblenz-Horchheimer Höhe-. In dieser exponierten Lage entstehen moderne attraktive Eigentumswohnungen von ca. 75 bis ca. 130 m² mit moderner Technik in altersgerechter Ausführung mit Lift, Tiefgarage sowie Außenstellplätzen. Elektrische Rollläden, die gut befahrbaren Tiefgaragenstellplätze bzw. die Außenstellplätze, schöne Fliesen und Sanitärausstattungen, hochwertige Wohnungseingangstüren, moderne 3-fach verglaste Fenster, eine gute Elektroausstattung, eine kontrollierter Wohnraumbelüftung mit Wärmerückgewinnung sowie attraktive Parkettböden werden ausgeführt. Sie können der Wohnung noch Ihre persönliche Note durch die individuelle Ausstattung geben. Bei der Konzeption des Objektes wurde besonders auf Energiesparendes Bauen geachtet, was durch den aufwendigen KFW 40 Standard dokumentiert wird (Energieklasse A +). Die Kombination von moderner Technik sowie hochwertiger Isolierung führt zu sehr günstigen Heizkosten bzw. Nebenkosten. Alle Wohnungen verfügen über schöne Balkone oder großzügige Terrassen mit guter Besonnung . Jeder Wohnung ist ein Abstellraum im Untergeschoss zugeordnet. Geniesen Sie den Wohnkomfort eines modernen hellen überwiegend barrierefreien Gebäudes mit neuester Technik.Das Angebot bezieht sich auf die Wohnung 7 im 2. Obergeschoß - hangseitig 3. Obergeschoß. Sie gelangen über eine geräumige Diele mit Garderobe in die Wohnung. Von der Diele gelangen Sie in das geräumige Bad mit Fenster von ca. 8 m² ausgestattet mit Dusche und Wanne, das gut aufgeteilte Elternschlafzimmer von ca. 17 m², das helle geräumige Kinderzimmer/Büro von ca. 15 m², das Gäste-WC sowie in den Abstellraum. Von der zentralen Diele gelangen Sie desweiteren in den hellen großzügigen Wohn/Eßbereich mit offener Küche von insgesamt 48 m² und Ausgang auf den großen sonnigen Balkon von ca. 18 m². Von hier haben Sie eine herrliche Sicht ins Tal und über die Stadt Koblenz. Der Kochbereich kann auf Wunsch abgetrennt werden. Die Wohnung hat eine Wohnfläche von ca. 117 m². Der Wohnung ist ein Kellerraum zugeordnet.Es besteht die Möglichkeit Außenstellplätze für 15.000 EUR sowie Tiefgaragenstellplätze für 27.000 EUR zu erwerben. Die Wohnanlage erfüllt die technischen Voraussetzungen um die KFW Darlehen nach den Programmen 297, 298 und dem Programm 300 (Familienförderung) zu ermöglichen. De Bezugsfertigkeit ist für Frühjahr 2026 vorgesehen.Steuerlicher Hinweis für Investoren : Die Wohnungen können bei einem Erwerb bis zum Jahr der Fertigstellung und einer Vermietung entsprechend den im Wachstumschanchengesetz aktuell beschlossenen Änderungen der degressiven Abschreibung nunmehr mit jährlich 5 %- bezogen auf den jeweiligen Buchwert/Restwert - abgeschrieben werden. Hierdurch können hohe Steuervorteile erzielt werden. Wir übernehmen keine steuerliche Beratung und keine Haftung für steuerliche Ziele. Hierzu informiert Sie Ihr Steuerberater umfassend..
So funktioniert es
- Alle neuen Anzeigen matchen wir kostenlos mit Deinen Suchparametern.
- Passende Angebote senden wir Dir in einer E-Mail pro Tag.
- Du kannst auch verschiedene Suchen anlegen und Dich jederzeit abmelden. Mehr dazu
Wir haben soeben eine E-Mail mit Deinem Suchauftrag an Dich geschickt. – Klicke in dieser Mail auf den Bestätigungslink und schon geht's los. Prüfe ggf. auch Deinen Spamordner.
Es gab ein Problem beim Absenden Deiner E-Mail-Adresse. Bitte versuche es erneut.
WARNUNG: Bitte bestätige Deine E-Mail-Adresse, um regelmäßige Updates zu erhalten.