Objektdaten
Objektbeschreibung
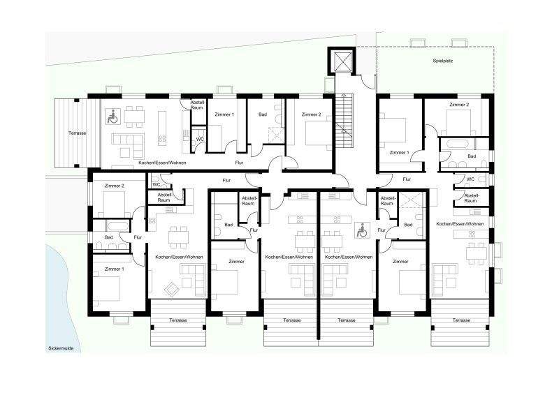
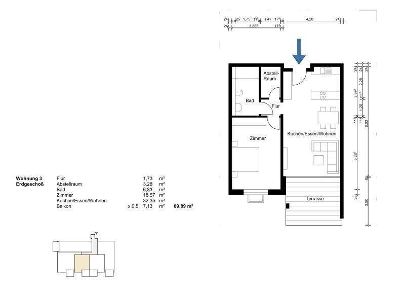
Das Projekt mit insgesamt 15 Eigentumswohnungen wird nach den neuesten Vorgaben des GEG erstellt und bietet somit einen Top Energiestandart - Gebäudeeffizienzklasse A+.Alle Wohnungen sind mit Fußbodenheizung ausgestattet, diese wird über eine Luft-Wärmepumpe beheizt. Eine Photovoltaikanlage produziert den eigenen Strom für diese Heiztechnik so dass nur noch wenig Strom zugekauft werden werden muss. Durch dieses Konzept sind niedrige Energiekosten garantiert und Sie sind unabhängig für die Zukunft.Alle Wohnungen werden schwellenfrei durch einen Personenaufzug erreicht, der Aufzug erschließt ebenfalls das Untergeschoss und das 3. Obergeschoss mit der gemeinschaftlichen Dachterrasse.Auf dieser Dachterrasse finden alle Bewohner einen schönen Platz und können den Blick auf den Bodensee und die Alpen genießen.Bei allen Wohnungen im Erdgeschoss wurden Sondernutzungsrechte an Gartenflächen begründet.Die Wohnungen im 1. und 2. Obergeschoss verfügen über eine großzügen überdachten Balkon mit ca. 15 m².Im Untergeschoss ist für jede Wohnung ein Kellerraum vorhanden.Ähnliche Angebote
So funktioniert es
- Alle neuen Anzeigen matchen wir kostenlos mit Deinen Suchparametern.
- Passende Angebote senden wir Dir in einer E-Mail pro Tag.
- Du kannst auch verschiedene Suchen anlegen und Dich jederzeit abmelden. Mehr dazu




