Kaufpreis 3.545.000 €
Zimmer 5
Größe 300 m²
83700 Rottach-Egern
Objektdaten
Veröffentlicht am: 19. Februar 2026
Energieausweis: Liegt bei der Besichtigung vor
Danke! Bitte bestätige Deine E-Mail-Adresse – wir haben Dir soeben eine Mail geschickt.
Es gab ein Problem beim Absenden. Bitte versuche es erneut.
Bitte bestätige Deine E-Mail-Adresse, um Updates zu erhalten.
Objektbeschreibung
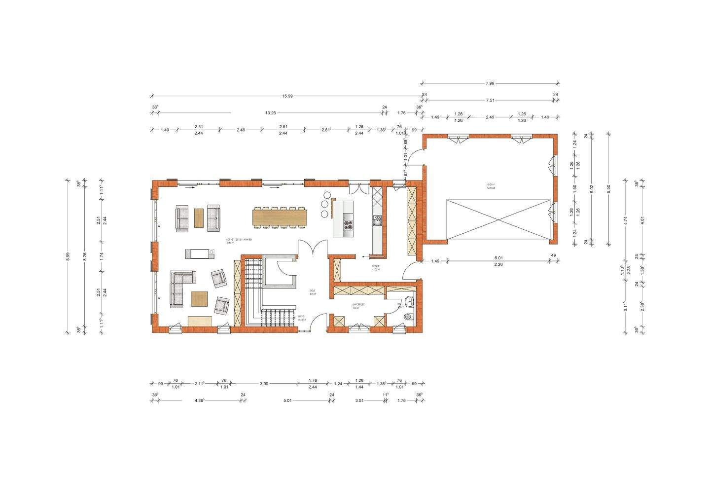
Wir bieten Ihnen hier ein freistehendes Neubau - Landhaus/Chalet in sehr guter Lage von Rottach-Egern an.Auf dem 790 m² großen Grundstück können Sie Ihren Wohntraum von einem freistehenden Landhaus / Chalet mit z.B. 3-4 Schlafzimmern, 4 Bädern, Lift, Wellnessbereich im Untergeschoss sowie modernste Haustechnik und Bauausführung umsetzen.Die aktuelle Ausführungsplanung sieht eine Wohnfläche von ca. 280 m² Wohnfläche vor sowie 2 oberirdische Garagen.Im Sommer 2027 könnten Sie ihre neue Immobilie dann bereits beziehen. Gerne beraten wir Sie persönlich weiterführend zu diesem spannenden Neubau.Alle Einkaufsmöglichkeiten sind sehr gut und bequem zu Fuß zu erreichen, auch der See und die Seepromenade sind nur einen kurzen Spaziergang entfernt!Durch die Ausrichtung nach Süd-Westen bietet das Grundstück Ihnen eine optimale Besonnung sowie einen herrlichen Blick auf die umliegenden Berge wie den "Wallberg", "Setzberg" und den "Ringberg" mit dem Blick auf das "Ringbergschloss".Das Objekt liegt in einem reinen Wohngebiet, nach Norden grenzt ein idyllischer Park mit altem Baumbestand an, der von einer möglichen Bebauung ausgeschlossen ist und insofern dem Grundstück einen besonderen und schönen Mehrwert bietet. Lassen Sie sich in dieser tollen Lage nieder und verwirklichen Sie sich hier Ihren Traum vom Leben am Tegernsee und in Rottach-Egern!Ausstattung (in Auszügen):- Altholzfassaden- Luftwärmepumpe und Fußbodenheizung- kontrollierte Wohnraumlüftung- hochwertige Bodenbeläge wie z.B. Landhausdielen aus Eiche, Naturstein oder großformatige Feinsteinfliesen- Lift- Wellnessbereich im UG- Sonderwunsch: Außenpool
So funktioniert es
- Alle neuen Anzeigen matchen wir kostenlos mit Deinen Suchparametern.
- Passende Angebote senden wir Dir in einer E-Mail pro Tag.
- Du kannst auch verschiedene Suchen anlegen und Dich jederzeit abmelden. Mehr dazu
Wir haben soeben eine E-Mail mit Deinem Suchauftrag an Dich geschickt. – Klicke in dieser Mail auf den Bestätigungslink und schon geht's los. Prüfe ggf. auch Deinen Spamordner.
Es gab ein Problem beim Absenden Deiner E-Mail-Adresse. Bitte versuche es erneut.
WARNUNG: Bitte bestätige Deine E-Mail-Adresse, um regelmäßige Updates zu erhalten.