Kaufpreis 450.000 €
Zimmer 12
Größe 370 m²
24214 Gettorf
Objektdaten
Veröffentlicht am: 21. Februar 2026
Energieausweis: Liegt bei der Besichtigung vor
Danke! Bitte bestätige Deine E-Mail-Adresse – wir haben Dir soeben eine Mail geschickt.
Es gab ein Problem beim Absenden. Bitte versuche es erneut.
Bitte bestätige Deine E-Mail-Adresse, um Updates zu erhalten.
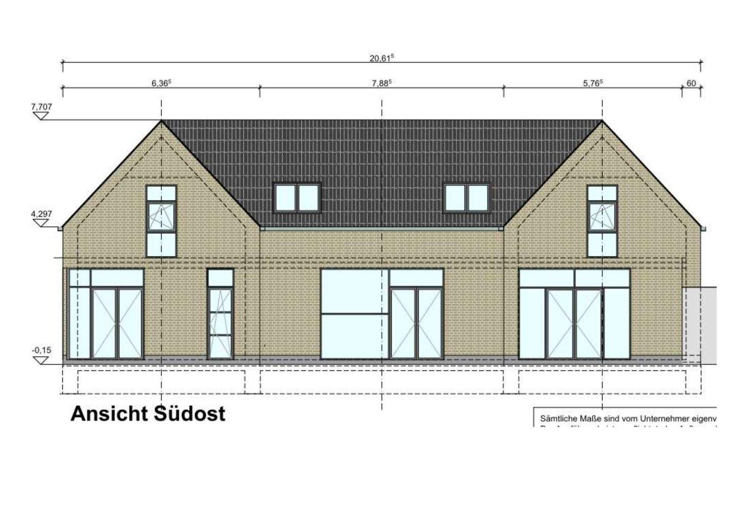
Objektbeschreibung
Für Kapitalanleger / InvestorenDieses baurechtlich genehmigte Bauvorhaben bietet Investoren eine hervorragende Gelegenheit, in einen gefragten Wohnstandort im Kreis Rendsburg-Eckernförde zu investieren. Der genehmigte Baubeginn ab dem 01.05.2027 ermöglicht eine verlässliche Projekt- und Finanzierungsplanung ohne Genehmigungsrisiko.Die Kombination aus:zentraler, fußläufiger Lagemoderner, energieeffizienter Bauweiseattraktivem Grundstücksanteil je Einheithoher infrastruktureller Dichtespricht eine breite Mieterzielgruppe an - von Familien bis zu Berufspendlern in Richtung Kiel und Eckernförde.Gettorf übernimmt als Versorgungszentrum der Region Dänischer Wohld eine wichtige Funktion für das Umland. Die stabile Nachfrage nach modernem Wohnraum in gut angebundener Lage bietet nachhaltiges Wertsteigerungspotenzial.Für Eigennutzer / FamilienModern wohnen in ruhiger Bestlage von GettorfHier entsteht ein Zuhause mit Zukunft: sonnige Grundstücksanteile, moderne Architektur und ein TOP-aktueller Energiestandard sorgen für Wohnkomfort und langfristige Sicherheit.Die Lage ist ideal für Familien:Kindergarten und Schulen nur wenige Minuten entferntEinkaufsmöglichkeiten und Ärzte fußläufig erreichbarBahnhof mit schneller Verbindung nach Kiel oder Eckernförde in ca. 10 Minuten zu FußGettorf bietet mit rund 7.500 Einwohnern eine perfekte Mischung aus Ruhe, Gemeinschaft und guter Infrastruktur. Freizeitangebote, Vereine und der beliebte Tierpark Gettorf machen den Ort besonders lebenswert.Einziehen, wohlfühlen, ankommen - und das in einer gewachsenen Gemeinde mit hoher Lebensqualität.Für Bauträger / ProjektentwicklerBaureifes Wohnprojekt in zentraler Lage von GettorfZum Verkauf steht ein baurechtlich genehmigtes Bauvorhaben mit möglichem Baubeginn ab 01.05.2027 - ideale Voraussetzungen für eine zeitnahe Projektumsetzung ohne Planungsunsicherheiten.Standortvorteile:gewachsene Infrastrukturstarke regionale Einbindung zwischen Kiel und Eckernfördegute Erreichbarkeit über die Bundesstraße 76Bahnhof an der Strecke Kiel-FlensburgDie Nachfrage nach energieeffizienten Neubauten in zentraler Lage ist in Gettorf stabil und marktgerecht positionierbar. Die Kombination aus ruhigem Wohnumfeld und fußläufiger Infrastruktur schafft eine breite Käuferzielgruppe.
So funktioniert es
- Alle neuen Anzeigen matchen wir kostenlos mit Deinen Suchparametern.
- Passende Angebote senden wir Dir in einer E-Mail pro Tag.
- Du kannst auch verschiedene Suchen anlegen und Dich jederzeit abmelden. Mehr dazu
Wir haben soeben eine E-Mail mit Deinem Suchauftrag an Dich geschickt. – Klicke in dieser Mail auf den Bestätigungslink und schon geht's los. Prüfe ggf. auch Deinen Spamordner.
Es gab ein Problem beim Absenden Deiner E-Mail-Adresse. Bitte versuche es erneut.
WARNUNG: Bitte bestätige Deine E-Mail-Adresse, um regelmäßige Updates zu erhalten.