Objektdaten
Objektbeschreibung
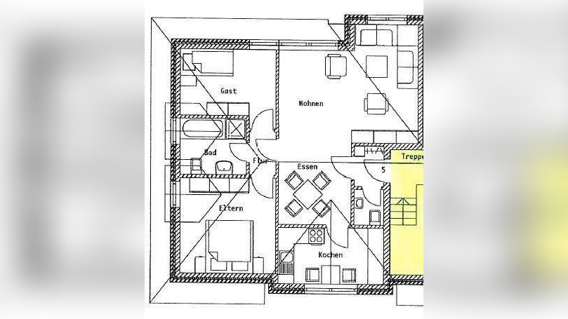
Wohn-/Esszimmer, 2 Schlafzimmer, Küche, Bad/WC mit Dusche und Badewanne, Gäste-WC, Windfang, Kellerraum Die Wohnfläche beträgt ca. 62 m²Die Kosten für Strom, Wasser und Abwasser sind vom Mieter direkt an das Versorgungsunternehmen zu zahlen.So funktioniert es
- Alle neuen Anzeigen matchen wir kostenlos mit Deinen Suchparametern.
- Passende Angebote senden wir Dir in einer E-Mail pro Tag.
- Du kannst auch verschiedene Suchen anlegen und Dich jederzeit abmelden. Mehr dazu





