Kaufpreis 560.000 €
31812 Bad Pyrmont
Objektdaten
Veröffentlicht am: 25. März 2026
Energieausweis: Liegt bei der Besichtigung vor
Danke! Bitte bestätige Deine E-Mail-Adresse – wir haben Dir soeben eine Mail geschickt.
Es gab ein Problem beim Absenden. Bitte versuche es erneut.
Bitte bestätige Deine E-Mail-Adresse, um Updates zu erhalten.
Objektbeschreibung
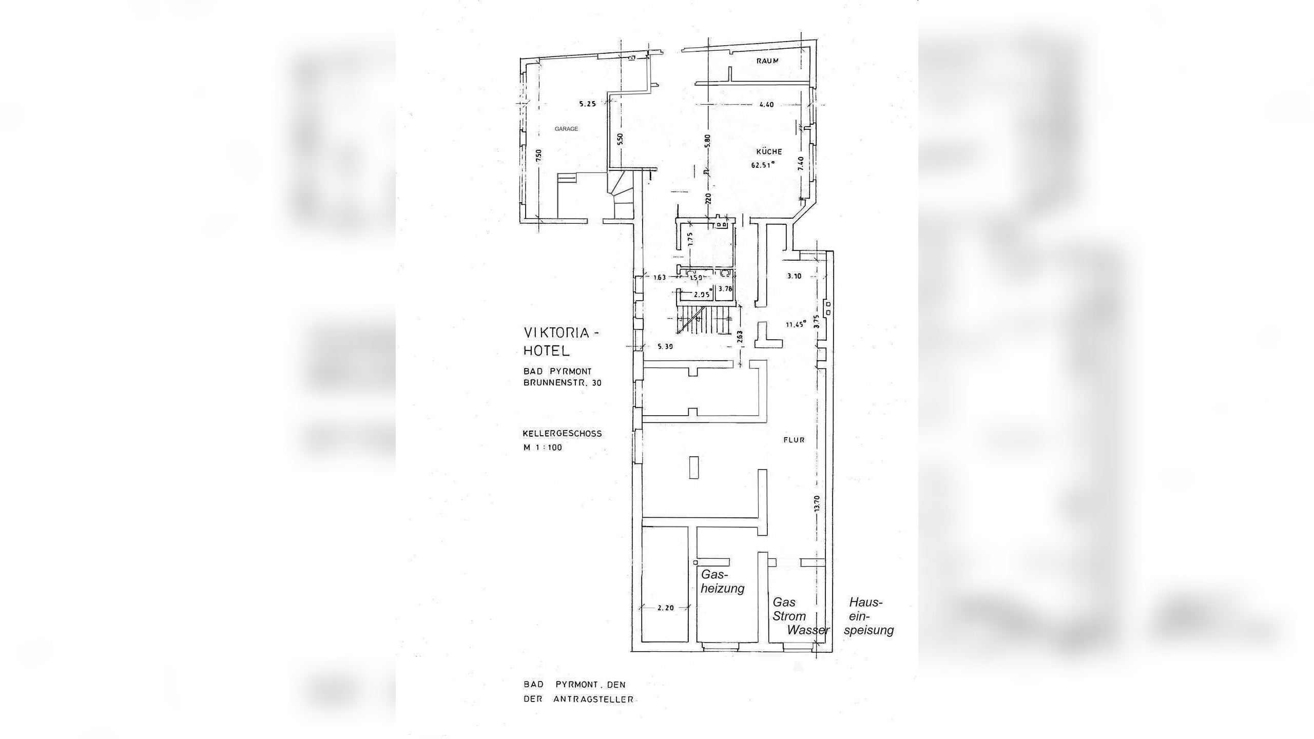
Zum Verkauf steht das charmante Viktoria Hotel, das im Jahr 1911 erbaut wurde und sich in Bad Pyrmont in der Brunnenstraße befindet. Diese erstklassige Lage im Herzen des Zentrums macht das Hotel äußerst attraktiv. Ein besonderes Highlight des Gebäudes ist seine ansprechende Jugendstilfassade. Das Objekt steht unter Denkmalschutz steht und einen einzigartigen historischen Wert besitzt.Das ehemalige Restaurant des Hotels wurde bereits vor vielen Jahren zu einem großzügigen Ladengeschäft umgewandelt, das eine Fläche von ca. 100 qm bietet. Hier besteht die Möglichkeit, ein erfolgreiches Geschäft zu etablieren und von der prominenten Lage zu profitieren.Der Anbau des Hotels wurde ursprünglich im Jahr 1935 als Saal erbaut und später zu einer Wohnung umgewandelt. Diese vielseitige Nutzungsmöglichkeit bietet Raum für kreative Gestaltungsideen.Bis vor Kurzem war das Hotel verpachtet, wobei im Jahr 1989 eine grundlegende Sanierung durchgeführt wurde. Alle Zimmer sind mit Annehmlichkeiten wie Dusche/WC, Gaszentralheizung (Heizkessel-Bj 2011) und dezentraler Warmwasserversorgung durch elektrische Durchlauferhitzer ausgestattet.Das Hotel umfasst zwei Etagen mit insgesamt 18 Betten, darunter befinden sich zwei Ferienwohnungen zur Brunnenstraße hin und zwei kleine Ferienappartements zur Rückseite des Gebäudes. Zusätzlich gibt es im Anbau einen gemütlichen Frühstücksraum für die Gäste.Das Dachgeschoss des Hotels wurde nicht mitverpachtet und privat genutzt. Hier bietet sich die Möglichkeit, weitere individuelle Räumlichkeiten zu schaffen oder das Hotelangebot zu erweitern.Das Hofgelände des Hotels ist von der Humboldtstraße aus zugänglich und bietet Platz für 6 bis 8 Autos.Das Grundstück umfasst insgesamt ca. 982 qm und bietet großes Potenzial für eine Neubebauung mit zwei bis drei Geschossen, nach Abriss des Anbaus. Dies eröffnet vielfältige Möglichkeiten zur Erweiterung oder Neugestaltung des Hotels.Das Viktoria Hotel bietet eine einmalige Chance für Investoren oder Unternehmer, die den Reiz eines historischen Gebäudes mit zeitgemäßem Komfort und einer zentralen Lage kombinieren möchten. Nutzen Sie diese Gelegenheit, um Ihren Traum von einer erfolgreichen Immobilie in Bad Pyrmont zu verwirklichen. Zögern Sie nicht und kontaktieren Sie uns für weitere Informationen und Besichtigungstermine.
So funktioniert es
- Alle neuen Anzeigen matchen wir kostenlos mit Deinen Suchparametern.
- Passende Angebote senden wir Dir in einer E-Mail pro Tag.
- Du kannst auch verschiedene Suchen anlegen und Dich jederzeit abmelden. Mehr dazu
Wir haben soeben eine E-Mail mit Deinem Suchauftrag an Dich geschickt. – Klicke in dieser Mail auf den Bestätigungslink und schon geht's los. Prüfe ggf. auch Deinen Spamordner.
Es gab ein Problem beim Absenden Deiner E-Mail-Adresse. Bitte versuche es erneut.
WARNUNG: Bitte bestätige Deine E-Mail-Adresse, um regelmäßige Updates zu erhalten.