Objektdaten
Objektbeschreibung
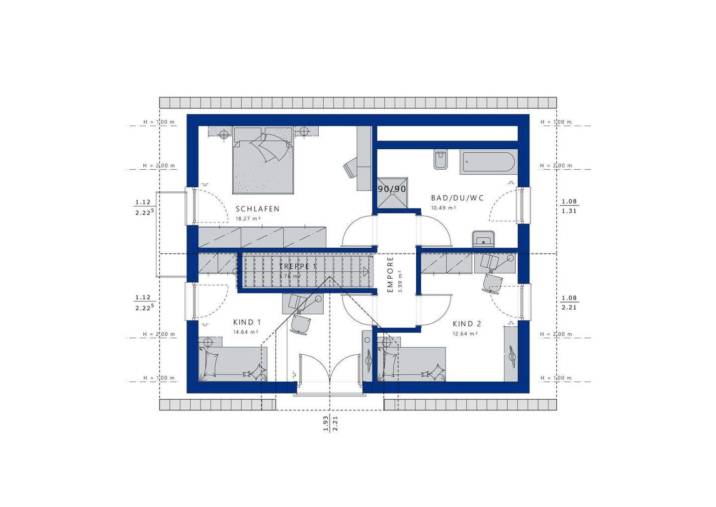
Chic, komfortabel und innovativ.Ob Design-Balkon, Glas-Querhaus oder Flachdach-Quergiebel: Die Architektur-Bauteile für die EVOLUTION Häuser verleihenjedem EVOLUTION 134 seinen ganz eigenen Stil. Der moderne und repräsentative Hauskörper fasziniert durch vielfältigeMöglichkeiten, sein Erscheinungsbild mit den unterschiedlichen Architektur-Bauteilen vollkommen zu variieren. Ein weiteresHighlight ist die Hausvariante mit Flachdach und Garagenanbau, die dem Haus noch einmal einen ganz eigenständigen Lookin der EVOLUTION Hausfamilie gibt. Innovativ: Diese Bezeichnung steht auch für den Grundriss. Die geradläufige Treppe undder moderne Wohn-Essbereich mit Küche sind nur einige der besonderen Merkmale dieses Hauses. Denn auch im Oberge-schoss hat das EVOLUTION 134 mit großen Räumen, zwei Kinderzimmern und Wellness-Bad richtig viel zu bieten.Sie suchen etwas Besonderes? Dann sind Sie bei EVOLUTION 134 genau richtig. Dieses Haus verbindet einen innovativenund repräsentativen Grundriss mit maximalem Nutzwert.Ähnliche Angebote
So funktioniert es
- Alle neuen Anzeigen matchen wir kostenlos mit Deinen Suchparametern.
- Passende Angebote senden wir Dir in einer E-Mail pro Tag.
- Du kannst auch verschiedene Suchen anlegen und Dich jederzeit abmelden. Mehr dazu




