Kaufpreis 1.149.000 €
Zimmer 5
Größe 207 m²
86420 Diedorf
Objektdaten
Veröffentlicht am: 3. April 2026
Energieausweis: Liegt bei der Besichtigung vor
Danke! Bitte bestätige Deine E-Mail-Adresse – wir haben Dir soeben eine Mail geschickt.
Es gab ein Problem beim Absenden. Bitte versuche es erneut.
Bitte bestätige Deine E-Mail-Adresse, um Updates zu erhalten.
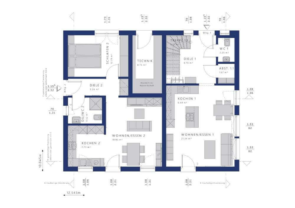
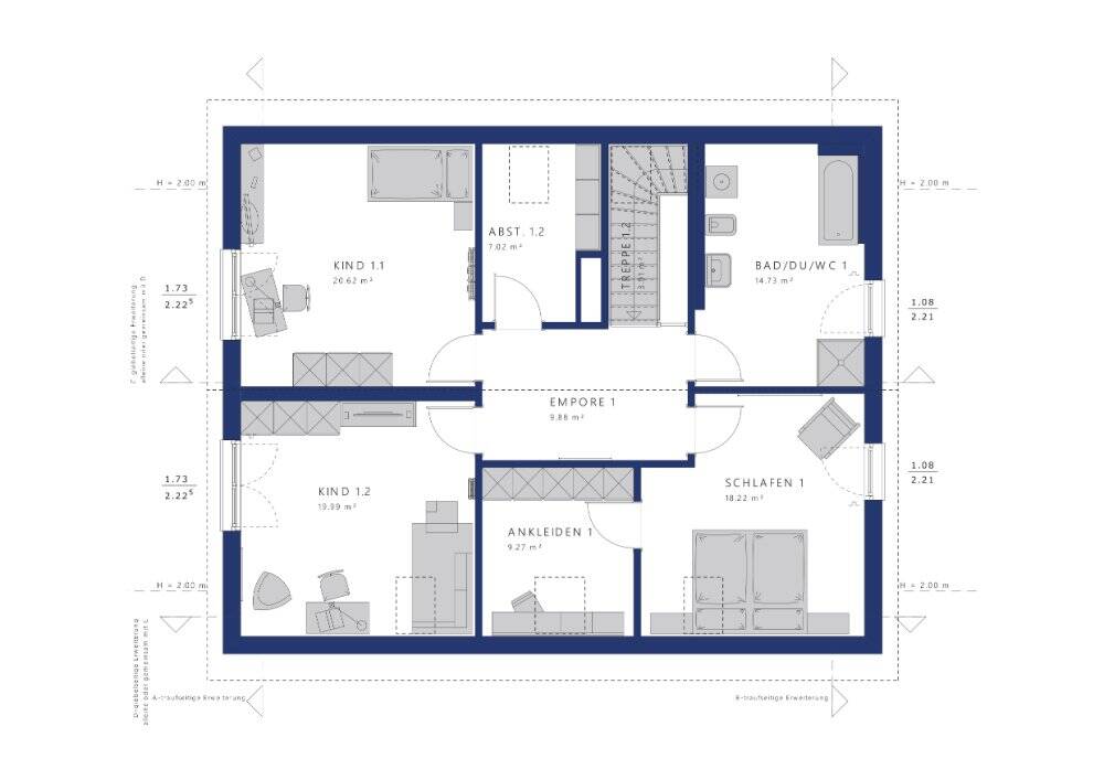
Objektbeschreibung
Ihr Traum vom Eigenheim in Diedorf - modernes Neubauprojekt mit Bien-Zenker:In ruhiger und familienfreundlicher Lage von Diedorf entsteht dieses hochwertige, schlüsselfertige Zweifamilienhaus in Zusammenarbeit mit der renommierten Baufirma Bien-Zenker.Auf ca. 207 m² Wohnfläche erwartet Sie ein durchdachtes Raumkonzept, das modernes Wohnen mit hoher Bauqualität verbindet. Die Ausführung erfolgt in massiver Holzständerbauweise, die für ein angenehmes Raumklima, Energieeffizienz und Nachhaltigkeit steht.Erdgeschoss:- Großzügiger Wohn- und Essbereich mit direktem Zugang zur Terrasse und in den Garten- Offene Küche (individuell planbar)- Dusch-WC - ideal für Gäste oder den Alltag- Praktische Garderobe im Eingangsbereich- Technikraum + Einliegerwohnung mit ca. 50 qm WohnflächeObergeschoss:- Zwei helle Kinderzimmer- Großzügiges Elternschlafzimmer mit Ankleide- Modernes BadezimmerOptional:Ein Kellerbau ist gegen Aufpreis möglich und bietet zusätzliche Nutzfläche.Das Grundstück bietet ausreichend Platz für einen schönen Garten sowie eine Terrasse, die zum Entspannen und Verweilen einlädt - ideal für Familien, Gartenliebhaber oder gemütliche Sommerabende.Highlights auf einen Blick:- Neubauprojekt mit Bien-Zenker- ca. 207 m² Wohnfläche- Massive Holzständerbauweise (energieeffizient & nachhaltig)- Flexible Grundrissgestaltung möglich- Grundstück verfügbar - sofortiger Baustart möglich- Familienfreundliche Lage in Diedorf
So funktioniert es
- Alle neuen Anzeigen matchen wir kostenlos mit Deinen Suchparametern.
- Passende Angebote senden wir Dir in einer E-Mail pro Tag.
- Du kannst auch verschiedene Suchen anlegen und Dich jederzeit abmelden. Mehr dazu
Wir haben soeben eine E-Mail mit Deinem Suchauftrag an Dich geschickt. – Klicke in dieser Mail auf den Bestätigungslink und schon geht's los. Prüfe ggf. auch Deinen Spamordner.
Es gab ein Problem beim Absenden Deiner E-Mail-Adresse. Bitte versuche es erneut.
WARNUNG: Bitte bestätige Deine E-Mail-Adresse, um regelmäßige Updates zu erhalten.