Kaufpreis 1.049.000 €
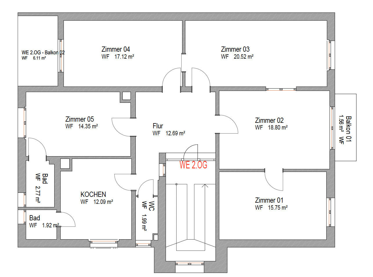
Zimmer 5
Größe 123 m²
79104 Freiburg im Breisgau
Objektdaten
Veröffentlicht am: 4. April 2026
Baujahr: 1900
Energieausweis: Liegt bei der Besichtigung vor
Danke! Bitte bestätige Deine E-Mail-Adresse – wir haben Dir soeben eine Mail geschickt.
Es gab ein Problem beim Absenden. Bitte versuche es erneut.
Bitte bestätige Deine E-Mail-Adresse, um Updates zu erhalten.
Objektbeschreibung
Stilvolle Altbauwohnung in begehrter Lage von Freiburg HerdernIn einer der begehrtesten Wohnlagen Freiburgs präsentiert sich diese außergewöhnliche Altbauwohnung im 2. Obergeschoss eines repräsentativen, historischen Wohnhauses im beliebten Stadtteil Herdern. Die Immobilie verbindet den zeitlosen Charme klassischer Altbauarchitektur mit dem Anspruch an modernes, hochwertiges Wohnen und erfüllt damit höchste Ansprüche an Lage, Qualität und Wohnkomfort.Die Wohnung beeindruckt durch ihre großzügige Raumwirkung und elegante Proportionen, wie sie nur ein klassischer Altbau bieten kann. Die Lage im zweiten Obergeschoss verleiht den Räumen eine angenehme Präsenz und ein ausgewogenes Verhältnis zwischen Privatsphäre und Blickbezug. Die Wohnung ist sehr hell. Die Balkone sind jeweils nach Süden und Norden ausgerichtet.Der Stadtteil Herdern zählt zu den renommiertesten und exklusivsten Wohnquartieren Freiburgs. Geprägt von prachtvollen Altbauten, einer gewachsenen Nachbarschaft und einer hervorragenden Infrastruktur bietet diese Lage ein außergewöhnliches Wohnumfeld. Die Nähe zur Innenstadt, zur Universität sowie zu weitläufigen Grünflächen und dem Schlossberg unterstreicht die besondere Qualität dieser Adresse und macht sie sowohl für Eigennutzer als auch für Kapitalanleger äußerst attraktiv.Diese renovierte Altbauwohnung stellt eine seltene Gelegenheit dar, Wohneigentum in einer der besten und wertstabilsten Lagen Freiburgs zu erwerben. Ob als stilvolles Zuhause oder als nachhaltige Investition - diese Immobilie überzeugt durch ihre Einzigartigkeit, ihre Lage und ihren erstklassigen Zustand.
So funktioniert es
- Alle neuen Anzeigen matchen wir kostenlos mit Deinen Suchparametern.
- Passende Angebote senden wir Dir in einer E-Mail pro Tag.
- Du kannst auch verschiedene Suchen anlegen und Dich jederzeit abmelden. Mehr dazu
Wir haben soeben eine E-Mail mit Deinem Suchauftrag an Dich geschickt. – Klicke in dieser Mail auf den Bestätigungslink und schon geht's los. Prüfe ggf. auch Deinen Spamordner.
Es gab ein Problem beim Absenden Deiner E-Mail-Adresse. Bitte versuche es erneut.
WARNUNG: Bitte bestätige Deine E-Mail-Adresse, um regelmäßige Updates zu erhalten.