Objektdaten
Objektbeschreibung
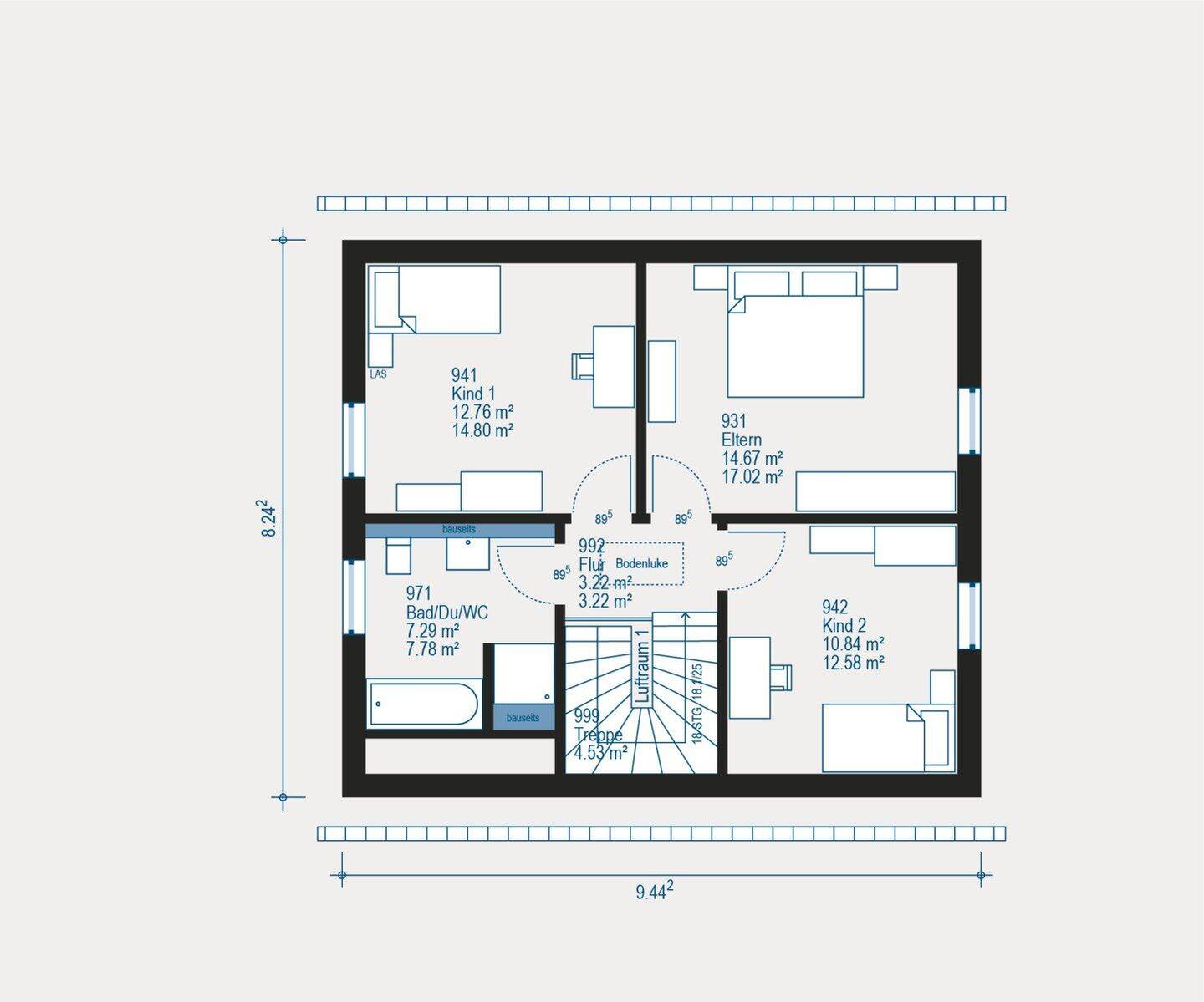
Dieses projektiertes Ausbauhaus in Hamm bietet Ihnen mit 4.0 Zimmern auf 119 m² Wohnfläche ein komfortables Zuhause, das genau auf Ihre Wünsche und Vorstellungen zugeschnitten wird. Das 330 m² große Grundstück schafft dabei ausreichend Freiraum für Ihre persönlichen Lebenspläne. Das Haus erstreckt sich über zwei Etagen und verfügt über drei Schlafzimmer, ein stilvolles Badezimmer sowie ein zusätzliches Gäste-WC. Mit der Möglichkeit zur individuellen Grundrissgestaltung können Sie Ihr neues Heim ganz nach Ihren Bedürfnissen gestalten und den Innenausbau selbst übernehmen - oder auf professionelle Unterstützung von allkauf zurückgreifen.Ähnliche Angebote
So funktioniert es
- Alle neuen Anzeigen matchen wir kostenlos mit Deinen Suchparametern.
- Passende Angebote senden wir Dir in einer E-Mail pro Tag.
- Du kannst auch verschiedene Suchen anlegen und Dich jederzeit abmelden. Mehr dazu




