Objektdaten
Objektbeschreibung
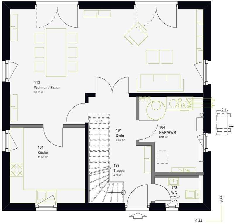
Einfamilienhaus LifeStyle 14.02 S mit klassischem SatteldachDas Einfamilienhaus LifeStyle 14.02 S kombiniert modernes Wohnen mit zeitloser Architektur auf einer Nettogrundfläche von ca. 143 m². Mit seinem klassischen Satteldach und einer klaren Fassadengestaltung entsteht ein harmonisches Gesamtbild, das sich ideal in unterschiedliche Wohngebiete einfügt. Großzügige Fensterfronten bringen viel Tageslicht in die Räume und schaffen eine freundliche, offene Atmosphäre - perfekt für ein Zuhause, das sich an die Bedürfnisse deiner Familie anpasst.So funktioniert es
- Alle neuen Anzeigen matchen wir kostenlos mit Deinen Suchparametern.
- Passende Angebote senden wir Dir in einer E-Mail pro Tag.
- Du kannst auch verschiedene Suchen anlegen und Dich jederzeit abmelden. Mehr dazu




