Objektdaten
Objektbeschreibung
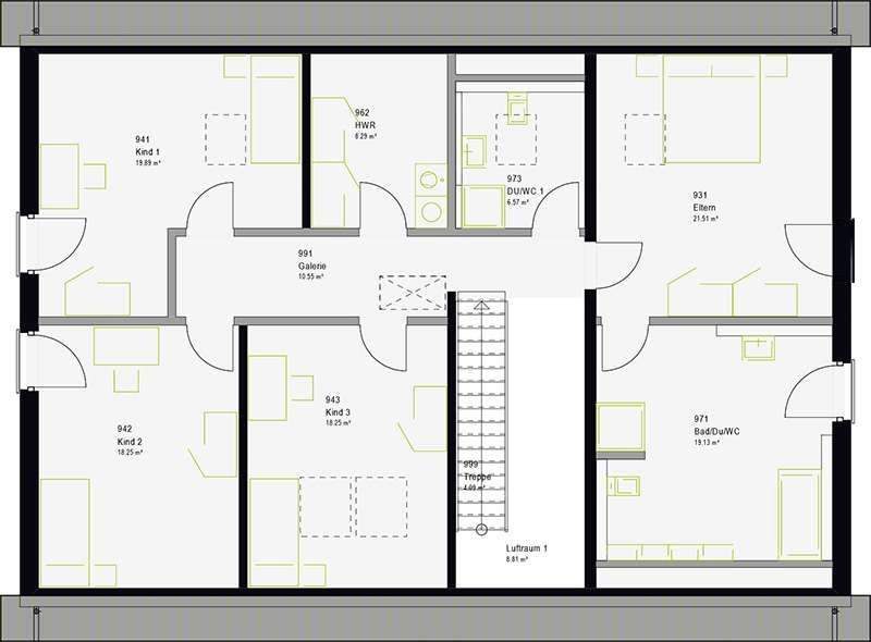
EIN HAUS MIT MEHREREN WOHN-OPTIONENDas FamilyStyle 26.01 S bietet auf einer Nettogrundfläche von 265 m² viel Raum für unterschiedlichste Wohnideen - vom Mehrgenerationenwohnen bis zur vermieteten Einliegerwohnung als Finanzierungshilfe. Möglich macht dies die Aufteilung des Hauses in eine komplette, separate Wohnung im Erdgeschoss - und das eineinhalbgeschossige Wohnen der Bauherrenfamilie, das das Erdgeschoss ausschließlich dem Lebensmittelpunkt im offen angelegten Wohn-, Ess- und Küchenbereich vorbehält. Im Obergeschoss gestatten 127 m² großzügiges Wohnen in drei Kinderzimmern samt eigenem Kinderbad sowie im Elternzimmer mit direkt angegliederter Wellness-Oase.Ähnliche Angebote
So funktioniert es
- Alle neuen Anzeigen matchen wir kostenlos mit Deinen Suchparametern.
- Passende Angebote senden wir Dir in einer E-Mail pro Tag.
- Du kannst auch verschiedene Suchen anlegen und Dich jederzeit abmelden. Mehr dazu




