Objektdaten
Objektbeschreibung
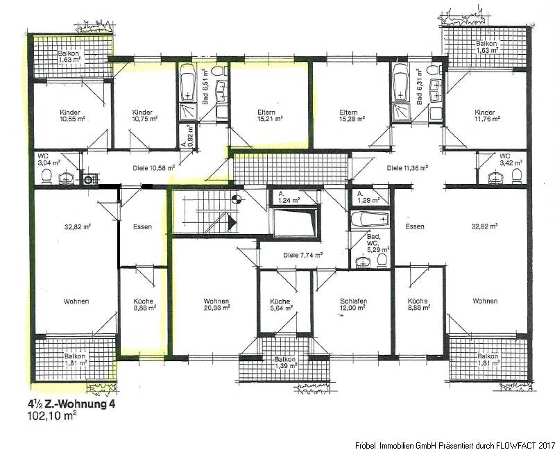
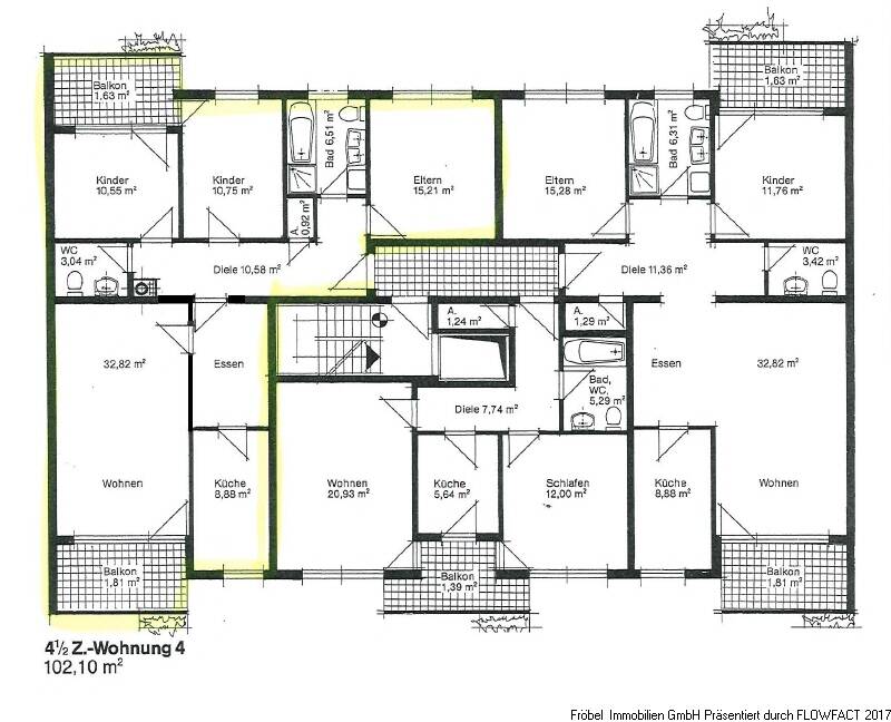
Die 4,5-Zimmer-Wohnung befindet sich im 1. Obergeschoss (Lift) eines Mehrfamilienhauses in Rheinfelden / Stadtgebiet.So funktioniert es
- Alle neuen Anzeigen matchen wir kostenlos mit Deinen Suchparametern.
- Passende Angebote senden wir Dir in einer E-Mail pro Tag.
- Du kannst auch verschiedene Suchen anlegen und Dich jederzeit abmelden. Mehr dazu




