Objektdaten
Objektbeschreibung
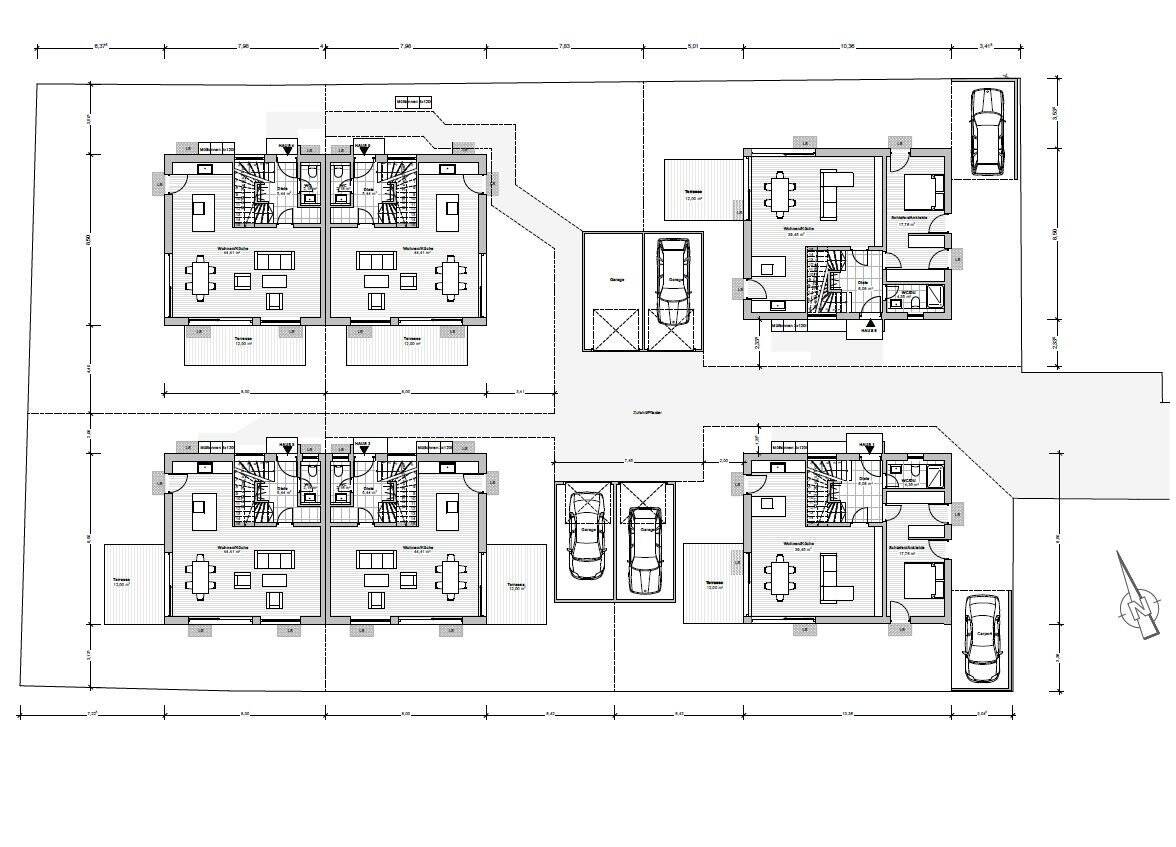
Neubau von vier Doppelhaushälften und zwei Einfamilienhäusern inkl. Garage od. Carport, in schöner, ruhiger Wohnlage im beliebten Münchner MärchenviertelAngaben oben für EFH- Nr. 6Grund: gesamt ca. 1734 qmAußenmaße: DHHs: 8 m x 8 m / KG + EG + OG EFHs: 10 m x 8 m / KG + EG + OG Baugenehmigung: liegt vorBaubeginn in Kürze. Fertigstellung Mitte 2027. Die Bauzeit 14 Monate bis zur Bezugsfertigkeit.Planung: Die Gestaltung der Grundrisse ist noch beinflussbar und kann nach Ihren Wünsche geändert und umgeplant werden. Der Architekt berät Sie dazu gerne bei einem persönlichen Besprechungstermin im Büro.Ähnliche Angebote
So funktioniert es
- Alle neuen Anzeigen matchen wir kostenlos mit Deinen Suchparametern.
- Passende Angebote senden wir Dir in einer E-Mail pro Tag.
- Du kannst auch verschiedene Suchen anlegen und Dich jederzeit abmelden. Mehr dazu




