Objektdaten
Objektbeschreibung
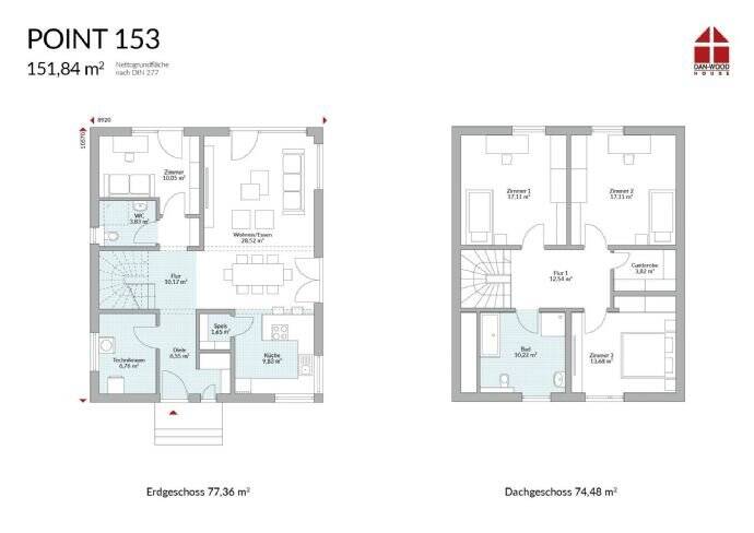
Dieses wunderschöne Haus bietet eine perfekte Raumaufteilung im Erdgeschoss. Es verfügt über eine geräumige Küche, einen großen Essbereich, ein gut geschnittenes Wohnzimmer und viel Platz in der Diele. Die Speisekammer ist äußerst praktisch, und das Gäste-WC ist mit einer Dusche ausgestattet. Ein Gästezimmer rundet das Erdgeschoss ab.Im Obergeschoss bieten die Kinderzimmer überraschend viel Platz. Das Schlafzimmer grenzt an eine kleine Garderobe, die zusätzlichen Stauraum bietet. Das Familienbad ist ebenfalls großzügig gestaltet.So funktioniert es
- Alle neuen Anzeigen matchen wir kostenlos mit Deinen Suchparametern.
- Passende Angebote senden wir Dir in einer E-Mail pro Tag.
- Du kannst auch verschiedene Suchen anlegen und Dich jederzeit abmelden. Mehr dazu




