Kaufpreis 1.145.000 €
Zimmer 3
Größe 115 m²
61476 Kronberg im Taunus
Objektdaten
Veröffentlicht am: 26. März 2025
Energieausweis: Liegt bei der Besichtigung vor
Danke! Bitte bestätige Deine E-Mail-Adresse – wir haben Dir soeben eine Mail geschickt.
Es gab ein Problem beim Absenden. Bitte versuche es erneut.
Bitte bestätige Deine E-Mail-Adresse, um Updates zu erhalten.
Objektbeschreibung
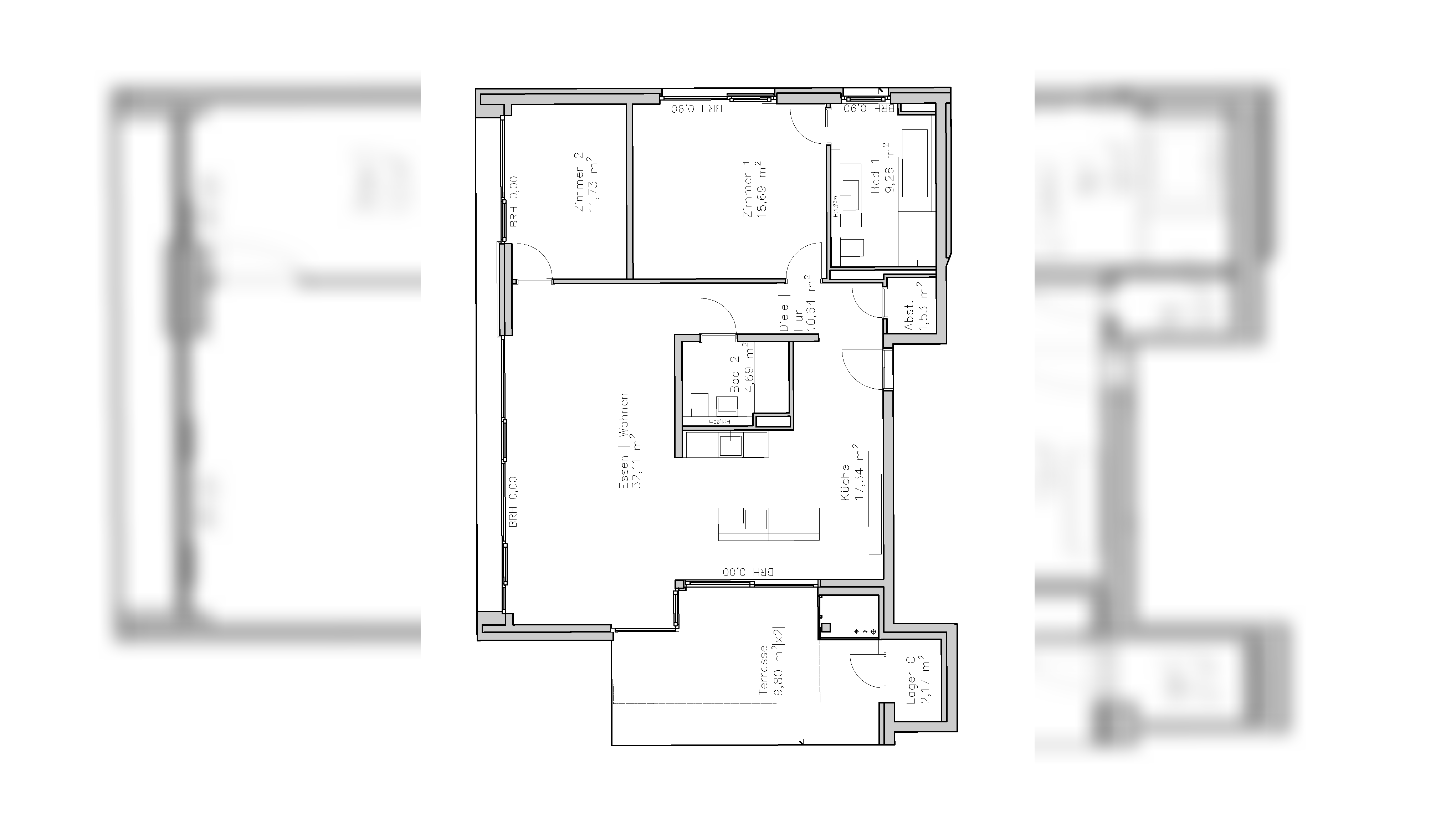
In den kommenden Monaten werden unmittelbar am Viktoria Park, drei moderne und attraktive Häuser mit 15 überaus großzügigen Wohnungen entstehen, diese verfügen über jeweils eine Loggia/Balkon bzw. eine Dachterrasse oder Terrasse. Die 5 ebenerdigen Wohnungen haben einen eigenen Gartenanteil als Sondernutzungsrecht.Das Haus A beherbergt 3 Wohneinheiten, die Häuser B & C jeweils 6 Wohneinheiten. Die Whg. C1, eine lichtdurchflutete und offen gestaltete Garten Wohnung bietet Ihnen auf ca. 115 m² feinster und bestens verteilter Wohnfläche, insgesamt 3 Zimmer (Schlaf-, Arbeits- oder Kinderzimmer), 2 Bäder (1x davon mit Tageslicht), einen goldwerten Abstellraum mit Waschmaschinenanschluss, den sehr großen und offenen Wohnbereich mit viel Platz für Ihre Traumküche und zu Guter Letzt, 1 wunderschöne Terrasse, die zum Entspannen einladen.Zur Wohnung selbst gehört selbstverständlich auch ein eigener Kellerraum. Ein Stellplatz in der hauseigenen Tiefgarage kann hinzuerworben werden. Die Victoria Residence punktet mit ihren hochwertigen Ausstattungsmerkmalen. Markenobjekte im Sanitärbereich sowie wertige Parkettböden und großformatige Fliesen, die Sie nach eigener Wahl vom Vertragspartner des Bauträgers auswählen können, und noch vieles mehr!Die Liegenschaft hier ausführlich zu beschreiben, würde an dieser Stelle den Rahmen sprengen. Deshalb für Sie in Kurzform die wichtigsten Details in der Übersicht:
So funktioniert es
- Alle neuen Anzeigen matchen wir kostenlos mit Deinen Suchparametern.
- Passende Angebote senden wir Dir in einer E-Mail pro Tag.
- Du kannst auch verschiedene Suchen anlegen und Dich jederzeit abmelden. Mehr dazu
Wir haben soeben eine E-Mail mit Deinem Suchauftrag an Dich geschickt. – Klicke in dieser Mail auf den Bestätigungslink und schon geht's los. Prüfe ggf. auch Deinen Spamordner.
Es gab ein Problem beim Absenden Deiner E-Mail-Adresse. Bitte versuche es erneut.
WARNUNG: Bitte bestätige Deine E-Mail-Adresse, um regelmäßige Updates zu erhalten.