Objektdaten
Objektbeschreibung
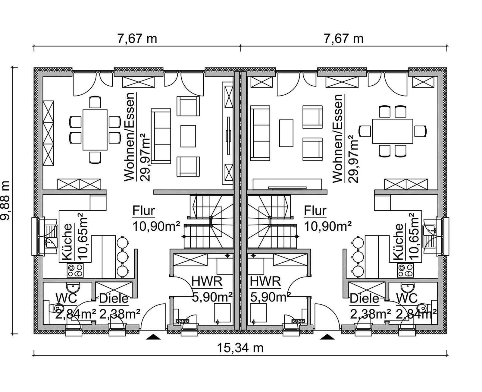
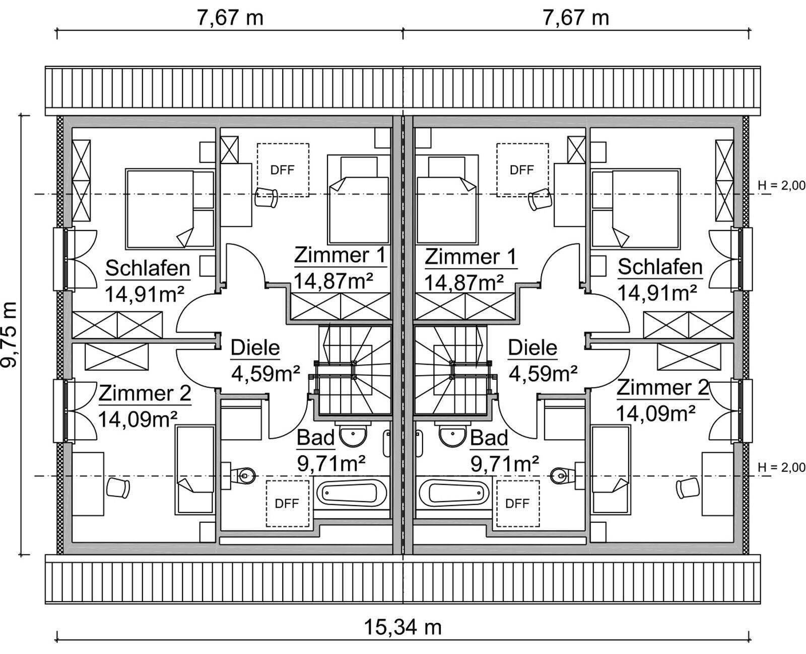
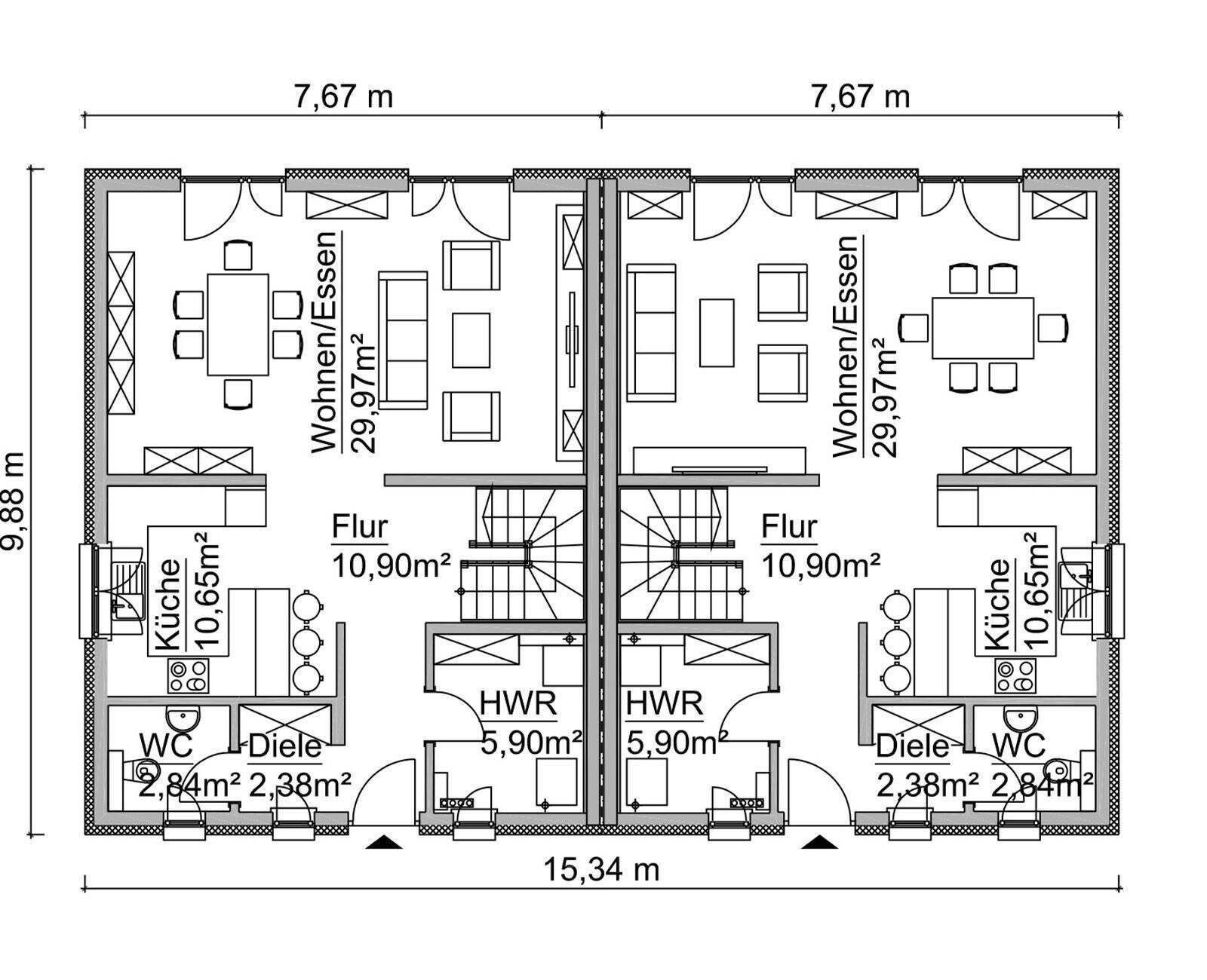
Diese Doppelhaushälfte ist im Baustil eines klassischen Einfamilienhauses auf zwei Ebene geplant. Jede Wohneinheit bietet mit 4 Zimmern Platz für eine vierköpfige Familie.Was ist enthalten ?Dieses Inserat ist komplett mit einer Doppelhaushälfte im technikfertigen Zustand berechnet.- inkl. Bodenplatte- inkl. dreifachverglaste Wärmeschutzfenster- inkl. Außenfensterbänke- inkl. Elektroinstallation- inkl. Heizungsinstallation einer Wärmepumpe- inkl. Sanitärrohinstallation- inkl. Estrichverlegung- inkl. Innenwände und Decken geschlossen- inkl. Luft- Wasser-Wärmepumpe- inkl. FußbodenheizungAusbau und Fertigstellung nach Absprache - Abb. teilweise mit Sonderausstattungen - projektiertes ObjektBei ScanHaus Marlow haben bereits viele Haustypen mehrere Grundrissvarianten. Sollte Ihnen keine Variante zusprechen, ist es selbstverständlich möglich den Grundriss nach Ihren individuellen Wünschen und Bedürfnissen in Abstimmung mit unseren Architekten anzupassen.Ob als Ausbauhau, schlüsselfertig oder bezugsfertig, gemeinsam finden wir heraus was am besten zu Ihnen passt und wie wir das Bauprojekt am sinnvollsten umsetzen können.Ähnliche Angebote
So funktioniert es
- Alle neuen Anzeigen matchen wir kostenlos mit Deinen Suchparametern.
- Passende Angebote senden wir Dir in einer E-Mail pro Tag.
- Du kannst auch verschiedene Suchen anlegen und Dich jederzeit abmelden. Mehr dazu




